千葉県千葉市中央区院内1丁目(千葉駅)の貸店舗:物件詳細
交通 所在地 |
駅徒歩 |
賃料 管理費等 |
敷金/保証金 礼金 |
使用部分面積 坪数/坪単価 |
物件種目 築年月 |
|
JR総武本線/千葉
千葉県千葉市中央区院内1丁目
|
8分
|
11万円
7,700円
|
なし / 3ヶ月
1ヶ月
|
64.94m²
19.64坪/0.56万円
|
貸店舗・事務所
1981年5月(築44年10ヶ月)
|
|
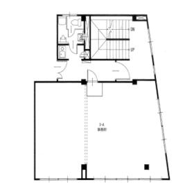
間取図
|
|
その他の画像
|
| 交通 | JR総武本線 千葉駅 徒歩8分 |
|---|
| その他の交通 | JR総武本線 東千葉駅 徒歩6分 千葉都市モノレール 栄町駅 徒歩7分 |
| 所在地 |
千葉県千葉市中央区院内1丁目
|
| 物件種目 |
貸店舗・事務所 |
| 賃料 |
11万円 |
管理費等 |
7,700円 |
| 敷金 / 保証金 |
なし / 3ヶ月 |
礼金 |
1ヶ月 |
| 敷引 |
- |
坪単価 |
0.56万円 |
| 保証金償却 |
解約時30% |
権利金 |
- |
| 造作譲渡 |
- |
その他一時金 |
鍵交換代金あり:39,600円 |
| 維持費等 |
- |
保険等 |
要 |
| 使用部分面積 |
64.94m² |
坪数 |
19.64坪 |
| 築年月 |
1981年5月(築44年10ヶ月)
|
階建 / 階 |
3階建 / 3階 |
| 駐車場 |
無 |
バイク置き場 |
- |
| 駐輪場 |
- |
土地面積 |
- |
| 接道状況 |
-
|
用途地域 |
- |
| 間取り |
- |
建物構造 |
鉄骨造 |
| アピールポイント |
「千葉駅8分 東千葉駅6分 大通りの角地ビル 3F約19坪の事務所」
【概要】
◇空室で内見可能です。
◇室内事務所仕様で即営業可能です。
◇内装(床、壁)は新しくなっています。※退去時の原状回復として新しくしていただきます。
◇専有面積:64.94㎡(19.64坪)
◇電気・水道 使用量により別途個別請求となります。
◇トイレ、給湯室は3F共用部にあります。
◇1Fに協会、2Fにパーソナルジム、3Fに住居が入居しています。
◇騒音や振動がある業種はお断りしております。
◇近くにコインパーキングあり。
【設備】
◇公営水道・都市ガス・本下水。
◇エアコン2基、給湯器、トイレ。
☆詳細などお問い合わせください。 |
| 建物名・部屋番号 |
「千葉駅8分 東千葉駅6分 大通りの角地ビル 3F約19坪の事務所」 |
| リフォーム履歴 |
- |
| リノベーション履歴 |
- |
| 特記事項 |
飲食店不可、最上階 |
| 備考 |
賃貸保証等:加入要(加入必須)
管理形態/管理員の勤務形態:-/-
「千葉駅8分 東千葉駅6分 大通りの角地ビル 3F約19坪の事務所」
【概要】
◇空室で内見可能です。
◇室内事務所仕様で即営業可能です。
◇内装(床、壁)は新しくなっています。※退去時の原状回復として新しくしていただきます。
◇専有面積:64.94㎡(19.64坪)
◇電気・水道 使用量により別途個別請求となります。
◇トイレ、給湯室は3F共用部にあります。
◇1Fに協会、2Fにパーソナルジム、3Fに住居が入居しています。
◇騒音や振動がある業種はお断りしております。
◇近くにコインパーキングあり。
【設備】
◇公営水道・都市ガス・本下水。
◇エアコン2基、給湯器、トイレ。
☆詳細などお問い合わせください。
|
| エネルギー消費性能 |
- |
| 断熱性能 |
- |
| 目安光熱費 |
- |
| バス・トイレ |
共用部分にトイレあり |
| キッチン |
- |
| 設備・サービス |
- |
| その他 |
- |
| 契約期間 |
2年 |
条件等 |
- |
| 引渡可能時期 |
相談 |
現況 |
空 |
| 仲介手数料 |
1ヶ月 |
|
|
| 更新料 |
新賃料 1ヶ月 |
物件番号 |
6987895483 |
| 情報公開日 |
2025年10月4日 |
次回更新予定日 |
2026年2月19日 |
| ケータイ用バーコード |
- スマートフォンでこの物件を見る
- スマートフォンからもこの物件をご覧になれます。
|
※「-」と表示されている項目については、情報提供会社にご確認ください。
| 周辺施設 |
まいばすけっと千葉駅前大通り店 |
| 距離 |
446m |
| 周辺施設 |
セブンイレブン千葉栄町店 |
| 距離 |
251m |
| 周辺施設 |
ドトールコーヒーショップ千葉銀座通り店 |
| 距離 |
443m |
| 周辺施設 |
LEC東京リーガルマインド大学千葉本校 |
| 距離 |
652m |
ここから簡単にお問い合わせをすることができます。
(SSLでの暗号化での送信を希望されるお客さまは
こちら
よりお問い合わせください)
お問い合わせを行う前に
「個人情報の取り扱いについて」を必ずお読みください。
「個人情報の取り扱いについて」に同意いただいた場合は「上記にご同意の上 確認画面へ進む」のボタンをクリックしてください。
個人情報の取り扱いについて
皆さまが送付された個人情報はアットホーム(株)のサーバを経由し、お問い合わせ先の不動産会社にメールまたはFAXにて転送されるためアットホーム(株)にも保管されます。アットホーム(株)で保管された個人情報の取り扱いについては、【こちら】をご覧ください。
また、本画面でご記入いただいた個人情報は、お問い合わせ先の不動産会社でも保管します。 お問い合わせ先の不動産会社が保管する個人情報の取り扱いについては、不動産会社に直接お問い合わせください。
千葉県知事免許(2)第17753号 |
|---|
- 交通:
- JR総武本線/船橋駅 徒歩8分
- 千葉県船橋市東船橋7丁目6-4
- TEL:
- 047-707-2875
- FAX:
- 047-707-2875
- 所属団体:
- (公社)全日本不動産協会会員(公社)首都圏不動産公正取引協議会加盟
取引態様:仲介  - 00269682
|
- スマートフォンで
この不動産会社を見る

|
- 提携サイト等より掲載されている物件情報につきましては、不動産会社詳細情報にリンクされていないものがあります。
- 物件に関するお問合せは、物件詳細ページの「情報提供会社」に表示されている不動産会社へ直接お願いいたします。
- 間取図は、現況を優先させていただきます。
- 映像は物件の一部を撮影したものです。物件の契約にあたっての最終判断はご自身の判断に基づいて行ってください。
- 仲介手数料について

アットホームは物件情報の適正化に努めております。
内容に誤りがある場合にはこちらへご連絡ください。