不動産 賃貸 マンション等の住宅情報:埼玉住まい情報


群馬県高崎市岩押町(高崎駅)の貸店舗:物件詳細

  • 物件詳細
  • 情報の見方
  • 印刷用画面
交通
所在地
駅徒歩 賃料
管理費等
敷金/保証金
礼金
使用部分面積
坪数/坪単価
物件種目
築年月

上越新幹線/高崎

群馬県高崎市岩押町

16分

27.225万円

2ヶ月 / なし

2ヶ月

75.35m²

22.79坪/1.1945万円

貸店舗・事務所(一括)

2026年1月(新築)

おすすめコメント

【岩押町の新築テナント!現在建築中です♪】国道354号線から少し北側に入った場所にある平屋テナント物件!建物面積は約75㎡♪敷地内駐車場のご利用は有料となります。ご開業・ご移転先としてご検討ください!

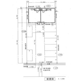
間取図

間取図

1棟貸しの場合、建物内は2区画に分かれていますが、中央の壁の取扱いは別途ご相談となります♪なお、本物件は2区画に分けた状態での募集も行っております。

外観

外観

現在、新築工事中です!2026年2月竣工予定!

<
その他の画像
  • 室内
  • 室内
  • 室内
  • 外観
  • キッチン
  • 洗面
  • トイレ
  • 設備
  • 駐車場
  • 駐車場
  • 駐車場
  • その他
  • その他
  • 眺望
  • 外観
  • 外観
  • 室内
  • 室内
  • 室内
  • キッチン
  • キッチン
  • トイレ
  • トイレ
  • トイレ
  • 眺望
  • 外観
  • 外観
  • 室内
  • 室内
  • 室内
  • 室内
  • 室内
  • キッチン
  • キッチン
  • トイレ
  • トイレ
  • トイレ
  • 眺望
>
    • とりあえず保存
    • お問い合わせ
    交通

    上越新幹線 高崎駅 徒歩16分

    その他の交通

    JR上越線 高崎駅 徒歩16分

    上信電鉄 南高崎駅 徒歩28分

    所在地 群馬県高崎市岩押町
    物件種目 貸店舗・事務所(一括)
    賃料 27.225万円 管理費等
    敷金 / 保証金 2ヶ月 / なし 礼金 2ヶ月
    敷引 坪単価 1.1945万円
    保証金償却 権利金
    造作譲渡 その他一時金
    維持費等 保険等
    使用部分面積 75.35m² 坪数 22.79坪
    築年月 2026年1月(新築) 階建 / 階 1階建 / 1階
    駐車場 有 8,800円/月(空き8台)
    【駐車料金】1台あたり月額税込8,800円、【駐車上限台数】8台
    バイク置き場
    駐輪場 土地面積
    接道状況 南 公道 用途地域 2種住居
    間取り 建物構造 木造
    アピールポイント 【(仮称)岩押町プランタン貸店舗・事務所のご紹介】

    ◇2026年1月竣工予定の新築テナント物件!
    ◇国道354号線から少し北側に入った場所にございます。
    ◇付近にGメッセや高崎芸術劇場があり便利な立地です!
    ◇建物面積は75.35㎡(約22.8坪)です♪
    ◇敷地内駐車場(上限8台)のご利用は有料となります!
    ◇駐車料金は、1台あたり月額税込8,800円です!
    ◇掲載写真の外観はイメージです。今後、外壁カラーは変更となる可能性があります。


    ご開業・ご移転先としてご検討ください!
    お問い合わせは、たかよし不動産まで♪
    【高義不動産TEL:027-364-8881】
    建物名・部屋番号 (仮称)岩押町プランタン貸店舗・事務所
    リフォーム履歴
    リノベーション履歴
    特記事項 土曜日利用可、土日・祝日利用可、飲食店可、角部屋
    備考
    賃貸保証等:加入要(【保証会社】ジェイリース株式会社、【初回保証料】月額総賃料の100%)
    管理形態/管理員の勤務形態:-/-
    主要採光面:南向き
    ・礼金のお支払いには、別途消費税が必要となります。
    エネルギー消費性能
    断熱性能
    目安光熱費
    バス・トイレ トイレ2ヶ所、専有部分に男女別トイレあり
    キッチン
    設備・サービス 給湯、暖房、冷房
    その他
    契約期間 3年 条件等
    引渡可能時期 2026年1月下旬予定 現況 未完成
    仲介手数料 27.225万円 適格請求書発行
    更新料 新賃料 1.1ヶ月 物件番号 6987915748
    情報公開日 2025年10月6日 次回更新予定日 2026年3月25日
    ケータイ用バーコード

    QRコード

    スマートフォンでこの物件を見る
    スマートフォンからもこの物件をご覧になれます。
    ※「-」と表示されている項目については、情報提供会社にご確認ください。

    この物件の周辺情報

    周辺施設 セブンイレブン高崎岩押町店
    距離 245m
    周辺施設 しののめ信用金庫高崎支店
    距離 312m
    周辺施設 ミニストップ高崎岩押町店
    距離 328m
    周辺施設 高崎芸術劇場
    距離 716m
    周辺施設 群馬コンベンションセンター
    距離 719m

    クイックお問い合わせ

    ここから簡単にお問い合わせをすることができます。
    (SSLでの暗号化での送信を希望されるお客さまは こちら よりお問い合わせください)

    お問い合わせ内容(必須)
    物件のお問い合わせ理由(必須)
    お名前・ご担当者様名(必須) 姓  名 
    メールアドレス(必須)
    ※携帯電話のメールアドレスをご入力される方はこちらをご確認ください
    電話番号(必須)
    - -

    ※入力いただいた電話番号へSMSまたは音声でパスワードをご連絡します。

    携帯電話の番号をご入力の方へ

    携帯電話の番号をご入力の方へ
    確認画面にて送信ボタンをクリックするとSMSが携帯電話に届きます。
    そのSMSに記載のパスワード(認証番号)を入力し、お問い合わせを完了してください。
    尚、SMSの送信者番号は 0005 202 760 となります。
    これはアットホームの固定番号です。

    備考欄 希望条件、物件案内希望日、質問などがございましたらご記入ください。
    お問い合わせを行う前に「個人情報の取り扱いについて」を必ずお読みください。
    「個人情報の取り扱いについて」に同意いただいた場合は「上記にご同意の上 確認画面へ進む」のボタンをクリックしてください。

    個人情報の取り扱いについて

    皆さまが送付された個人情報はアットホーム(株)のサーバを経由し、お問い合わせ先の不動産会社にメールまたはFAXにて転送されるためアットホーム(株)にも保管されます。アットホーム(株)で保管された個人情報の取り扱いについては、【こちら】をご覧ください。
    また、本画面でご記入いただいた個人情報は、お問い合わせ先の不動産会社でも保管します。 お問い合わせ先の不動産会社が保管する個人情報の取り扱いについては、不動産会社に直接お問い合わせください。

    情報提供会社

    情報提供会社

    高義不動産(株)

    群馬県知事免許(15)第888号

    交通:
    JR信越本線/北高崎駅 徒歩13分
    群馬県高崎市飯塚町97-1 高義ビル6F
    TEL:
    027-364-8881
    FAX:
    027-362-9006
    所属団体:
    (一社)群馬県宅地建物取引業協会会員
    (公社)首都圏不動産公正取引協議会加盟

    取引態様:仲介

    • 会社情報
    • 00312510
    スマートフォンで
    この不動産会社を見る
    QRコード
    • とりあえず保存
    • お問い合わせ
    • 提携サイト等より掲載されている物件情報につきましては、不動産会社詳細情報にリンクされていないものがあります。
    • 物件に関するお問合せは、物件詳細ページの「情報提供会社」に表示されている不動産会社へ直接お願いいたします。
    • 間取図は、現況を優先させていただきます。
    • 映像は物件の一部を撮影したものです。物件の契約にあたっての最終判断はご自身の判断に基づいて行ってください。
    • 仲介手数料について仲介手数料

    アットホームは物件情報の適正化に努めております。 内容に誤りがある場合にはこちらへご連絡ください。

    【埼玉住まい情報】では、日本全国の物件から賃貸マンションや賃貸アパート・賃貸一戸建て等の賃貸住宅情報、新築マンション・分譲マンションや中古マンション等の売買マンション情報、新築一戸建てや中古一戸建てなどの戸建住宅、 土地など、総合的な不動産住宅情報検索サービスを提供致します。
    【埼玉住まい情報】から、選りすぐりの不動産物件を探してみましょう。

    【免責事項】
    このコーナーの運営はアットホーム株式会社(https://www.athome.co.jp/)が行っています。
    このコーナーに掲載している物件情報は、「アットホーム不動産情報ネットワーク」に加盟する不動産会社等(情報提供元)から提供されています。信頼性の高い情報提供が行えるよう、最大限の努力をしておりますが、その内容を保証するものではありません。 利用者のみなさまと各情報提供元との取引に起因する損害および情報が掲載されたことに起因する損害等については、株式会社イーシティ埼玉、およびアットホームは一切責任を負いません。
    各物件情報の内容や画像等はすべて現況を優先させていただきます。
    お取引等(お取引の準備、資金調達等を含みます)の際には、内容や契約条件等について、各情報提供元より十分な説明を受け、ご自身でご確認の上、判断してください。
    このコーナーへの物件情報のご掲載、その他不動産業務ソリューション等についての不動産会社様のお問合せはこちらからお願いいたします。

    物件画像: