静岡県浜松市中央区寺島町(浜松駅)の貸店舗:物件詳細
交通 所在地 |
駅徒歩 |
賃料 管理費等 |
敷金/保証金 礼金 |
使用部分面積 坪数/坪単価 |
物件種目 築年月 |
東海道新幹線/浜松
静岡県浜松市中央区寺島町
|
14分
|
33万円
-
|
6ヶ月 / なし
なし
|
108.05m²
32.68坪/1.0097万円
|
貸店舗
2011年1月(築14年10ヶ月)
|
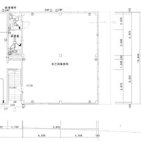
間取図
|
|
<
その他の画像
>
|
交通 | 東海道新幹線 浜松駅 徒歩14分 |
所在地 |
静岡県浜松市中央区寺島町
|
物件種目 |
貸店舗 |
賃料 |
33万円 |
管理費等 |
- |
敷金 / 保証金 |
6ヶ月 / なし |
礼金 |
なし |
敷引 |
- |
坪単価 |
1.0097万円 |
保証金償却 |
- |
権利金 |
- |
造作譲渡 |
- |
その他一時金 |
- |
維持費等 |
- |
保険等 |
- |
使用部分面積 |
108.05m² |
坪数 |
32.68坪 |
築年月 |
2011年1月(築14年10ヶ月)
|
階建 / 階 |
2階建 / 1階 |
駐車場 |
有 無料(空き5台) 別途貸駐車場10台相談可能(6600円/台) |
バイク置き場 |
無 |
駐輪場 |
無 |
土地面積 |
310.74m² |
接道状況 |
南 10.0m 公道
・
西 6.6m 公道
・
二方道路
|
用途地域 |
2種住居 |
間取り |
- |
建物構造 |
鉄骨造 |
アピールポイント |
【アランアール】
大通り沿いの目立つ立地で店舗・事務所等に最適です!
建物前面に駐車場5台付きで来店客も駐車楽々です♪
別途貸駐車場10台の相談可能です!
前面ガラス張りで明るい室内となります♪
浜松駅へのアクセス良好な立地です!
男女別のトイレ付きとなります♪
更新料・更新手数料が無料です! |
建物名・部屋番号 |
K.ビルディング |
リフォーム履歴 |
- |
リノベーション履歴 |
- |
特記事項 |
スケルトン、駐車場3台分以上、耐震構造(新耐震基準)、24時間換気システム |
備考 |
管理形態/管理員の勤務形態:-/-
主要採光面:南向き
貸主インボイス未登録
借家人賠償責任保険加入要
別途貸駐車場10台有(6600円/台)
現況渡し(設備等はサービス品)
|
エネルギー消費性能 |
- |
断熱性能 |
- |
目安光熱費 |
- |
バス・トイレ |
男女別トイレ、トイレ2ヶ所、多機能トイレ |
キッチン |
- |
設備・サービス |
看板取付スペースあり、空調機あり
エアコン2台以上、収納スペース、給湯、エアコン |
その他 |
車寄せスペース |
契約期間 |
3年 |
条件等 |
- |
引渡可能時期 |
相談 |
現況 |
空 |
仲介手数料 |
1ヶ月 |
適格請求書発行 |
不可
|
更新料 |
なし |
物件番号 |
6987921935 |
情報公開日 |
2025年10月7日 |
次回更新予定日 |
2025年10月21日 |
ケータイ用バーコード |
- スマートフォンでこの物件を見る
- スマートフォンからもこの物件をご覧になれます。
|
※「-」と表示されている項目については、情報提供会社にご確認ください。
周辺施設 |
バロー北寺島店 |
距離 |
316m |
写真を見る |
ここから簡単にお問い合わせをすることができます。
(SSLでの暗号化での送信を希望されるお客さまは
こちら
よりお問い合わせください)
お問い合わせを行う前に
「個人情報の取り扱いについて」を必ずお読みください。
「個人情報の取り扱いについて」に同意いただいた場合は「上記にご同意の上 確認画面へ進む」のボタンをクリックしてください。
個人情報の取り扱いについて
皆さまが送付された個人情報はアットホーム(株)のサーバを経由し、お問い合わせ先の不動産会社にメールまたはFAXにて転送されるためアットホーム(株)にも保管されます。アットホーム(株)で保管された個人情報の取り扱いについては、【こちら】をご覧ください。
また、本画面でご記入いただいた個人情報は、お問い合わせ先の不動産会社でも保管します。 お問い合わせ先の不動産会社が保管する個人情報の取り扱いについては、不動産会社に直接お問い合わせください。
静岡県知事免許(1)第14725号 |
---|
- 交通:
- 遠州鉄道/助信駅 徒歩23分 【バス】20分 せいれい病院 停歩2分
- 静岡県浜松市中央区住吉2丁目33-27
- TEL:
- 053-488-5590
- FAX:
- 053-488-5591
- 所属団体:
- (公社)静岡県宅地建物取引業協会会員東海不動産公正取引協議会加盟
取引態様:仲介  - 40410864
|
- スマートフォンで
この不動産会社を見る

|
- 提携サイト等より掲載されている物件情報につきましては、不動産会社詳細情報にリンクされていないものがあります。
- 物件に関するお問合せは、物件詳細ページの「情報提供会社」に表示されている不動産会社へ直接お願いいたします。
- 間取図は、現況を優先させていただきます。
- 映像は物件の一部を撮影したものです。物件の契約にあたっての最終判断はご自身の判断に基づいて行ってください。
- 仲介手数料について

アットホームは物件情報の適正化に努めております。
内容に誤りがある場合にはこちらへご連絡ください。