神奈川県横浜市港北区綱島西1丁目(綱島駅)の貸店舗:物件詳細
交通 所在地 |
駅徒歩 |
賃料 管理費等 |
敷金/保証金 礼金 |
使用部分面積 坪数/坪単価 |
物件種目 築年月 |
|
東急東横線/綱島
神奈川県横浜市港北区綱島西1丁目
|
3分
|
57.2万円
165,000円
|
なし / 500万円
なし
|
172.82m²
52.27坪/1.0942万円
|
貸店舗
1990年9月(築35年2ヶ月)
|
|
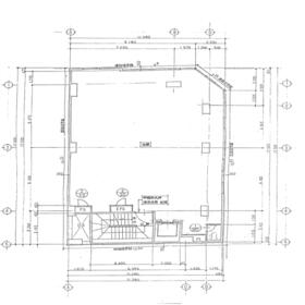
間取図
172.82㎡(52.27坪)焼肉屋居抜き物件となります。
|
等ビル3階テナント、焼肉屋居抜き物件のご紹介。
|
<
その他の画像
>
|
| 交通 | 東急東横線 綱島駅 徒歩3分 |
|---|
| その他の交通 | 東急新横浜線 新綱島駅 徒歩5分 |
| 所在地 |
神奈川県横浜市港北区綱島西1丁目
|
| 物件種目 |
貸店舗 |
| 賃料 |
57.2万円 |
管理費等 |
165,000円 |
| 敷金 / 保証金 |
なし / 500万円 |
礼金 |
なし |
| 敷引 |
- |
坪単価 |
1.0942万円 |
| 保証金償却 |
- |
権利金 |
- |
| 造作譲渡 |
330万円 |
その他一時金 |
- |
| 維持費等 |
- |
保険等 |
- |
| 使用部分面積 |
172.82m² |
坪数 |
52.27坪 |
| 築年月 |
1990年9月(築35年2ヶ月)
|
階建 / 階 |
4階建 / 1階 |
| 駐車場 |
- |
バイク置き場 |
- |
| 駐輪場 |
- |
土地面積 |
- |
| 接道状況 |
南西 8.0m
・
西 4.0m
・
二方道路
|
用途地域 |
商業地域 |
| 間取り |
ワンルーム |
建物構造 |
鉄骨造 |
| アピールポイント |
焼肉屋居抜き物件(造作代税込300万円)、そのまま貸し出し可能な貴重なテナントです。東急東横線「綱島」駅 徒歩3分!商業ビル3階部分、ダーツバーや居酒屋、カラオケ入居中!お気軽にお問合せくださいませ。 |
| 建物名・部屋番号 |
|
| リフォーム履歴 |
- |
| リノベーション履歴 |
- |
| 特記事項 |
居抜き、24時間利用可、土曜日利用可、土日・祝日利用可、飲食店可、1フロア1テナント、角部屋、IT重説対応物件、保証人不要、国道沿いに面する、都道府県道沿いに面する |
| 備考 |
管理形態/管理員の勤務形態:-/-
IT重説対応物件
電灯容量25KVA、動力容量35KVA、袖看板、入口看板、外壁看板、置き看板設置可
メーター25mm、汚水管75A、雑排水75A、公共下水、ガス管32mm、メーター有
消防点検36000円/年2回、緊急センター20000円~「出動時」
焼肉屋居抜き物件、現況そのまま貸し出し中。
|
| エネルギー消費性能 |
- |
| 断熱性能 |
- |
| 目安光熱費 |
- |
| バス・トイレ |
トイレ |
| キッチン |
オープンキッチン |
| 設備・サービス |
看板取付スペースあり、空調機あり、グリストラップあり
収納スペース、都市ガス、動力あり、エアコン、ケーブルTV |
| その他 |
エレベーター |
| 契約期間 |
3年 |
条件等 |
- |
| 引渡可能時期 |
相談 |
現況 |
空 |
| 更新料 |
新賃料 1ヶ月 |
物件番号 |
6987926910 |
| 情報公開日 |
2025年10月7日 |
次回更新予定日 |
2025年11月4日 |
| ケータイ用バーコード |
- スマートフォンでこの物件を見る
- スマートフォンからもこの物件をご覧になれます。
|
※「-」と表示されている項目については、情報提供会社にご確認ください。
ここから簡単にお問い合わせをすることができます。
(SSLでの暗号化での送信を希望されるお客さまは
こちら
よりお問い合わせください)
お問い合わせを行う前に
「個人情報の取り扱いについて」を必ずお読みください。
「個人情報の取り扱いについて」に同意いただいた場合は「上記にご同意の上 確認画面へ進む」のボタンをクリックしてください。
個人情報の取り扱いについて
皆さまが送付された個人情報はアットホーム(株)のサーバを経由し、お問い合わせ先の不動産会社にメールまたはFAXにて転送されるためアットホーム(株)にも保管されます。アットホーム(株)で保管された個人情報の取り扱いについては、【こちら】をご覧ください。
また、本画面でご記入いただいた個人情報は、お問い合わせ先の不動産会社でも保管します。 お問い合わせ先の不動産会社が保管する個人情報の取り扱いについては、不動産会社に直接お問い合わせください。
神奈川県知事免許(1)第32524号 |
|---|
- 交通:
- JR根岸線/石川町駅 徒歩8分 【バス】2分 横浜スタジアム前 停歩7分
- 神奈川県横浜市中区山下町200-12 永光ビル1階
- TEL:
- 045-211-4072
- 所属団体:
- (公社)神奈川県宅地建物取引業協会会員(公社)首都圏不動産公正取引協議会加盟
取引態様:仲介  - 00278662
|
- スマートフォンで
この不動産会社を見る

|
- 提携サイト等より掲載されている物件情報につきましては、不動産会社詳細情報にリンクされていないものがあります。
- 物件に関するお問合せは、物件詳細ページの「情報提供会社」に表示されている不動産会社へ直接お願いいたします。
- 間取図は、現況を優先させていただきます。
- 映像は物件の一部を撮影したものです。物件の契約にあたっての最終判断はご自身の判断に基づいて行ってください。
- 仲介手数料について

アットホームは物件情報の適正化に努めております。
内容に誤りがある場合にはこちらへご連絡ください。