大阪府大阪市北区天満橋3丁目(天満駅)の貸店舗:物件詳細
交通 所在地 |
駅徒歩 |
賃料 管理費等 |
敷金/保証金 礼金 |
使用部分面積 坪数/坪単価 |
物件種目 築年月 |
JR大阪環状線/天満
大阪府大阪市北区天満橋3丁目
|
6分
|
14.52万円
なし
|
1ヶ月 / なし
1ヶ月
|
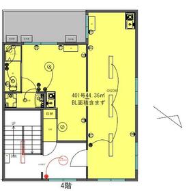
44.36m²
13.41坪/1.0821万円
|
貸店舗・事務所
1970年11月(築55年)
|
間取図
|
|
<
その他の画像
>
|
交通 | JR大阪環状線 天満駅 徒歩6分 |
---|
その他の交通 | 地下鉄堺筋線 扇町駅 徒歩9分 JR大阪環状線 桜ノ宮駅 徒歩10分 |
所在地 |
大阪府大阪市北区天満橋3丁目
|
物件種目 |
貸店舗・事務所 |
賃料 |
14.52万円 |
管理費等 |
なし |
敷金 / 保証金 |
1ヶ月 / なし |
礼金 |
1ヶ月 |
敷引 |
- |
坪単価 |
1.0821万円 |
保証金償却 |
- |
権利金 |
- |
造作譲渡 |
- |
その他一時金 |
- |
維持費等 |
- |
保険等 |
要 |
使用部分面積 |
44.36m² |
坪数 |
13.41坪 |
築年月 |
1970年11月(築55年)
|
階建 / 階 |
4階建 / 4階 |
駐車場 |
無 |
バイク置き場 |
無 |
駐輪場 |
無 |
土地面積 |
- |
接道状況 |
-
|
用途地域 |
- |
間取り |
- |
建物構造 |
鉄骨造 |
建物名・部屋番号 |
|
リフォーム履歴 |
- |
リノベーション履歴 |
- |
特記事項 |
24時間利用可、土日・祝日利用可、飲食店不可、角部屋、最上階、都道府県道沿いに面する |
備考 |
賃貸保証等:加入要(全保連、フォーシーズ)
管理形態/管理員の勤務形態:-/-
主要採光面:北向き
昭和45年築のレトロビルをリノベーション。
温もりある古ビルの風合いと、現代的な快適さを兼ね備えた空間です。
専有面積は 44.36㎡。シャワールームもキッチンもあり、住居付きのオフィスでも利用可能な天満エリアの物件。
天神橋筋商店街や大阪メトロ各線も徒歩圏内で、暮らしにもビジネスにも便利な立地です。
1部屋はサロン等の施術のお部屋として、隣に居住スペース等、二つ賃貸するよりもコストを抑えることが可能です。
古さを活かしたデザインが好きな方、レトロな雰囲気を楽しみたい方におすすめ。
「ありきたりじゃない空間」をお探しの方、ぜひご覧ください。
|
エネルギー消費性能 |
- |
断熱性能 |
- |
目安光熱費 |
- |
バス・トイレ |
シャワールーム、専有部分にトイレあり、共用部分にトイレあり |
キッチン |
- |
設備・サービス |
エアコン2台以上、収納スペース、室内洗濯機置場、給湯 |
その他 |
- |
契約期間 |
2年 |
条件等 |
- |
引渡可能時期 |
即時 |
現況 |
空 |
適格請求書発行 |
可
|
更新料 |
- |
物件番号 |
6987936594 |
情報公開日 |
2025年10月8日 |
次回更新予定日 |
2025年11月5日 |
ケータイ用バーコード |
- スマートフォンでこの物件を見る
- スマートフォンからもこの物件をご覧になれます。
|
※「-」と表示されている項目については、情報提供会社にご確認ください。
ここから簡単にお問い合わせをすることができます。
(SSLでの暗号化での送信を希望されるお客さまは
こちら
よりお問い合わせください)
お問い合わせを行う前に
「個人情報の取り扱いについて」を必ずお読みください。
「個人情報の取り扱いについて」に同意いただいた場合は「上記にご同意の上 確認画面へ進む」のボタンをクリックしてください。
個人情報の取り扱いについて
皆さまが送付された個人情報はアットホーム(株)のサーバを経由し、お問い合わせ先の不動産会社にメールまたはFAXにて転送されるためアットホーム(株)にも保管されます。アットホーム(株)で保管された個人情報の取り扱いについては、【こちら】をご覧ください。
また、本画面でご記入いただいた個人情報は、お問い合わせ先の不動産会社でも保管します。 お問い合わせ先の不動産会社が保管する個人情報の取り扱いについては、不動産会社に直接お問い合わせください。
国土交通大臣免許(2)第9192号 |
---|
- 交通:
- JR東海道本線/元町駅
- 兵庫県神戸市中央区下山手通4丁目7-12
- TEL:
- 078-321-3786
- FAX:
- 078-332-8162
- 所属団体:
- (一社)兵庫県宅地建物取引業協会会員(公社)近畿地区不動産公正取引協議会加盟
取引態様:仲介  - 50108439
|
- スマートフォンで
この不動産会社を見る

|
- 提携サイト等より掲載されている物件情報につきましては、不動産会社詳細情報にリンクされていないものがあります。
- 物件に関するお問合せは、物件詳細ページの「情報提供会社」に表示されている不動産会社へ直接お願いいたします。
- 間取図は、現況を優先させていただきます。
- 映像は物件の一部を撮影したものです。物件の契約にあたっての最終判断はご自身の判断に基づいて行ってください。
- 仲介手数料について

アットホームは物件情報の適正化に努めております。
内容に誤りがある場合にはこちらへご連絡ください。