福岡県福岡市博多区博多駅前4丁目(博多駅)の貸店舗:物件詳細
交通 所在地 |
駅徒歩 |
賃料 管理費等 |
敷金/保証金 礼金 |
使用部分面積 坪数/坪単価 |
物件種目 築年月 |
地下鉄七隈線/博多
福岡県福岡市博多区博多駅前4丁目
|
13分
|
18.7万円
25,300円
|
なし / なし
なし
|
39.03m²
11.80坪/1.5839万円
|
貸店舗・事務所
2025年11月(新築)
|
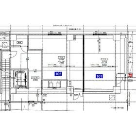
間取図
使用部分面積約39.03㎡(約11.80坪)/スケルトン物件
|
外観
博多駅前4丁目エリア、《MODERN》シリーズ、1Fテナント募集!
|
その他の画像
|
交通 | 地下鉄七隈線 博多駅 徒歩13分 |
---|
その他の交通 | 地下鉄空港線 博多駅 徒歩13分 JR鹿児島本線 博多駅 徒歩13分 |
所在地 |
福岡県福岡市博多区博多駅前4丁目
|
物件種目 |
貸店舗・事務所 |
賃料 |
18.7万円 |
管理費等 |
25,300円 |
敷金 / 保証金 |
なし / なし |
礼金 |
なし |
敷引 |
- |
坪単価 |
1.5839万円 |
保証金償却 |
- |
権利金 |
- |
造作譲渡 |
- |
その他一時金 |
抗菌消毒費用:27,500円 |
維持費等 |
- |
保険等 |
要 |
使用部分面積 |
39.03m² |
坪数 |
11.80坪 |
築年月 |
2025年11月(新築)
|
階建 / 階 |
13階建 / 1階 |
駐車場 |
有 22,000円/月 ※敷地内機械式駐車場※ |
バイク置き場 |
- |
駐輪場 |
- |
土地面積 |
- |
接道状況 |
-
|
用途地域 |
- |
間取り |
- |
建物構造 |
RC |
アピールポイント |
【敷金・礼金0円!《MODERNシリーズ》1Fテナント募集!】
博多駅前4丁目に、新しいビジネスの風を吹き込む「MODERN PALAZZO 博多 South」が誕生!
開業時の大きな味方となる【敷金・礼金ゼロ】で、初期費用を賢く抑えられます。
約11.8坪の空間はスケルトン仕様。
飲食店(重飲食相談可)、バー、物販店など、お客様の想いを形にする自由な設計が可能です。
業種はご相談下さい!
現在建築中のため、内覧は事前予約制にて承っております!
弊社は公式LINEも運営しておりますのでこちらをご登録いただければ内覧予約や物件紹介、またご質問に対する回答もスムーズに行う事が出来ます!
居抜き募集も受け付けております!
※お客様専用LINEの為、不動産業者様の登録はご遠慮下さい※
①下記LINEIDまたは名前検索 ⇒LINEID:@500klacf
【モダンプロジェのお部屋さがし西中洲店】
②友達追加
③チャット欄にお名前・物件・質問等を送って頂ければ登録完了です。
(※必ず1度メッセージをお送り下さい) |
建物名・部屋番号 |
MODERN PALAZZO 博多South 101 |
リフォーム履歴 |
- |
リノベーション履歴 |
- |
特記事項 |
スケルトン、土曜日利用可、土日・祝日利用可、飲食店可、24時間換気システム |
備考 |
賃貸保証等:加入要(※要確認※)
管理形態/管理員の勤務形態:-/-
●定期借家契約:2年(再契約型)
●重飲食・カラオケ使用業種は要相談
●内覧可能(事前予約制)
●物件写真は現状を優先とします
※不動産仲介業者様紹介不可※
|
エネルギー消費性能 |
- |
断熱性能 |
- |
目安光熱費 |
- |
バス・トイレ |
- |
キッチン |
- |
設備・サービス |
プロパンガス |
その他 |
- |
契約期間 |
2年 |
条件等 |
定期借家 |
引渡可能時期 |
2025年11月下旬予定 |
現況 |
未完成 |
更新料 |
- |
物件番号 |
6987962552 |
情報公開日 |
2025年10月10日 |
次回更新予定日 |
2025年11月4日 |
ケータイ用バーコード |
- スマートフォンでこの物件を見る
- スマートフォンからもこの物件をご覧になれます。
|
※「-」と表示されている項目については、情報提供会社にご確認ください。
周辺施設 |
マックスバリュエクスプレス博多消防署通り店 |
距離 |
180m |
周辺施設 |
ファミリーマート博多美野島一丁目店 |
距離 |
240m |
周辺施設 |
麻生医療福祉専門学校福岡校4号館 |
距離 |
250m |
周辺施設 |
麻生医療福祉専門学校福岡校3号館 |
距離 |
280m |
周辺施設 |
麻生情報ビジネス専門学校福岡校 |
距離 |
280m |
周辺施設 |
セブンイレブン博多駅南店 |
距離 |
260m |
ここから簡単にお問い合わせをすることができます。
(SSLでの暗号化での送信を希望されるお客さまは
こちら
よりお問い合わせください)
お問い合わせを行う前に
「個人情報の取り扱いについて」を必ずお読みください。
「個人情報の取り扱いについて」に同意いただいた場合は「上記にご同意の上 確認画面へ進む」のボタンをクリックしてください。
個人情報の取り扱いについて
皆さまが送付された個人情報はアットホーム(株)のサーバを経由し、お問い合わせ先の不動産会社にメールまたはFAXにて転送されるためアットホーム(株)にも保管されます。アットホーム(株)で保管された個人情報の取り扱いについては、【こちら】をご覧ください。
また、本画面でご記入いただいた個人情報は、お問い合わせ先の不動産会社でも保管します。 お問い合わせ先の不動産会社が保管する個人情報の取り扱いについては、不動産会社に直接お問い合わせください。
福岡県知事免許(1)第20237号 |
---|
- 交通:
- 地下鉄七隈線/天神南駅 徒歩5分 【バス】 アクロス福岡・水鏡天満宮前 停歩3分
- 福岡県福岡市中央区西中洲6-14 MKTOWNS西中洲1-A
- TEL:
- 092-406-4514
- FAX:
- 092-406-4515
- 所属団体:
- (公社)福岡県宅地建物取引業協会会員(一社)九州不動産公正取引協議会加盟
取引態様:仲介  - 80507166
|
- スマートフォンで
この不動産会社を見る

|
- 提携サイト等より掲載されている物件情報につきましては、不動産会社詳細情報にリンクされていないものがあります。
- 物件に関するお問合せは、物件詳細ページの「情報提供会社」に表示されている不動産会社へ直接お願いいたします。
- 間取図は、現況を優先させていただきます。
- 映像は物件の一部を撮影したものです。物件の契約にあたっての最終判断はご自身の判断に基づいて行ってください。
- 仲介手数料について

アットホームは物件情報の適正化に努めております。
内容に誤りがある場合にはこちらへご連絡ください。