愛知県名古屋市西区香呑町6丁目(庄内通駅)の貸店舗:物件詳細
交通 所在地 |
駅徒歩 |
賃料 管理費等 |
敷金/保証金 礼金 |
使用部分面積 坪数/坪単価 |
物件種目 築年月 |
|
名古屋市鶴舞線/庄内通
愛知県名古屋市西区香呑町6丁目
|
3分
|
13.2万円
なし
|
8ヶ月 / なし
なし
|
62.35m²
18.86坪/0.6999万円
|
貸店舗・事務所
1973年11月(築52年2ヶ月)
|
|
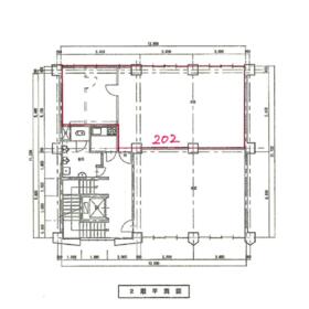
間取図
|
|
その他の画像
|
| 交通 | 名古屋市鶴舞線 庄内通駅 徒歩3分 |
|---|
| その他の交通 | 名古屋市鶴舞線 浄心駅 徒歩17分 名古屋市鶴舞線 庄内緑地公園駅 徒歩24分 |
| 所在地 |
愛知県名古屋市西区香呑町6丁目
|
| 物件種目 |
貸店舗・事務所 |
| 賃料 |
13.2万円 |
管理費等 |
なし |
| 敷金 / 保証金 |
8ヶ月 / なし |
礼金 |
なし |
| 敷引 |
- |
坪単価 |
0.6999万円 |
| 保証金償却 |
- |
権利金 |
- |
| 造作譲渡 |
造作譲渡無償 |
その他一時金 |
- |
| 維持費等 |
- |
保険等 |
要 詳細はお問合せください |
| 使用部分面積 |
62.35m² |
坪数 |
18.86坪 |
| 築年月 |
1973年11月(築52年2ヶ月)
|
階建 / 階 |
7階建 / 2階 |
| 駐車場 |
- |
バイク置き場 |
- |
| 駐輪場 |
- |
土地面積 |
- |
| 接道状況 |
-
|
用途地域 |
- |
| 間取り |
- |
建物構造 |
RC |
| アピールポイント |
本物件以外にもご紹介しきれていない物件もございますので
ご相談やご質問などお気軽にお問合せくださいませ♪
また、テナント以外にも内装工事や仲介・管理も可能でござます! |
| 建物名・部屋番号 |
ミスズビル 202 |
| リフォーム履歴 |
- |
| リノベーション履歴 |
- |
| 特記事項 |
居抜き、24時間利用可、土曜日利用可、角部屋、IT重説対応物件 |
| 備考 |
賃貸保証等:利用可(保証会社利用の場合は敷金相談可)
管理形態/管理員の勤務形態:-/-
主要採光面:南向き
IT重説対応物件
※敷金は保証会社加入の有無で変更可能です。
※賃料等の条件面ご相談可能です。
|
| エネルギー消費性能 |
- |
| 断熱性能 |
- |
| 目安光熱費 |
- |
| バス・トイレ |
共用部分にトイレあり |
| キッチン |
- |
| 設備・サービス |
- |
| その他 |
エレベーター |
| 契約期間 |
2年 |
条件等 |
- |
| 引渡可能時期 |
即時 |
現況 |
空 |
| 仲介手数料 |
1.1ヶ月 |
|
|
| 更新料 |
- |
物件番号 |
6987963825 |
| 情報公開日 |
2025年10月10日 |
次回更新予定日 |
2025年12月12日 |
| ケータイ用バーコード |
- スマートフォンでこの物件を見る
- スマートフォンからもこの物件をご覧になれます。
|
※「-」と表示されている項目については、情報提供会社にご確認ください。
ここから簡単にお問い合わせをすることができます。
(SSLでの暗号化での送信を希望されるお客さまは
こちら
よりお問い合わせください)
お問い合わせを行う前に
「個人情報の取り扱いについて」を必ずお読みください。
「個人情報の取り扱いについて」に同意いただいた場合は「上記にご同意の上 確認画面へ進む」のボタンをクリックしてください。
個人情報の取り扱いについて
皆さまが送付された個人情報はアットホーム(株)のサーバを経由し、お問い合わせ先の不動産会社にメールまたはFAXにて転送されるためアットホーム(株)にも保管されます。アットホーム(株)で保管された個人情報の取り扱いについては、【こちら】をご覧ください。
また、本画面でご記入いただいた個人情報は、お問い合わせ先の不動産会社でも保管します。 お問い合わせ先の不動産会社が保管する個人情報の取り扱いについては、不動産会社に直接お問い合わせください。
愛知県知事免許(3)第22472号 |
|---|
- 交通:
- 名古屋市桜通線/久屋大通駅 徒歩4分
- 愛知県名古屋市中区丸の内3丁目9-16 丸の内YSビル1階
- TEL:
- 052-684-8071
- FAX:
- 052-684-8073
- 所属団体:
- (公社)愛知県宅地建物取引業協会会員東海不動産公正取引協議会加盟
取引態様:仲介  - 40403804
|
- スマートフォンで
この不動産会社を見る

|
- 提携サイト等より掲載されている物件情報につきましては、不動産会社詳細情報にリンクされていないものがあります。
- 物件に関するお問合せは、物件詳細ページの「情報提供会社」に表示されている不動産会社へ直接お願いいたします。
- 間取図は、現況を優先させていただきます。
- 映像は物件の一部を撮影したものです。物件の契約にあたっての最終判断はご自身の判断に基づいて行ってください。
- 仲介手数料について

アットホームは物件情報の適正化に努めております。
内容に誤りがある場合にはこちらへご連絡ください。