神奈川県川崎市多摩区登戸(登戸駅)の貸店舗:物件詳細
交通 所在地 |
駅徒歩 |
賃料 管理費等 |
敷金/保証金 礼金 |
使用部分面積 坪数/坪単価 |
物件種目 築年月 |
JR南武線/登戸
神奈川県川崎市多摩区登戸
|
3分
|
23.1万円
11,000円
|
なし / 96万円
1ヶ月
|
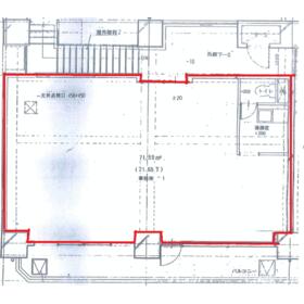
71.59m²
21.65坪/1.0667万円
|
貸店舗・事務所
1997年2月(築28年9ヶ月)
|
交通 | JR南武線 登戸駅 徒歩3分 |
---|
その他の交通 | 小田急小田原線 登戸駅 徒歩3分 小田急小田原線 向ヶ丘遊園駅 徒歩9分 |
所在地 |
神奈川県川崎市多摩区登戸
|
物件種目 |
貸店舗・事務所 |
賃料 |
23.1万円 |
管理費等 |
11,000円 |
敷金 / 保証金 |
なし / 96万円 |
礼金 |
1ヶ月 |
敷引 |
- |
坪単価 |
1.0667万円 |
保証金償却 |
解約時20% |
権利金 |
- |
造作譲渡 |
- |
その他一時金 |
- |
維持費等 |
- |
保険等 |
要 |
使用部分面積 |
71.59m² |
坪数 |
21.65坪 |
築年月 |
1997年2月(築28年9ヶ月)
|
階建 / 階 |
8階建 / 2階 |
駐車場 |
- |
バイク置き場 |
- |
駐輪場 |
- |
土地面積 |
- |
接道状況 |
-
|
用途地域 |
近隣商業 |
間取り |
- |
建物構造 |
SRC |
アピールポイント |
当営業部は、店舗・事務所など事業用物件を専門に扱う不動産会社です。立地・条件・業種に合わせた最適なご提案で、お客様の出店・開業に向けて全力でサポ-ト致します。 |
建物名・部屋番号 |
|
リフォーム履歴 |
- |
リノベーション履歴 |
- |
特記事項 |
飲食店不可、角部屋 |
備考 |
賃貸保証等:加入要(保証会社必須:初回保証委託料月額賃料等1ヶ月分、更新時賃料の10%/年)
管理形態/管理員の勤務形態:-/-
主要採光面:南東向き
2026.3月末日退去。2026.4月中旬より利用可。現在、ダンス教室盛業中。
|
エネルギー消費性能 |
- |
断熱性能 |
- |
目安光熱費 |
- |
バス・トイレ |
トイレ |
キッチン |
- |
設備・サービス |
都市ガス |
その他 |
- |
契約期間 |
3年 |
条件等 |
定期借家 |
引渡可能時期 |
2026年4月中旬予定 |
現況 |
居住中 |
仲介手数料 |
1ヶ月 |
|
|
更新料 |
- |
物件番号 |
6987965474 |
情報公開日 |
2025年10月10日 |
次回更新予定日 |
2025年10月24日 |
ケータイ用バーコード |
- スマートフォンでこの物件を見る
- スマートフォンからもこの物件をご覧になれます。
|
※「-」と表示されている項目については、情報提供会社にご確認ください。
ここから簡単にお問い合わせをすることができます。
(SSLでの暗号化での送信を希望されるお客さまは
こちら
よりお問い合わせください)
お問い合わせを行う前に
「個人情報の取り扱いについて」を必ずお読みください。
「個人情報の取り扱いについて」に同意いただいた場合は「上記にご同意の上 確認画面へ進む」のボタンをクリックしてください。
個人情報の取り扱いについて
皆さまが送付された個人情報はアットホーム(株)のサーバを経由し、お問い合わせ先の不動産会社にメールまたはFAXにて転送されるためアットホーム(株)にも保管されます。アットホーム(株)で保管された個人情報の取り扱いについては、【こちら】をご覧ください。
また、本画面でご記入いただいた個人情報は、お問い合わせ先の不動産会社でも保管します。 お問い合わせ先の不動産会社が保管する個人情報の取り扱いについては、不動産会社に直接お問い合わせください。
(株)エイブル 東日本テナント営業部国土交通大臣免許(7)第5338号 |
---|
- 交通:
- 東京メトロ銀座線/赤坂見附駅 徒歩2分
- 東京都港区元赤坂1丁目5-5 元赤坂SFビル3階
- TEL:
- 03-5414-0650
- FAX:
- 03-5414-0659
- 所属団体:
- (一社)不動産流通経営協会会員(公社)首都圏不動産公正取引協議会加盟
取引態様:仲介 |
- 提携サイト等より掲載されている物件情報につきましては、不動産会社詳細情報にリンクされていないものがあります。
- 物件に関するお問合せは、物件詳細ページの「情報提供会社」に表示されている不動産会社へ直接お願いいたします。
- 間取図は、現況を優先させていただきます。
- 映像は物件の一部を撮影したものです。物件の契約にあたっての最終判断はご自身の判断に基づいて行ってください。
- 仲介手数料について

アットホームは物件情報の適正化に努めております。
内容に誤りがある場合にはこちらへご連絡ください。