不動産 賃貸 マンション等の住宅情報:埼玉住まい情報


滋賀県長浜市山階町(長浜駅)の貸店舗:物件詳細

  • 物件詳細
  • 情報の見方
  • 印刷用画面
交通
所在地
駅徒歩 賃料
管理費等
敷金/保証金
礼金
使用部分面積
坪数/坪単価
物件種目
築年月

JR北陸本線/長浜
【バス】8分 山階 停歩9分 新着

滋賀県長浜市山階町


38.5万円

16,500円

3ヶ月 / なし

3.3ヶ月

229.23m²

69.34坪/0.5553万円

貸店舗(建物一括)

2000年11月(築25年2ヶ月)

おすすめコメント

長浜市 山階町 貸店舗 一棟貸し イオン長浜店 徒歩4分

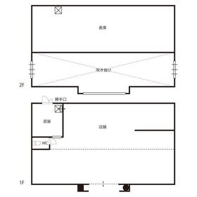
間取図

間取図

長浜市山階町平面図

その他

その他

長浜市山階町位置図

  • とりあえず保存
  • お問い合わせ
交通

JR北陸本線 長浜駅
【バス】 8分 山階 停歩9分

所在地 滋賀県長浜市山階町
物件種目 貸店舗(建物一括)
賃料 38.5万円 管理費等 16,500円
敷金 / 保証金 3ヶ月 / なし 礼金 3.3ヶ月
敷引 坪単価 0.5553万円
保証金償却 権利金
造作譲渡 その他一時金
維持費等 保険等
使用部分面積 229.23m² 坪数 69.34坪
築年月 2000年11月(築25年2ヶ月) 階建 / 階 2階建
駐車場 有 無料(空き6台) バイク置き場
駐輪場 土地面積 369.60m²(公簿)
接道状況 東 15.0m 公道 接面18.4m ・ 西 6.0m 公道 接面18.4m 用途地域 1種住居
間取り 建物構造 鉄骨造
アピールポイント 長浜市 山階町 貸店舗 一棟貸し イオン長浜店 徒歩4分
建物名・部屋番号  
リフォーム履歴
リノベーション履歴
特記事項 居抜き、飲食店不可、駐車場3台分以上、都道府県道沿いに面する
備考
賃貸保証等:加入要(・初回保証料総賃料の100%、1年毎に1万円。・更新事務手数料 10,000円(税別))
管理形態/管理員の勤務形態:-/-
※設備の有償譲渡有(美容院設備、エアコン、給湯器など)。価格に関してはお問い合わせ下さい。設備不要の場合は事前にお申し出下さい。返却時原状回復(借主負担) 警備会社(セコム)継続は要相談 現状有姿渡し 現在営業中(2025年12月30日まで)の為、内見を希望される場合は家主より日時を指定させて頂きます。 その他詳しくはお問合せ下さい。 
エネルギー消費性能
断熱性能
目安光熱費
バス・トイレ トイレ
キッチン
設備・サービス
その他
契約期間 2年 条件等
引渡可能時期 相談 現況 使用中
仲介手数料 1ヶ月    
更新料 新賃料 1ヶ月 物件番号 6987975508
情報公開日 2025年12月1日 次回更新予定日 2025年12月15日
ケータイ用バーコード

QRコード

スマートフォンでこの物件を見る
スマートフォンからもこの物件をご覧になれます。
※「-」と表示されている項目については、情報提供会社にご確認ください。

この物件の周辺情報

周辺施設 イオン長浜店
距離 349m
周辺施設 イオン長浜ショッピングセンター
距離 349m
周辺施設 ローソン長浜山階町店
距離 272m
周辺施設 マクドナルドイオン長浜店
距離 358m
周辺施設 ジョリーパスタ長浜インター店
距離 290m
周辺施設 エネオス長浜インターSS
距離 189m
周辺施設 スギ薬局長浜インター店
距離 705m
周辺施設 ホームセンターコーナンイオン長浜店
距離 360m

クイックお問い合わせ

ここから簡単にお問い合わせをすることができます。
(SSLでの暗号化での送信を希望されるお客さまは こちら よりお問い合わせください)

お問い合わせ内容(必須)
物件のお問い合わせ理由(必須)
お名前・ご担当者様名(必須) 姓  名 
メールアドレス(必須)
※携帯電話のメールアドレスをご入力される方はこちらをご確認ください
電話番号(必須)
- -

※入力いただいた電話番号へSMSまたは音声でパスワードをご連絡します。

携帯電話の番号をご入力の方へ

携帯電話の番号をご入力の方へ
確認画面にて送信ボタンをクリックするとSMSが携帯電話に届きます。
そのSMSに記載のパスワード(認証番号)を入力し、お問い合わせを完了してください。
尚、SMSの送信者番号は 0005 202 760 となります。
これはアットホームの固定番号です。

備考欄 希望条件、物件案内希望日、質問などがございましたらご記入ください。
お問い合わせを行う前に「個人情報の取り扱いについて」を必ずお読みください。
「個人情報の取り扱いについて」に同意いただいた場合は「上記にご同意の上 確認画面へ進む」のボタンをクリックしてください。

個人情報の取り扱いについて

皆さまが送付された個人情報はアットホーム(株)のサーバを経由し、お問い合わせ先の不動産会社にメールまたはFAXにて転送されるためアットホーム(株)にも保管されます。アットホーム(株)で保管された個人情報の取り扱いについては、【こちら】をご覧ください。
また、本画面でご記入いただいた個人情報は、お問い合わせ先の不動産会社でも保管します。 お問い合わせ先の不動産会社が保管する個人情報の取り扱いについては、不動産会社に直接お問い合わせください。

情報提供会社

情報提供会社

えがおエステート (株)Office Dz

滋賀県知事免許(1)第3940号

交通:
JR北陸本線/長浜駅 徒歩10分
滋賀県長浜市末広町240-17 ワイエフビル20
TEL:
0749-50-8700
FAX:
0749-50-8741
所属団体:
(公社)滋賀県宅地建物取引業協会会員
(公社)近畿地区不動産公正取引協議会加盟

取引態様:代理

  • 会社情報
  • 50108961
スマートフォンで
この不動産会社を見る
QRコード
  • とりあえず保存
  • お問い合わせ
  • 提携サイト等より掲載されている物件情報につきましては、不動産会社詳細情報にリンクされていないものがあります。
  • 物件に関するお問合せは、物件詳細ページの「情報提供会社」に表示されている不動産会社へ直接お願いいたします。
  • 間取図は、現況を優先させていただきます。
  • 映像は物件の一部を撮影したものです。物件の契約にあたっての最終判断はご自身の判断に基づいて行ってください。
  • 仲介手数料について仲介手数料

アットホームは物件情報の適正化に努めております。 内容に誤りがある場合にはこちらへご連絡ください。

【埼玉住まい情報】では、日本全国の物件から賃貸マンションや賃貸アパート・賃貸一戸建て等の賃貸住宅情報、新築マンション・分譲マンションや中古マンション等の売買マンション情報、新築一戸建てや中古一戸建てなどの戸建住宅、 土地など、総合的な不動産住宅情報検索サービスを提供致します。
【埼玉住まい情報】から、選りすぐりの不動産物件を探してみましょう。

【免責事項】
このコーナーの運営はアットホーム株式会社(https://www.athome.co.jp/)が行っています。
このコーナーに掲載している物件情報は、「アットホーム不動産情報ネットワーク」に加盟する不動産会社等(情報提供元)から提供されています。信頼性の高い情報提供が行えるよう、最大限の努力をしておりますが、その内容を保証するものではありません。 利用者のみなさまと各情報提供元との取引に起因する損害および情報が掲載されたことに起因する損害等については、株式会社イーシティ埼玉、およびアットホームは一切責任を負いません。
各物件情報の内容や画像等はすべて現況を優先させていただきます。
お取引等(お取引の準備、資金調達等を含みます)の際には、内容や契約条件等について、各情報提供元より十分な説明を受け、ご自身でご確認の上、判断してください。
このコーナーへの物件情報のご掲載、その他不動産業務ソリューション等についての不動産会社様のお問合せはこちらからお願いいたします。

物件画像: