東京都小平市学園西町1丁目(一橋学園駅)の貸店舗:物件詳細
交通 所在地 |
駅徒歩 |
賃料 管理費等 |
敷金/保証金 礼金 |
使用部分面積 坪数/坪単価 |
物件種目 築年月 |
西武多摩湖線/一橋学園
東京都小平市学園西町1丁目
|
3分
|
14.3万円
-
|
3ヶ月 / なし
1ヶ月
|
73.00m²
22.08坪/0.6476万円
|
貸店舗
1989年3月(築36年8ヶ月)
|
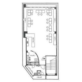
間取図
|
外観
|
<
その他の画像
>
|
交通 | 西武多摩湖線 一橋学園駅 徒歩3分 |
---|
その他の交通 | 西武多摩湖線 青梅街道駅 徒歩17分 JR武蔵野線 新小平駅 徒歩24分 |
所在地 |
東京都小平市学園西町1丁目
|
物件種目 |
貸店舗 |
賃料 |
14.3万円 |
管理費等 |
- |
敷金 / 保証金 |
3ヶ月 / なし |
礼金 |
1ヶ月 |
敷引 |
- |
坪単価 |
0.6476万円 |
保証金償却 |
- |
権利金 |
- |
造作譲渡 |
- |
その他一時金 |
- |
維持費等 |
- |
保険等 |
要 |
使用部分面積 |
73.00m² |
坪数 |
22.08坪 |
築年月 |
1989年3月(築36年8ヶ月)
|
階建 / 階 |
地上3階地下1階建 / 2階 |
駐車場 |
- |
バイク置き場 |
- |
駐輪場 |
- |
土地面積 |
- |
接道状況 |
-
|
用途地域 |
- |
間取り |
ワンルーム |
建物構造 |
RC |
建物名・部屋番号 |
つくもビル |
リフォーム履歴 |
- |
リノベーション履歴 |
- |
特記事項 |
居抜き、飲食店可、保証人不要 |
備考 |
賃貸保証等:加入要(連帯保証人要、保証会社必須:初回に賃料と共益費(管理費)等合計の80%借主負担、以降継続保証料2年毎に賃料と共益費(管理費)等合計の30%借主負担。毎月々引落手数料330円、借主負担。)
管理形態/管理員の勤務形態:-/-
水道代、ガス代、建物一括請求の為、各戸数分を管理会社から別途請求。
解約時に敷金1ヶ月償却。
|
エネルギー消費性能 |
- |
断熱性能 |
- |
目安光熱費 |
- |
バス・トイレ |
トイレ |
キッチン |
- |
設備・サービス |
収納スペース、給湯、エアコン |
その他 |
- |
契約期間 |
3年 |
条件等 |
- |
引渡可能時期 |
即時 |
現況 |
空 |
仲介手数料 |
1.1ヶ月 |
|
|
更新料 |
新賃料 1ヶ月 |
物件番号 |
6987994767 |
情報公開日 |
2025年10月12日 |
次回更新予定日 |
2025年10月27日 |
ケータイ用バーコード |
- スマートフォンでこの物件を見る
- スマートフォンからもこの物件をご覧になれます。
|
※「-」と表示されている項目については、情報提供会社にご確認ください。
ここから簡単にお問い合わせをすることができます。
(SSLでの暗号化での送信を希望されるお客さまは
こちら
よりお問い合わせください)
お問い合わせを行う前に
「個人情報の取り扱いについて」を必ずお読みください。
「個人情報の取り扱いについて」に同意いただいた場合は「上記にご同意の上 確認画面へ進む」のボタンをクリックしてください。
個人情報の取り扱いについて
皆さまが送付された個人情報はアットホーム(株)のサーバを経由し、お問い合わせ先の不動産会社にメールまたはFAXにて転送されるためアットホーム(株)にも保管されます。アットホーム(株)で保管された個人情報の取り扱いについては、【こちら】をご覧ください。
また、本画面でご記入いただいた個人情報は、お問い合わせ先の不動産会社でも保管します。 お問い合わせ先の不動産会社が保管する個人情報の取り扱いについては、不動産会社に直接お問い合わせください。
東京都知事免許(5)第80807号 |
---|
- 交通:
- 西武新宿線/田無駅 徒歩1分
- 東京都西東京市南町4丁目2-2 エスフィールド田無102
- TEL:
- 042-452-6400
- FAX:
- 042-452-6401
- 所属団体:
- (公社)全日本不動産協会会員(公社)首都圏不動産公正取引協議会加盟
取引態様:仲介  - 00983049
|
- スマートフォンで
この不動産会社を見る

|
- 提携サイト等より掲載されている物件情報につきましては、不動産会社詳細情報にリンクされていないものがあります。
- 物件に関するお問合せは、物件詳細ページの「情報提供会社」に表示されている不動産会社へ直接お願いいたします。
- 間取図は、現況を優先させていただきます。
- 映像は物件の一部を撮影したものです。物件の契約にあたっての最終判断はご自身の判断に基づいて行ってください。
- 仲介手数料について

アットホームは物件情報の適正化に努めております。
内容に誤りがある場合にはこちらへご連絡ください。