神奈川県横浜市港北区綱島西1丁目(綱島駅)の貸店舗:物件詳細
交通 所在地 |
駅徒歩 |
賃料 管理費等 |
敷金/保証金 礼金 |
使用部分面積 坪数/坪単価 |
物件種目 築年月 |
|
東急東横線/綱島
神奈川県横浜市港北区綱島西1丁目
|
2分
|
57.2万円
165,000円
|
なし / 500万円
なし
|
172.82m²
52.27坪/1.0942万円
|
貸店舗
1990年9月(築35年2ヶ月)
|
| 交通 | 東急東横線 綱島駅 徒歩2分 |
|---|
| その他の交通 | 東急新横浜線 新綱島駅 徒歩5分 グリーンライン 日吉本町駅 徒歩25分 |
| 所在地 |
神奈川県横浜市港北区綱島西1丁目
|
| 物件種目 |
貸店舗 |
| 賃料 |
57.2万円 |
管理費等 |
165,000円 |
| 敷金 / 保証金 |
なし / 500万円 |
礼金 |
なし |
| 敷引 |
- |
坪単価 |
1.0942万円 |
| 保証金償却 |
解約時30% |
権利金 |
- |
| 造作譲渡 |
330万円 |
その他一時金 |
- |
| 維持費等 |
- |
保険等 |
- |
| 使用部分面積 |
172.82m² |
坪数 |
52.27坪 |
| 築年月 |
1990年9月(築35年2ヶ月)
|
階建 / 階 |
4階建 / 3階 |
| 駐車場 |
- |
バイク置き場 |
- |
| 駐輪場 |
- |
土地面積 |
- |
| 接道状況 |
-
|
用途地域 |
- |
| 間取り |
- |
建物構造 |
RC |
| アピールポイント |
綱島駅至近!大通りに面した視認性良好な好立地☆
焼肉店の内装があるので類似業態ならスピード開業可能です。 |
| 建物名・部屋番号 |
|
| リフォーム履歴 |
- |
| リノベーション履歴 |
- |
| 特記事項 |
飲食店可 |
| 備考 |
管理形態/管理員の勤務形態:-/-
綱島駅至近!大通りに面した視認性良好な好立地☆
焼肉店の内装があるので類似業態ならスピード開業可能です。
|
| エネルギー消費性能 |
- |
| 断熱性能 |
- |
| 目安光熱費 |
- |
| バス・トイレ |
- |
| キッチン |
- |
| 設備・サービス |
- |
| その他 |
- |
| 契約期間 |
3年 |
条件等 |
- |
| 引渡可能時期 |
相談 |
現況 |
居住中 |
| 更新料 |
新賃料 1.5ヶ月 |
物件番号 |
6988023766 |
| 情報公開日 |
2025年10月15日 |
次回更新予定日 |
2025年10月29日 |
| ケータイ用バーコード |
- スマートフォンでこの物件を見る
- スマートフォンからもこの物件をご覧になれます。
|
※「-」と表示されている項目については、情報提供会社にご確認ください。
ここから簡単にお問い合わせをすることができます。
(SSLでの暗号化での送信を希望されるお客さまは
こちら
よりお問い合わせください)
お問い合わせを行う前に
「個人情報の取り扱いについて」を必ずお読みください。
「個人情報の取り扱いについて」に同意いただいた場合は「上記にご同意の上 確認画面へ進む」のボタンをクリックしてください。
個人情報の取り扱いについて
皆さまが送付された個人情報はアットホーム(株)のサーバを経由し、お問い合わせ先の不動産会社にメールまたはFAXにて転送されるためアットホーム(株)にも保管されます。アットホーム(株)で保管された個人情報の取り扱いについては、【こちら】をご覧ください。
また、本画面でご記入いただいた個人情報は、お問い合わせ先の不動産会社でも保管します。 お問い合わせ先の不動産会社が保管する個人情報の取り扱いについては、不動産会社に直接お問い合わせください。
東京都知事免許(1)第111630号 |
|---|
- 交通:
- JR山手線/目黒駅 徒歩1分
- 東京都品川区上大崎3丁目1-1 目黒セントラルスクエア
- TEL:
- 0120-936-781
- FAX:
- 03-6741-4686
取引態様:仲介  - 00269411
|
- スマートフォンで
この不動産会社を見る

|
- 提携サイト等より掲載されている物件情報につきましては、不動産会社詳細情報にリンクされていないものがあります。
- 物件に関するお問合せは、物件詳細ページの「情報提供会社」に表示されている不動産会社へ直接お願いいたします。
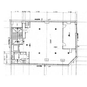
- 間取図は、現況を優先させていただきます。
- 映像は物件の一部を撮影したものです。物件の契約にあたっての最終判断はご自身の判断に基づいて行ってください。
- 仲介手数料について

アットホームは物件情報の適正化に努めております。
内容に誤りがある場合にはこちらへご連絡ください。