兵庫県神戸市中央区下山手通1丁目(三宮駅)の貸店舗:物件詳細
交通 所在地 |
駅徒歩 |
賃料 管理費等 |
敷金/保証金 礼金 |
使用部分面積 坪数/坪単価 |
物件種目 築年月 |
|
地下鉄西神・山手線/三宮
兵庫県神戸市中央区下山手通1丁目
|
1分
|
25.85万円
16,500円
|
なし / 23.5万円
77.55万円
|
42.97m²
12.99坪/1.9888万円
|
貸店舗
1990年8月(築35年5ヶ月)
|
|
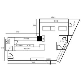
間取図
|
|
その他の画像
|
| 交通 | 地下鉄西神・山手線 三宮駅 徒歩1分 |
|---|
| その他の交通 | 阪急神戸線 神戸三宮駅 徒歩5分 神戸高速東西線 神戸三宮駅 徒歩5分 |
| 所在地 |
兵庫県神戸市中央区下山手通1丁目
|
| 物件種目 |
貸店舗 |
| 賃料 |
25.85万円 |
管理費等 |
16,500円 |
| 敷金 / 保証金 |
なし / 23.5万円 |
礼金 |
77.55万円 |
| 敷引 |
- |
坪単価 |
1.9888万円 |
| 保証金償却 |
- |
権利金 |
- |
| 造作譲渡 |
造作譲渡無償 |
その他一時金 |
- |
| 維持費等 |
- |
保険等 |
要 2年 火災 |
| クレジットカード決済 |
初期費用可 |
| 使用部分面積 |
42.97m² |
坪数 |
12.99坪 |
| 築年月 |
1990年8月(築35年5ヶ月)
|
階建 / 階 |
7階建 / 6階 |
| 駐車場 |
- |
バイク置き場 |
- |
| 駐輪場 |
- |
土地面積 |
- |
| 接道状況 |
-
|
用途地域 |
- |
| 間取り |
- |
建物構造 |
SRC |
| アピールポイント |
大阪のテナントは、RiseEstateにお任せください。
店舗、事務所、倉庫全てご紹介可能です。
弊社の強みとして、ネット媒体に載っていない未公開物件の取り扱いもしております。
TEL 06-6585-0001
お気軽にお問い合わせ下さい。
■弊社の得意分野の一つとして「店舗売却」が御座います。
閉店や移転を考えているお客様にとって、有益な情報のご提供や弊社から最善の売却方法をご提案出来ます!!
今手元にお持ちの物件を貸したいけど相場が分からないお客様、入居付けに自信が無く空室を抱えてる方等、幅広くご対応が可能です。
テナント賃貸は是非「RiseEstate」にお任せください!!
お客様がご希望される条件に添える物件を最速で探して参ります。
お気軽にお問い合わせください。 |
| 建物名・部屋番号 |
|
| リフォーム履歴 |
- |
| リノベーション履歴 |
- |
| 特記事項 |
居抜き、24時間利用可、土曜日利用可、土日・祝日利用可、飲食店可、天井高2.5M以上、IT重説対応物件 |
| 備考 |
賃貸保証等:加入要(保証会社加入要)
管理形態/管理員の勤務形態:-/-
IT重説対応物件
|
| エネルギー消費性能 |
- |
| 断熱性能 |
- |
| 目安光熱費 |
- |
| バス・トイレ |
トイレ |
| キッチン |
オープンキッチン |
| 設備・サービス |
看板取付スペースあり、空調機あり
収納スペース、室内洗濯機置場、冷蔵庫、洗濯機置場、給湯、都市ガス、動力あり、ビルトインエアコン、エアコン、暖房、冷房、インターネット対応 |
| その他 |
エレベーター |
| 契約期間 |
2年 |
条件等 |
- |
| 引渡可能時期 |
即時 |
現況 |
空 |
| 更新料 |
- |
物件番号 |
6988051385 |
| 情報公開日 |
2025年10月17日 |
次回更新予定日 |
2025年12月14日 |
| ケータイ用バーコード |
- スマートフォンでこの物件を見る
- スマートフォンからもこの物件をご覧になれます。
|
※「-」と表示されている項目については、情報提供会社にご確認ください。
| 周辺施設 |
セブンイレブン神戸三宮東門街店 |
| 距離 |
332m |
| 周辺施設 |
私立神戸女子大学三宮キャンパス |
| 距離 |
296m |
| 周辺施設 |
私立日本経済大学神戸三宮キャンパス |
| 距離 |
635m |
ここから簡単にお問い合わせをすることができます。
(SSLでの暗号化での送信を希望されるお客さまは
こちら
よりお問い合わせください)
お問い合わせを行う前に
「個人情報の取り扱いについて」を必ずお読みください。
「個人情報の取り扱いについて」に同意いただいた場合は「上記にご同意の上 確認画面へ進む」のボタンをクリックしてください。
個人情報の取り扱いについて
皆さまが送付された個人情報はアットホーム(株)のサーバを経由し、お問い合わせ先の不動産会社にメールまたはFAXにて転送されるためアットホーム(株)にも保管されます。アットホーム(株)で保管された個人情報の取り扱いについては、【こちら】をご覧ください。
また、本画面でご記入いただいた個人情報は、お問い合わせ先の不動産会社でも保管します。 お問い合わせ先の不動産会社が保管する個人情報の取り扱いについては、不動産会社に直接お問い合わせください。
大阪府知事免許(1)第65088号 |
|---|
- 交通:
- 地下鉄谷町線/東梅田駅 徒歩6分
- 大阪府大阪市北区兎我野町5-9 梅田UKビル8階
- TEL:
- 06-6585-0001
- FAX:
- 06-7730-9753
- 所属団体:
- (一社)大阪府宅地建物取引業協会会員(公社)近畿地区不動産公正取引協議会加盟
取引態様:仲介  - 50109846
|
- スマートフォンで
この不動産会社を見る

|
- 提携サイト等より掲載されている物件情報につきましては、不動産会社詳細情報にリンクされていないものがあります。
- 物件に関するお問合せは、物件詳細ページの「情報提供会社」に表示されている不動産会社へ直接お願いいたします。
- 間取図は、現況を優先させていただきます。
- 映像は物件の一部を撮影したものです。物件の契約にあたっての最終判断はご自身の判断に基づいて行ってください。
- 仲介手数料について

アットホームは物件情報の適正化に努めております。
内容に誤りがある場合にはこちらへご連絡ください。