大阪府大阪市北区西天満3丁目(なにわ橋駅)の貸店舗:物件詳細
交通 所在地 |
駅徒歩 |
賃料 管理費等 |
敷金/保証金 礼金 |
使用部分面積 坪数/坪単価 |
物件種目 築年月 |
|
京阪中之島線/なにわ橋
大阪府大阪市北区西天満3丁目
|
5分
|
175.7184万円
-
|
12ヶ月 / なし
なし
|
330.04m²
99.83坪/1.7601万円
|
貸店舗・事務所
1989年4月(築36年11ヶ月)
|
|
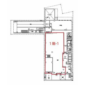
間取図
|
|
その他の画像
|
| 交通 | 京阪中之島線 なにわ橋駅 徒歩5分 |
|---|
| その他の交通 | 京阪本線 北浜駅 徒歩5分 地下鉄谷町線 南森町駅 徒歩8分 |
| 所在地 |
大阪府大阪市北区西天満3丁目
|
| 物件種目 |
貸店舗・事務所 |
| 賃料 |
175.7184万円 |
管理費等 |
- |
| 敷金 / 保証金 |
12ヶ月 / なし |
礼金 |
なし |
| 敷引 |
- |
坪単価 |
1.7601万円 |
| 保証金償却 |
- |
権利金 |
- |
| 造作譲渡 |
- |
その他一時金 |
- |
| 維持費等 |
- |
保険等 |
- |
| 使用部分面積 |
330.04m² |
坪数 |
99.83坪 |
| 築年月 |
1989年4月(築36年11ヶ月)
|
階建 / 階 |
地上8階地下2階建 / 1階 |
| 駐車場 |
- |
バイク置き場 |
- |
| 駐輪場 |
- |
土地面積 |
- |
| 接道状況 |
-
|
用途地域 |
- |
| 間取り |
- |
建物構造 |
鉄骨造 |
| アピールポイント |
西天満3丁目
「北浜駅」「南森町駅」間の立地
8階建てオフィスビルの1階路面区画が募集中。
2025年12月末解約予定。
現況:事務所仕様
共用部分にトイレ等あり
区画内に給排水の引込も可能ですので、店舗利用もご相談ください。
飲食店での利用はNGです。
お問い合わせお待ちしております。 |
| 建物名・部屋番号 |
|
| リフォーム履歴 |
- |
| リノベーション履歴 |
- |
| 特記事項 |
土曜日利用可、土日・祝日利用可、飲食店不可、IT重説対応物件 |
| 備考 |
管理形態/管理員の勤務形態:-/-
IT重説対応物件
|
| エネルギー消費性能 |
- |
| 断熱性能 |
- |
| 目安光熱費 |
- |
| バス・トイレ |
- |
| キッチン |
- |
| 設備・サービス |
看板取付スペースあり
個別空調、光ファイバー |
| その他 |
- |
| 契約期間 |
10年 |
条件等 |
定期借家 |
| 引渡可能時期 |
相談 |
現況 |
使用中 |
| 更新料 |
- |
物件番号 |
6988054755 |
| 情報公開日 |
2026年1月8日 |
次回更新予定日 |
2026年2月18日 |
| ケータイ用バーコード |
- スマートフォンでこの物件を見る
- スマートフォンからもこの物件をご覧になれます。
|
※「-」と表示されている項目については、情報提供会社にご確認ください。
| 周辺施設 |
セブンイレブン大阪西天満1丁目店 |
| 距離 |
114m |
| 周辺施設 |
認定こども園中之島ちどり保育園 |
| 距離 |
214m |
| 周辺施設 |
阪高ファインパーク西天満 |
| 距離 |
177m |
ここから簡単にお問い合わせをすることができます。
(SSLでの暗号化での送信を希望されるお客さまは
こちら
よりお問い合わせください)
お問い合わせを行う前に
「個人情報の取り扱いについて」を必ずお読みください。
「個人情報の取り扱いについて」に同意いただいた場合は「上記にご同意の上 確認画面へ進む」のボタンをクリックしてください。
個人情報の取り扱いについて
皆さまが送付された個人情報はアットホーム(株)のサーバを経由し、お問い合わせ先の不動産会社にメールまたはFAXにて転送されるためアットホーム(株)にも保管されます。アットホーム(株)で保管された個人情報の取り扱いについては、【こちら】をご覧ください。
また、本画面でご記入いただいた個人情報は、お問い合わせ先の不動産会社でも保管します。 お問い合わせ先の不動産会社が保管する個人情報の取り扱いについては、不動産会社に直接お問い合わせください。
大阪府知事免許(1)第62884号 |
|---|
- 交通:
- 地下鉄御堂筋線/本町駅 徒歩5分
- 大阪府大阪市西区南堀江1丁目25-12 RE-015 302号室
- TEL:
- 06-6786-8690
- FAX:
- 06-6786-8691
- 所属団体:
- (公社)全日本不動産協会会員(公社)近畿地区不動産公正取引協議会加盟
取引態様:仲介  - 50106188
|
- スマートフォンで
この不動産会社を見る

|
- 提携サイト等より掲載されている物件情報につきましては、不動産会社詳細情報にリンクされていないものがあります。
- 物件に関するお問合せは、物件詳細ページの「情報提供会社」に表示されている不動産会社へ直接お願いいたします。
- 間取図は、現況を優先させていただきます。
- 映像は物件の一部を撮影したものです。物件の契約にあたっての最終判断はご自身の判断に基づいて行ってください。
- 仲介手数料について

アットホームは物件情報の適正化に努めております。
内容に誤りがある場合にはこちらへご連絡ください。