滋賀県長浜市八幡中山町(長浜駅)の貸店舗:物件詳細
交通 所在地 |
駅徒歩 |
賃料 管理費等 |
敷金/保証金 礼金 |
使用部分面積 坪数/坪単価 |
物件種目 築年月 |
JR北陸本線/長浜
滋賀県長浜市八幡中山町
|
2700m
|
30.25万円
36,300円
|
なし / 6ヶ月
なし
|
100.09m²
30.27坪/0.9992万円
|
貸店舗・事務所
1994年1月(築31年10ヶ月)
|
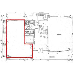
間取図
参考
|
|
その他の画像
|
交通 | JR北陸本線 長浜駅 徒歩2700m |
所在地 |
滋賀県長浜市八幡中山町
|
物件種目 |
貸店舗・事務所 |
賃料 |
30.25万円 |
管理費等 |
36,300円 |
敷金 / 保証金 |
なし / 6ヶ月 |
礼金 |
なし |
敷引 |
- |
坪単価 |
0.9992万円 |
保証金償却 |
- |
権利金 |
- |
造作譲渡 |
- |
その他一時金 |
- |
維持費等 |
- |
保険等 |
要 借家賠償責任付き家財 |
使用部分面積 |
100.09m² |
坪数 |
30.27坪 |
築年月 |
1994年1月(築31年10ヶ月)
|
階建 / 階 |
6階建 / 1階 |
駐車場 |
有 無料 ※大型共用駐車場有り(スタッフは指定場所)。 |
バイク置き場 |
- |
駐輪場 |
- |
土地面積 |
- |
接道状況 |
東 8.5m
|
用途地域 |
商業地域 |
間取り |
- |
建物構造 |
鉄骨造 |
アピールポイント |
*使用面積約30坪のテナントです(角地・一部前面ガラス張り仕様)!
*業種ご相談、詳細は当店まで是非お問い合わせ下さい。
当店にて資料請求も可・ご案内致します。 |
建物名・部屋番号 |
|
リフォーム履歴 |
- |
リノベーション履歴 |
- |
特記事項 |
居抜き |
備考 |
賃貸保証等:加入要(初回時 賃料(共益費等含む)1ヶ月分・更新時(1回/年)賃料(共益費等含む)10% ・毎月 収納代行手数料(税込)330円)。)
管理形態/管理員の勤務形態:-/-
*基本、現状有姿渡しの原状回復。
*改装造作及び看板取付けの場合、貸主の事前承諾が必要。また、事前の図面等の提出も必要。
*出入口2箇所あります。
※造作工事業者のご相談有り。
|
エネルギー消費性能 |
- |
断熱性能 |
- |
目安光熱費 |
- |
バス・トイレ |
- |
キッチン |
- |
設備・サービス |
看板取付スペースあり |
その他 |
- |
契約期間 |
10年 |
条件等 |
- |
引渡可能時期 |
相談 |
現況 |
空 |
更新料 |
- |
物件番号 |
6988079850 |
情報公開日 |
2025年10月20日 |
次回更新予定日 |
2025年11月4日 |
ケータイ用バーコード |
- スマートフォンでこの物件を見る
- スマートフォンからもこの物件をご覧になれます。
|
※「-」と表示されている項目については、情報提供会社にご確認ください。
ここから簡単にお問い合わせをすることができます。
(SSLでの暗号化での送信を希望されるお客さまは
こちら
よりお問い合わせください)
お問い合わせを行う前に
「個人情報の取り扱いについて」を必ずお読みください。
「個人情報の取り扱いについて」に同意いただいた場合は「上記にご同意の上 確認画面へ進む」のボタンをクリックしてください。
個人情報の取り扱いについて
皆さまが送付された個人情報はアットホーム(株)のサーバを経由し、お問い合わせ先の不動産会社にメールまたはFAXにて転送されるためアットホーム(株)にも保管されます。アットホーム(株)で保管された個人情報の取り扱いについては、【こちら】をご覧ください。
また、本画面でご記入いただいた個人情報は、お問い合わせ先の不動産会社でも保管します。 お問い合わせ先の不動産会社が保管する個人情報の取り扱いについては、不動産会社に直接お問い合わせください。
滋賀県知事免許(1)第3964号 |
---|
- 交通:
- JR東海道本線/南彦根駅 徒歩30分 【バス】1分 湖国バス(文化プラザ口) 停歩2分
- 滋賀県彦根市戸賀町95-18 TCビル1F
- TEL:
- 0749-21-0515
- FAX:
- 0749-21-0530
- 所属団体:
- (公社)滋賀県宅地建物取引業協会会員(公社)近畿地区不動産公正取引協議会加盟
取引態様:仲介  - 50109584
|
- スマートフォンで
この不動産会社を見る

|
- 提携サイト等より掲載されている物件情報につきましては、不動産会社詳細情報にリンクされていないものがあります。
- 物件に関するお問合せは、物件詳細ページの「情報提供会社」に表示されている不動産会社へ直接お願いいたします。
- 間取図は、現況を優先させていただきます。
- 映像は物件の一部を撮影したものです。物件の契約にあたっての最終判断はご自身の判断に基づいて行ってください。
- 仲介手数料について

アットホームは物件情報の適正化に努めております。
内容に誤りがある場合にはこちらへご連絡ください。