京都府京都市左京区北白川大堂町(茶山・京都芸術大学駅)の貸店舗:物件詳細
交通 所在地 |
駅徒歩 |
賃料 管理費等 |
敷金/保証金 礼金 |
使用部分面積 坪数/坪単価 |
物件種目 築年月 |
|
叡山電鉄叡山本線/茶山・京都芸術大学
京都府京都市左京区北白川大堂町
|
14分
|
22万円
なし
|
50万円 / なし
なし
|
154.11m²
46.61坪/0.472万円
|
貸店舗・事務所(一括)
1985年3月(築41年)
|
|
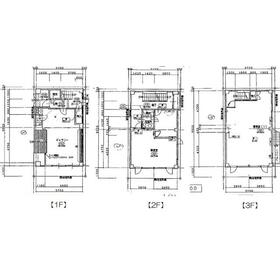
間取図
|
外観
|
その他の画像
|
| 交通 | 叡山電鉄叡山本線 茶山・京都芸術大学駅 徒歩14分 |
|---|
| その他の交通 | 叡山電鉄叡山本線 元田中駅 徒歩15分 叡山電鉄叡山本線 出町柳駅 徒歩24分 |
| 所在地 |
京都府京都市左京区北白川大堂町
|
| 物件種目 |
貸店舗・事務所(一括) |
| 賃料 |
22万円 |
管理費等 |
なし |
| 敷金 / 保証金 |
50万円 / なし |
礼金 |
なし |
| 敷引 |
- |
坪単価 |
0.472万円 |
| 保証金償却 |
- |
権利金 |
- |
| 造作譲渡 |
- |
その他一時金 |
- |
| 維持費等 |
- |
保険等 |
要 損害 |
| 使用部分面積 |
154.11m² |
坪数 |
46.61坪 |
| 築年月 |
1985年3月(築41年)
|
階建 / 階 |
3階建 |
| 駐車場 |
- |
バイク置き場 |
- |
| 駐輪場 |
- |
土地面積 |
- |
| 接道状況 |
-
|
用途地域 |
- |
| 間取り |
- |
建物構造 |
ALC |
| アピールポイント |
■長栄管理物件■ 【条件変更!家賃・敷金を減額いたしました。さらに条件交渉をご希望の方も 一度ご連絡ください】
北白川別当交差点近く!白川通に面しており 御蔭通(みかげどおり )を上がってすぐにあります。室内は事務所居抜きとなっており、店舗や事務所などにご利用可能です。屋上に設置しております物置もご利用いただけますよ!
入居時期、出店可能業種などもお気軽にお問い合わせください。【居抜き:現状渡し】
事前のご予約で内見も可能☆是非ご予約くださいませ。 |
| 建物名・部屋番号 |
北白川大堂町店舗 1-3F |
| リフォーム履歴 |
- |
| リノベーション履歴 |
- |
| 特記事項 |
居抜き |
| 備考 |
賃貸保証等:加入要(確認要)
管理形態/管理員の勤務形態:-/-
【条件変更★家賃・敷金を減額いたしました】 白川通り面す 路面店舗の募集☆1-3階の1棟貸です!事前に業種相談ください
■3年契約、更新料1か月■保証会社、火災保険加入必須■事務所 居抜き(現状渡し)■室内設備は残置物扱いのため性能保証無■出店業種事前相談要■略図につき物件は現況を優先いたします
【敷引き変動利率】 1年未満100% 1~3年未満90% 3~6年未満60% 6~9年未満30% 9年以上10%
|
| エネルギー消費性能 |
- |
| 断熱性能 |
- |
| 目安光熱費 |
- |
| バス・トイレ |
- |
| キッチン |
- |
| 設備・サービス |
- |
| その他 |
- |
| 契約期間 |
3年 |
条件等 |
- |
| 引渡可能時期 |
相談 |
現況 |
空 |
| 仲介手数料 |
1ヶ月 |
|
|
| 更新料 |
新賃料 1ヶ月 |
物件番号 |
6988089977 |
| 情報公開日 |
2025年10月21日 |
次回更新予定日 |
2026年2月10日 |
| ケータイ用バーコード |
- スマートフォンでこの物件を見る
- スマートフォンからもこの物件をご覧になれます。
|
※「-」と表示されている項目については、情報提供会社にご確認ください。
| 周辺施設 |
ファミリーマート白川通別当町店 |
| 距離 |
46m |
ここから簡単にお問い合わせをすることができます。
(SSLでの暗号化での送信を希望されるお客さまは
こちら
よりお問い合わせください)
お問い合わせを行う前に
「個人情報の取り扱いについて」を必ずお読みください。
「個人情報の取り扱いについて」に同意いただいた場合は「上記にご同意の上 確認画面へ進む」のボタンをクリックしてください。
個人情報の取り扱いについて
皆さまが送付された個人情報はアットホーム(株)のサーバを経由し、お問い合わせ先の不動産会社にメールまたはFAXにて転送されるためアットホーム(株)にも保管されます。アットホーム(株)で保管された個人情報の取り扱いについては、【こちら】をご覧ください。
また、本画面でご記入いただいた個人情報は、お問い合わせ先の不動産会社でも保管します。 お問い合わせ先の不動産会社が保管する個人情報の取り扱いについては、不動産会社に直接お問い合わせください。
国土交通大臣免許(8)第5066号 |
|---|
- 交通:
- 京阪本線/伏見桃山駅 徒歩3分
- 京都府京都市伏見区両替町3丁目336 コーポラス桃山 1F
- TEL:
- 075-602-2350
- FAX:
- 075-602-2120
- 所属団体:
- (公社)京都府宅地建物取引業協会会員(公社)近畿地区不動産公正取引協議会加盟
取引態様:仲介  - 50025232
|
- スマートフォンで
この不動産会社を見る

|
- 提携サイト等より掲載されている物件情報につきましては、不動産会社詳細情報にリンクされていないものがあります。
- 物件に関するお問合せは、物件詳細ページの「情報提供会社」に表示されている不動産会社へ直接お願いいたします。
- 間取図は、現況を優先させていただきます。
- 映像は物件の一部を撮影したものです。物件の契約にあたっての最終判断はご自身の判断に基づいて行ってください。
- 仲介手数料について

アットホームは物件情報の適正化に努めております。
内容に誤りがある場合にはこちらへご連絡ください。