神奈川県川崎市高津区久本1丁目(溝の口駅)の貸店舗:物件詳細
交通 所在地 |
駅徒歩 |
賃料 管理費等 |
敷金/保証金 礼金 |
使用部分面積 坪数/坪単価 |
物件種目 築年月 |
|
東急大井町線/溝の口
神奈川県川崎市高津区久本1丁目
|
5分
|
48.9984万円
11,000円
|
3ヶ月 / なし
1ヶ月
|
92.02m²
27.83坪/1.7603万円
|
貸店舗・事務所
2026年4月(新築)
|
|
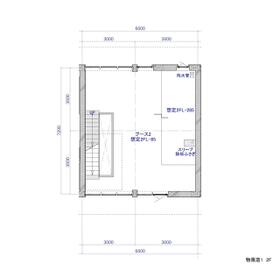
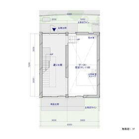
間取図
|
|
その他の画像
|
| 交通 | 東急大井町線 溝の口駅 徒歩5分 |
|---|
| その他の交通 | 東急田園都市線 溝の口駅 徒歩5分 JR南武線 武蔵溝ノ口駅 徒歩5分 |
| 所在地 |
神奈川県川崎市高津区久本1丁目
|
| 物件種目 |
貸店舗・事務所 |
| 賃料 |
48.9984万円 |
管理費等 |
11,000円 |
| 敷金 / 保証金 |
3ヶ月 / なし |
礼金 |
1ヶ月 |
| 敷引 |
- |
坪単価 |
1.7603万円 |
| 保証金償却 |
- |
権利金 |
- |
| 造作譲渡 |
- |
その他一時金 |
- |
| 維持費等 |
- |
保険等 |
要 |
| 使用部分面積 |
92.02m² |
坪数 |
27.83坪 |
| 築年月 |
2026年4月(新築)
|
階建 / 階 |
2階建 / 1階~2階部分 |
| 駐車場 |
- |
バイク置き場 |
- |
| 駐輪場 |
- |
土地面積 |
- |
| 接道状況 |
-
|
用途地域 |
- |
| 間取り |
- |
建物構造 |
RC |
| アピールポイント |
本物件は、マルイファミリーをはじめとする商業施設や、西口商店街の賑わいとは対照的に、緑豊かな環境が今も残る“南口・久本山エリア”に位置しています。溝の口駅からほど近い利便性を備えながら、自然と共存する立地です。
区役所と洗足学園を結ぶ前面道路は、幅広い歩道が整備され、駅前の喧騒とは一線を画す落ち着いた雰囲気が広がっています。至近距離に大規模開発計画も進行中、多様な特色をもつこの街に新たなスポットが加わることで街の魅力がさらに高まっていくことが期待されます。
森に溶け込む曲線状の建物を設計したのは、「人々にとって心地よい環境とは何か」を探求し続け、建築と緑が親密に寄り添う空間をつくる古谷デザイン建築設計事務所。
緑に包まれた敷地と屋上ガーデンは緑の癒しと空の開放感によって入居テナントのスタッフの方々やご来場いただくお客様にウェルビーイングなひとときをもたらします。 |
| 建物名・部屋番号 |
MAZAKA |
| リフォーム履歴 |
- |
| リノベーション履歴 |
- |
| 特記事項 |
- |
| 備考 |
賃貸保証等:加入要(4CSもしくはJリース 初回100%)
管理形態/管理員の勤務形態:-/-
|
| エネルギー消費性能 |
- |
| 断熱性能 |
- |
| 目安光熱費 |
- |
| バス・トイレ |
- |
| キッチン |
- |
| 設備・サービス |
- |
| その他 |
- |
| 契約期間 |
2年 |
条件等 |
定期借家 |
| 引渡可能時期 |
相談 |
現況 |
未完成 |
| 仲介手数料 |
1ヶ月 |
|
|
| 更新料 |
新賃料 1ヶ月 |
物件番号 |
6988118463 |
| 情報公開日 |
2025年10月23日 |
次回更新予定日 |
2025年11月7日 |
| ケータイ用バーコード |
- スマートフォンでこの物件を見る
- スマートフォンからもこの物件をご覧になれます。
|
※「-」と表示されている項目については、情報提供会社にご確認ください。
ここから簡単にお問い合わせをすることができます。
(SSLでの暗号化での送信を希望されるお客さまは
こちら
よりお問い合わせください)
お問い合わせを行う前に
「個人情報の取り扱いについて」を必ずお読みください。
「個人情報の取り扱いについて」に同意いただいた場合は「上記にご同意の上 確認画面へ進む」のボタンをクリックしてください。
個人情報の取り扱いについて
皆さまが送付された個人情報はアットホーム(株)のサーバを経由し、お問い合わせ先の不動産会社にメールまたはFAXにて転送されるためアットホーム(株)にも保管されます。アットホーム(株)で保管された個人情報の取り扱いについては、【こちら】をご覧ください。
また、本画面でご記入いただいた個人情報は、お問い合わせ先の不動産会社でも保管します。 お問い合わせ先の不動産会社が保管する個人情報の取り扱いについては、不動産会社に直接お問い合わせください。
神奈川県知事免許(1)第31378号 |
|---|
- 交通:
- 東急田園都市線/溝の口駅 徒歩5分
- 神奈川県川崎市高津区久本3丁目1-14 エム・パークビル3階
- TEL:
- 044-400-2378
- 所属団体:
- (公社)神奈川県宅地建物取引業協会会員(公社)首都圏不動産公正取引協議会加盟
取引態様:仲介  - 00271068
|
- スマートフォンで
この不動産会社を見る

|
- 提携サイト等より掲載されている物件情報につきましては、不動産会社詳細情報にリンクされていないものがあります。
- 物件に関するお問合せは、物件詳細ページの「情報提供会社」に表示されている不動産会社へ直接お願いいたします。
- 間取図は、現況を優先させていただきます。
- 映像は物件の一部を撮影したものです。物件の契約にあたっての最終判断はご自身の判断に基づいて行ってください。
- 仲介手数料について

アットホームは物件情報の適正化に努めております。
内容に誤りがある場合にはこちらへご連絡ください。