神奈川県横浜市中区伊勢佐木町5丁目(阪東橋駅)の貸店舗:物件詳細
交通 所在地 |
駅徒歩 |
賃料 管理費等 |
敷金/保証金 礼金 |
使用部分面積 坪数/坪単価 |
物件種目 築年月 |
|
ブルーライン/阪東橋
神奈川県横浜市中区伊勢佐木町5丁目
|
5分
|
17万円
なし
|
なし / 6ヶ月
なし
|
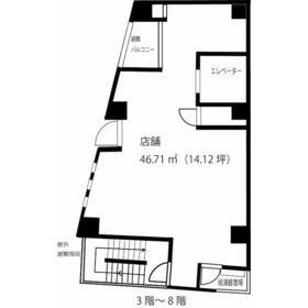
46.71m²
14.12坪/1.2032万円
|
貸店舗・事務所
2022年12月(築3年)
|
|
間取図
|
|
<
その他の画像
>
|
| 交通 | ブルーライン 阪東橋駅 徒歩5分 |
|---|
| その他の交通 | 京急本線 黄金町駅 徒歩5分 ブルーライン 伊勢佐木長者町駅 徒歩7分 |
| 所在地 |
神奈川県横浜市中区伊勢佐木町5丁目
|
| 物件種目 |
貸店舗・事務所 |
| 賃料 |
17万円 |
管理費等 |
なし |
| 敷金 / 保証金 |
なし / 6ヶ月 |
礼金 |
なし |
| 敷引 |
- |
坪単価 |
1.2032万円 |
| 保証金償却 |
- |
権利金 |
- |
| 造作譲渡 |
- |
その他一時金 |
- |
| 維持費等 |
商栄会費:2,100円/月 |
保険等 |
要 |
| 使用部分面積 |
46.71m² |
坪数 |
14.12坪 |
| 築年月 |
2022年12月(築3年)
|
階建 / 階 |
8階建 / 5階 |
| 駐車場 |
無 |
バイク置き場 |
- |
| 駐輪場 |
- |
土地面積 |
- |
| 接道状況 |
-
|
用途地域 |
- |
| 間取り |
ワンルーム |
建物構造 |
RC |
| アピールポイント |
築浅物件♪諸条件柔軟に対応できます♪3駅利用可能♪
☆店舗探しはブルーハウスにお任せください☆ |
| 建物名・部屋番号 |
KGR×BLD伊勢佐木町 |
| リフォーム履歴 |
- |
| リノベーション履歴 |
- |
| 特記事項 |
スケルトン、土曜日利用可、土日・祝日利用可、角部屋、耐震構造(新耐震基準)、天井高2.5M以上、24時間換気システム |
| 備考 |
賃貸保証等:加入要(初回保証料:総賃料100%/更新料:総賃料10%※プランにより異なります。)
管理形態/管理員の勤務形態:-/-
5~8階同条件で募集中!
※商栄会費:月額2,100円(年払い)
※諸条件柔軟に対応
|
| エネルギー消費性能 |
- |
| 断熱性能 |
- |
| 目安光熱費 |
- |
| バス・トイレ |
- |
| キッチン |
- |
| 設備・サービス |
- |
| その他 |
エレベーター |
| 契約期間 |
3年 |
条件等 |
- |
| 引渡可能時期 |
相談 |
現況 |
空 |
| 更新料 |
新賃料 1.1ヶ月 |
物件番号 |
6988313967 |
| 情報公開日 |
2025年11月8日 |
次回更新予定日 |
2025年11月22日 |
| ケータイ用バーコード |
- スマートフォンでこの物件を見る
- スマートフォンからもこの物件をご覧になれます。
|
※「-」と表示されている項目については、情報提供会社にご確認ください。
| 周辺施設 |
まいばすけっと末吉町2丁目店 |
| 距離 |
121m |
写真を見る |
| 周辺施設 |
サミットストア横浜曙町店 |
| 距離 |
152m |
写真を見る |
| 周辺施設 |
業務スーパー伊勢佐木モール店 |
| 距離 |
187m |
写真を見る |
| 周辺施設 |
ファミリーマート横浜伊勢佐木町店 |
| 距離 |
57m |
写真を見る |
| 周辺施設 |
セブンイレブン横浜弥生町3丁目店 |
| 距離 |
239m |
写真を見る |
| 周辺施設 |
ミニストップ黄金橋店 |
| 距離 |
246m |
写真を見る |
| 周辺施設 |
やよい軒伊勢佐木町店 |
| 距離 |
57m |
写真を見る |
| 周辺施設 |
キッチンオリジン伊勢佐木町店 |
| 距離 |
221m |
写真を見る |
ここから簡単にお問い合わせをすることができます。
(SSLでの暗号化での送信を希望されるお客さまは
こちら
よりお問い合わせください)
お問い合わせを行う前に
「個人情報の取り扱いについて」を必ずお読みください。
「個人情報の取り扱いについて」に同意いただいた場合は「上記にご同意の上 確認画面へ進む」のボタンをクリックしてください。
個人情報の取り扱いについて
皆さまが送付された個人情報はアットホーム(株)のサーバを経由し、お問い合わせ先の不動産会社にメールまたはFAXにて転送されるためアットホーム(株)にも保管されます。アットホーム(株)で保管された個人情報の取り扱いについては、【こちら】をご覧ください。
また、本画面でご記入いただいた個人情報は、お問い合わせ先の不動産会社でも保管します。 お問い合わせ先の不動産会社が保管する個人情報の取り扱いについては、不動産会社に直接お問い合わせください。
神奈川県知事免許(3)第27930号 |
|---|
- 交通:
- 横浜高速鉄道みなとみらい線/元町・中華街駅 徒歩2分
- 神奈川県横浜市中区山下町108 小黒ビル305
- TEL:
- 045-663-7115
- FAX:
- 045-663-7116
- 所属団体:
- (公社)全日本不動産協会会員(公社)首都圏不動産公正取引協議会加盟
取引態様:仲介  - 00105240
|
- スマートフォンで
この不動産会社を見る

|
- 提携サイト等より掲載されている物件情報につきましては、不動産会社詳細情報にリンクされていないものがあります。
- 物件に関するお問合せは、物件詳細ページの「情報提供会社」に表示されている不動産会社へ直接お願いいたします。
- 間取図は、現況を優先させていただきます。
- 映像は物件の一部を撮影したものです。物件の契約にあたっての最終判断はご自身の判断に基づいて行ってください。
- 仲介手数料について

アットホームは物件情報の適正化に努めております。
内容に誤りがある場合にはこちらへご連絡ください。