東京都世田谷区下馬6丁目(学芸大学駅)の貸店舗:物件詳細
交通 所在地 |
駅徒歩 |
賃料 管理費等 |
敷金/保証金 礼金 |
使用部分面積 坪数/坪単価 |
物件種目 築年月 |
|
東急東横線/学芸大学
東京都世田谷区下馬6丁目
|
6分
|
32.45万円
33,000円
|
なし / 4ヶ月
1ヶ月
|
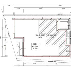
41.37m²
12.51坪/2.5931万円
|
貸店舗
2025年11月(新築)
|
|
間取図
|
|
その他の画像
|
| 交通 | 東急東横線 学芸大学駅 徒歩6分 |
|---|
| その他の交通 | 東急東横線 都立大学駅 徒歩20分 東急田園都市線 駒沢大学駅 徒歩25分 |
| 所在地 |
東京都世田谷区下馬6丁目
|
| 物件種目 |
貸店舗 |
| 賃料 |
32.45万円 |
管理費等 |
33,000円 |
| 敷金 / 保証金 |
なし / 4ヶ月 |
礼金 |
1ヶ月 |
| 敷引 |
- |
坪単価 |
2.5931万円 |
| 保証金償却 |
- |
権利金 |
- |
| 造作譲渡 |
- |
その他一時金 |
契約事務手数料:3,300円 |
| 維持費等 |
- |
保険等 |
要 |
| 使用部分面積 |
41.37m² |
坪数 |
12.51坪 |
| 築年月 |
2025年11月(新築)
|
階建 / 階 |
5階建 / 1階 |
| 駐車場 |
- |
バイク置き場 |
- |
| 駐輪場 |
- |
土地面積 |
- |
| 接道状況 |
-
|
用途地域 |
近隣商業 |
| 間取り |
- |
建物構造 |
RC |
| 建物名・部屋番号 |
|
| リフォーム履歴 |
- |
| リノベーション履歴 |
- |
| 特記事項 |
スケルトン、土曜日利用可、土日・祝日利用可、飲食店可 |
| 備考 |
管理形態/管理員の勤務形態:-/-
主要採光面:北向き
学芸大学駅から徒歩6分のバス通りに面したテナントです。生活動線に溶け込む1階テナントのため、事務所は勿論、カフェやサロン、教室や物販などにオススメです。業種等はご相談ください。
|
| エネルギー消費性能 |
- |
| 断熱性能 |
- |
| 目安光熱費 |
- |
| バス・トイレ |
- |
| キッチン |
- |
| 設備・サービス |
排水設備あり
都市ガス |
| その他 |
- |
| 契約期間 |
3年 |
条件等 |
定期借家 |
| 引渡可能時期 |
即時 |
現況 |
完成済 |
| 仲介手数料 |
不要 |
|
|
| 更新料 |
新賃料 1ヶ月 |
物件番号 |
6988401149 |
| 情報公開日 |
2025年11月14日 |
次回更新予定日 |
2025年12月15日 |
| ケータイ用バーコード |
- スマートフォンでこの物件を見る
- スマートフォンからもこの物件をご覧になれます。
|
※「-」と表示されている項目については、情報提供会社にご確認ください。
| 周辺施設 |
まいばすけっと学大駒沢通り店 |
| 距離 |
128m |
写真を見る |
| 周辺施設 |
ファミリーマート下馬駒沢通り店 |
| 距離 |
72m |
写真を見る |
| 周辺施設 |
私立日本大学スポーツ科学部三軒茶屋キャンパス |
| 距離 |
1393m |
| 周辺施設 |
国立東京学芸大学教育学部附属高校 |
| 距離 |
930m |
| 周辺施設 |
医療法人社団菫会目黒病院 |
| 距離 |
1149m |
ここから簡単にお問い合わせをすることができます。
(SSLでの暗号化での送信を希望されるお客さまは
こちら
よりお問い合わせください)
お問い合わせを行う前に
「個人情報の取り扱いについて」を必ずお読みください。
「個人情報の取り扱いについて」に同意いただいた場合は「上記にご同意の上 確認画面へ進む」のボタンをクリックしてください。
個人情報の取り扱いについて
皆さまが送付された個人情報はアットホーム(株)のサーバを経由し、お問い合わせ先の不動産会社にメールまたはFAXにて転送されるためアットホーム(株)にも保管されます。アットホーム(株)で保管された個人情報の取り扱いについては、【こちら】をご覧ください。
また、本画面でご記入いただいた個人情報は、お問い合わせ先の不動産会社でも保管します。 お問い合わせ先の不動産会社が保管する個人情報の取り扱いについては、不動産会社に直接お問い合わせください。
東京都知事免許(5)第84691号 |
|---|
- 交通:
- 東急東横線/中目黒駅 徒歩6分
- 東京都目黒区青葉台1丁目16-4 ME Bldg.
- TEL:
- 03-4500-9282
- FAX:
- 03-3780-3968
- 所属団体:
- (公社)全日本不動産協会会員(公社)首都圏不動産公正取引協議会加盟
取引態様:貸主  - 00017839
|
- スマートフォンで
この不動産会社を見る

|
- 提携サイト等より掲載されている物件情報につきましては、不動産会社詳細情報にリンクされていないものがあります。
- 物件に関するお問合せは、物件詳細ページの「情報提供会社」に表示されている不動産会社へ直接お願いいたします。
- 間取図は、現況を優先させていただきます。
- 映像は物件の一部を撮影したものです。物件の契約にあたっての最終判断はご自身の判断に基づいて行ってください。
- 仲介手数料について

アットホームは物件情報の適正化に努めております。
内容に誤りがある場合にはこちらへご連絡ください。