群馬県桐生市相生町2丁目(天王宿駅)の貸店舗:物件詳細
交通 所在地 |
駅徒歩 |
賃料 管理費等 |
敷金/保証金 礼金 |
使用部分面積 坪数/坪単価 |
物件種目 築年月 |
|
上毛電鉄/天王宿
群馬県桐生市相生町2丁目
|
3分
|
57.75万円
-
|
3ヶ月 / なし
なし
|
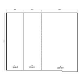
360.11m²
108.93坪/0.5302万円
|
貸店舗(建物一括)
1988年1月(築38年2ヶ月)
|
| 交通 | 上毛電鉄 天王宿駅 徒歩3分 |
|---|
| その他の交通 | 東武桐生線 相老駅 徒歩10分 わたらせ渓谷鉄道 相老駅 徒歩9分 |
| 所在地 |
群馬県桐生市相生町2丁目
|
| 物件種目 |
貸店舗(建物一括) |
| 賃料 |
57.75万円 |
管理費等 |
- |
| 敷金 / 保証金 |
3ヶ月 / なし |
礼金 |
なし |
| 敷引 |
- |
坪単価 |
0.5302万円 |
| 保証金償却 |
- |
権利金 |
- |
| 造作譲渡 |
- |
その他一時金 |
- |
| 維持費等 |
- |
保険等 |
- |
| 使用部分面積 |
360.11m² |
坪数 |
108.93坪 |
| 築年月 |
1988年1月(築38年2ヶ月)
|
階建 / 階 |
1階建 / 1階 |
| 駐車場 |
有 無料 敷地内テナント共用部使用可 |
バイク置き場 |
- |
| 駐輪場 |
無 |
土地面積 |
- |
| 接道状況 |
-
|
用途地域 |
- |
| 間取り |
- |
建物構造 |
鉄骨造 |
| 建物名・部屋番号 |
|
| リフォーム履歴 |
- |
| リノベーション履歴 |
- |
| 特記事項 |
土曜日利用可、土日・祝日利用可、駐車場3台分以上 |
| 備考 |
管理形態/管理員の勤務形態:-/-
|
| エネルギー消費性能 |
- |
| 断熱性能 |
- |
| 目安光熱費 |
- |
| バス・トイレ |
トイレ |
| キッチン |
- |
| 設備・サービス |
看板取付スペースあり、水道メーター口径13mm |
| その他 |
- |
| 契約期間 |
2年 |
条件等 |
- |
| 引渡可能時期 |
2026年2月下旬予定 |
現況 |
空 |
| 仲介手数料 |
1ヶ月 |
|
|
| 更新料 |
新賃料 1ヶ月 |
物件番号 |
6988442375 |
| 情報公開日 |
2025年11月19日 |
次回更新予定日 |
2026年2月2日 |
| ケータイ用バーコード |
- スマートフォンでこの物件を見る
- スマートフォンからもこの物件をご覧になれます。
|
※「-」と表示されている項目については、情報提供会社にご確認ください。
ここから簡単にお問い合わせをすることができます。
(SSLでの暗号化での送信を希望されるお客さまは
こちら
よりお問い合わせください)
お問い合わせを行う前に
「個人情報の取り扱いについて」を必ずお読みください。
「個人情報の取り扱いについて」に同意いただいた場合は「上記にご同意の上 確認画面へ進む」のボタンをクリックしてください。
個人情報の取り扱いについて
皆さまが送付された個人情報はアットホーム(株)のサーバを経由し、お問い合わせ先の不動産会社にメールまたはFAXにて転送されるためアットホーム(株)にも保管されます。アットホーム(株)で保管された個人情報の取り扱いについては、【こちら】をご覧ください。
また、本画面でご記入いただいた個人情報は、お問い合わせ先の不動産会社でも保管します。 お問い合わせ先の不動産会社が保管する個人情報の取り扱いについては、不動産会社に直接お問い合わせください。
群馬県知事免許(9)第3917号 |
|---|
- 交通:
- 東武桐生線/相老駅 徒歩5分
- 群馬県桐生市相生町2丁目885-5
- TEL:
- 0277-54-3388
- FAX:
- 0277-54-3389
- 所属団体:
- (一社)群馬県宅地建物取引業協会会員(公社)首都圏不動産公正取引協議会加盟
取引態様:代理  - 00018077
|
- スマートフォンで
この不動産会社を見る

|
- 提携サイト等より掲載されている物件情報につきましては、不動産会社詳細情報にリンクされていないものがあります。
- 物件に関するお問合せは、物件詳細ページの「情報提供会社」に表示されている不動産会社へ直接お願いいたします。
- 間取図は、現況を優先させていただきます。
- 映像は物件の一部を撮影したものです。物件の契約にあたっての最終判断はご自身の判断に基づいて行ってください。
- 仲介手数料について

アットホームは物件情報の適正化に努めております。
内容に誤りがある場合にはこちらへご連絡ください。