神奈川県横須賀市追浜町2丁目(追浜駅)の貸店舗:物件詳細
交通 所在地 |
駅徒歩 |
賃料 管理費等 |
敷金/保証金 礼金 |
使用部分面積 坪数/坪単価 |
物件種目 築年月 |
|
京急本線/追浜
神奈川県横須賀市追浜町2丁目
|
3分
|
42.9万円
22,000円
|
6ヶ月 / なし
1ヶ月
|
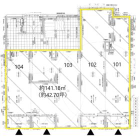
141.18m²
42.70坪/1.0046万円
|
貸店舗・事務所
2025年2月(築1年4ヶ月・未入居)
|
|
間取図
|
外観
|
<
その他の画像
>
|
| 交通 | 京急本線 追浜駅 徒歩3分 |
|---|
| その他の交通 | 京急本線 京急田浦駅 徒歩21分 京急逗子線 六浦駅 徒歩27分 |
| 所在地 |
神奈川県横須賀市追浜町2丁目
|
| 物件種目 |
貸店舗・事務所 |
| 賃料 |
42.9万円 |
管理費等 |
22,000円 |
| 敷金 / 保証金 |
6ヶ月 / なし |
礼金 |
1ヶ月 |
| 敷引 |
- |
坪単価 |
1.0046万円 |
| 保証金償却 |
- |
権利金 |
- |
| 造作譲渡 |
- |
その他一時金 |
- |
| 維持費等 |
- |
保険等 |
要 |
| 使用部分面積 |
141.18m² |
坪数 |
42.70坪 |
| 築年月 |
2025年2月(築1年4ヶ月・未入居)
|
階建 / 階 |
3階建 / 1階 |
| 駐車場 |
無 |
バイク置き場 |
無 |
| 駐輪場 |
無 |
土地面積 |
- |
| 接道状況 |
-
|
用途地域 |
近隣商業 |
| 間取り |
- |
建物構造 |
木造 |
| アピールポイント |
※ガス配管は102号室・103号室部分のみ。※商店街加入あり。(要確認)※都市計画道路あり。(要確認)※専有面積はシャッターから
内側部分の寸法です。※分割応相談 ※物販店舗・サービス店舗にお薦め! |
| 建物名・部屋番号 |
ションデロチェス追浜 1 |
| リフォーム履歴 |
- |
| リノベーション履歴 |
- |
| 特記事項 |
スケルトン、土日・祝日利用可、1フロア1テナント、国道沿いに面する |
| 備考 |
賃貸保証等:加入要(初回保証委託料賃料合計の100%、継続保証委託料賃料合計の10%(下限20,000円)/年)
管理形態/管理員の勤務形態:-/-
※ガス配管は102号室・103号室部分のみ。※商店街加入あり。(要確認)※専有面積はシャッターから内側部分の寸法です。※分割応相談 ※都市計画道路あり。(要確認)横須賀都市計画道路事業3・3・7横須賀横浜線について
追浜南町入口交差点までは事業承認されて動いているが、その先(今回の所在地)については事業化の見込みはたっていないとの回答でした。いつ動くかは回答出来ないとのことでした。(2026.1.29横浜国道事務所へヒアリング)
※借主側でも必ずご確認ください。(横浜国道事務所045-287-3001)
|
| エネルギー消費性能 |
- |
| 断熱性能 |
- |
| 目安光熱費 |
- |
| バス・トイレ |
- |
| キッチン |
- |
| 設備・サービス |
シャッター付き
シャッター雨戸、都市ガス |
| その他 |
- |
| 契約期間 |
3年 |
条件等 |
- |
| 引渡可能時期 |
即時 |
現況 |
空 |
| 仲介手数料 |
1ヶ月 |
|
|
| 更新料 |
新賃料 1ヶ月 |
物件番号 |
6988444615 |
| 情報公開日 |
2025年11月25日 |
次回更新予定日 |
2026年5月13日 |
| ケータイ用バーコード |
- スマートフォンでこの物件を見る
- スマートフォンからもこの物件をご覧になれます。
|
※「-」と表示されている項目については、情報提供会社にご確認ください。
| 周辺施設 |
ローソンストア100追浜駅前店 |
| 距離 |
57m |
| 周辺施設 |
セブンイレブン横須賀追浜町店 |
| 距離 |
143m |
| 周辺施設 |
社会福祉法人湘南福祉協会総合病院湘南病院 |
| 距離 |
437m |
ここから簡単にお問い合わせをすることができます。
(SSLでの暗号化での送信を希望されるお客さまは
こちら
よりお問い合わせください)
お問い合わせを行う前に
「個人情報の取り扱いについて」を必ずお読みください。
「個人情報の取り扱いについて」に同意いただいた場合は「上記にご同意の上 確認画面へ進む」のボタンをクリックしてください。
個人情報の取り扱いについて
皆さまが送付された個人情報はアットホーム(株)のサーバを経由し、お問い合わせ先の不動産会社にメールまたはFAXにて転送されるためアットホーム(株)にも保管されます。アットホーム(株)で保管された個人情報の取り扱いについては、【こちら】をご覧ください。
また、本画面でご記入いただいた個人情報は、お問い合わせ先の不動産会社でも保管します。 お問い合わせ先の不動産会社が保管する個人情報の取り扱いについては、不動産会社に直接お問い合わせください。
国土交通大臣免許(7)第5338号 |
|---|
- 交通:
- 東京メトロ銀座線/赤坂見附駅 徒歩2分
- 東京都港区元赤坂1丁目5-5 元赤坂SFビル3階
- TEL:
- 03-5414-0650
- FAX:
- 03-5414-0659
- 所属団体:
- (一社)不動産流通経営協会会員(公社)首都圏不動産公正取引協議会加盟
取引態様:仲介  - 00160828
|
- スマートフォンで
この不動産会社を見る

|
- 提携サイト等より掲載されている物件情報につきましては、不動産会社詳細情報にリンクされていないものがあります。
- 物件に関するお問合せは、物件詳細ページの「情報提供会社」に表示されている不動産会社へ直接お願いいたします。
- 間取図は、現況を優先させていただきます。
- 映像は物件の一部を撮影したものです。物件の契約にあたっての最終判断はご自身の判断に基づいて行ってください。
- 仲介手数料について

アットホームは物件情報の適正化に努めております。
内容に誤りがある場合にはこちらへご連絡ください。