東京都渋谷区神宮前4丁目(明治神宮前駅)の貸店舗:物件詳細
交通 所在地 |
駅徒歩 |
賃料 管理費等 |
敷金/保証金 礼金 |
使用部分面積 坪数/坪単価 |
物件種目 築年月 |
|
東京メトロ副都心線/明治神宮前
東京都渋谷区神宮前4丁目
|
1分
|
26.4万円
11,550円
|
なし / 3.1ヶ月
なし
|
9.89m²
2.99坪/8.8244万円
|
貸店舗・事務所
2012年4月(築13年11ヶ月)
|
|
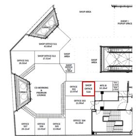
間取図
514平面図
|
室内
514室内
|
その他の画像
|
| 交通 | 東京メトロ副都心線 明治神宮前駅 徒歩1分 |
|---|
| その他の交通 | JR山手線 原宿駅 徒歩4分 東京メトロ千代田線 表参道駅 徒歩7分 |
| 所在地 |
東京都渋谷区神宮前4丁目
|
| 物件種目 |
貸店舗・事務所 |
| 賃料 |
26.4万円 |
管理費等 |
11,550円 |
| 敷金 / 保証金 |
なし / 3.1ヶ月 |
礼金 |
なし |
| 敷引 |
- |
坪単価 |
8.8244万円 |
| 保証金償却 |
解約時1.1ヶ月 |
権利金 |
- |
| 造作譲渡 |
- |
その他一時金 |
事務手数料:264,000円、社名表示作成料:5,500円 |
| 維持費等 |
- |
保険等 |
要 1年 火災 |
| 使用部分面積 |
9.89m² |
坪数 |
2.99坪 |
| 築年月 |
2012年4月(築13年11ヶ月)
|
階建 / 階 |
地上7階地下2階建 / 5階 |
| 駐車場 |
無 |
バイク置き場 |
無 |
| 駐輪場 |
無 |
土地面積 |
- |
| 接道状況 |
-
|
用途地域 |
- |
| 間取り |
ワンルーム |
建物構造 |
鉄骨造 |
| アピールポイント |
リテールエリアに面したショップオフィス区画で店舗でもオフィスでも利用可能。 |
| 建物名・部屋番号 |
LOCUL 514 |
| リフォーム履歴 |
■内装:2023年7月 内装全面(床・壁・天井・建具) ※実施年月は最も古い履歴を表示 |
| リノベーション履歴 |
- |
| 特記事項 |
24時間利用可、土曜日利用可、土日・祝日利用可、24時間セキュリティー |
| 備考 |
賃貸保証等:加入要(保証会社委託料:税込月額固定費の1ヶ月分)
管理形態/管理員の勤務形態:-/-
他所在地:東急プラザ表参道「オモカド」5階
主要採光面:東向き
|
| エネルギー消費性能 |
- |
| 断熱性能 |
- |
| 目安光熱費 |
- |
| バス・トイレ |
- |
| キッチン |
- |
| 設備・サービス |
個別空調、オートロック、防犯カメラ、インターネット使用料無料 |
| その他 |
エレベーター2基以上 |
| 契約期間 |
2年 |
条件等 |
- |
| 引渡可能時期 |
即時 |
現況 |
完成済 |
| 仲介手数料 |
不要 |
|
|
| 更新料 |
新賃料 1.1ヶ月 |
物件番号 |
6988577398 |
| 情報公開日 |
2026年1月23日 |
次回更新予定日 |
2026年2月6日 |
| ケータイ用バーコード |
- スマートフォンでこの物件を見る
- スマートフォンからもこの物件をご覧になれます。
|
※「-」と表示されている項目については、情報提供会社にご確認ください。
| 周辺施設 |
スターバックスコーヒー東急プラザ表参道原宿店 |
| 距離 |
1m |
| 周辺施設 |
ミニストップ神宮前1丁目店 |
| 距離 |
242m |
ここから簡単にお問い合わせをすることができます。
(SSLでの暗号化での送信を希望されるお客さまは
こちら
よりお問い合わせください)
お問い合わせを行う前に
「個人情報の取り扱いについて」を必ずお読みください。
「個人情報の取り扱いについて」に同意いただいた場合は「上記にご同意の上 確認画面へ進む」のボタンをクリックしてください。
個人情報の取り扱いについて
皆さまが送付された個人情報はアットホーム(株)のサーバを経由し、お問い合わせ先の不動産会社にメールまたはFAXにて転送されるためアットホーム(株)にも保管されます。アットホーム(株)で保管された個人情報の取り扱いについては、【こちら】をご覧ください。
また、本画面でご記入いただいた個人情報は、お問い合わせ先の不動産会社でも保管します。 お問い合わせ先の不動産会社が保管する個人情報の取り扱いについては、不動産会社に直接お問い合わせください。
東京都知事免許(4)第90947号 |
|---|
- 交通:
- 東京メトロ副都心線/北参道駅 徒歩4分
- 東京都渋谷区千駄ヶ谷3丁目51-10
- TEL:
- 03-6804-3944
- FAX:
- 03-6804-3941
- 所属団体:
- (公社)東京都宅地建物取引業協会会員(公社)首都圏不動産公正取引協議会加盟
取引態様:貸主  - 00105802
|
- スマートフォンで
この不動産会社を見る

|
- 提携サイト等より掲載されている物件情報につきましては、不動産会社詳細情報にリンクされていないものがあります。
- 物件に関するお問合せは、物件詳細ページの「情報提供会社」に表示されている不動産会社へ直接お願いいたします。
- 間取図は、現況を優先させていただきます。
- 映像は物件の一部を撮影したものです。物件の契約にあたっての最終判断はご自身の判断に基づいて行ってください。
- 仲介手数料について

アットホームは物件情報の適正化に努めております。
内容に誤りがある場合にはこちらへご連絡ください。