東京都千代田区飯田橋4丁目(飯田橋駅)の貸店舗:物件詳細
交通 所在地 |
駅徒歩 |
賃料 管理費等 |
敷金/保証金 礼金 |
使用部分面積 坪数/坪単価 |
物件種目 築年月 |
|
東京メトロ東西線/飯田橋
東京都千代田区飯田橋4丁目
|
3分
|
37.125万円
なし
|
6ヶ月 / なし
なし
|
74.38m²
22.49坪/1.6501万円
|
貸店舗・事務所
1989年7月(築36年11ヶ月)
|
|
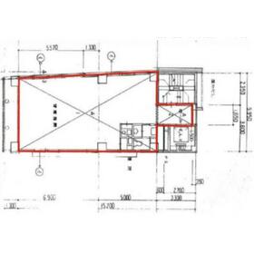
間取図
|
|
その他の画像
|
| 交通 | 東京メトロ東西線 飯田橋駅 徒歩3分 |
|---|
| その他の交通 | JR総武線 水道橋駅 徒歩10分 東京メトロ半蔵門線 九段下駅 徒歩9分 |
| 所在地 |
東京都千代田区飯田橋4丁目
|
| 物件種目 |
貸店舗・事務所 |
| 賃料 |
37.125万円 |
管理費等 |
なし |
| 敷金 / 保証金 |
6ヶ月 / なし |
礼金 |
なし |
| 敷引 |
- |
坪単価 |
1.6501万円 |
| 保証金償却 |
- |
権利金 |
- |
| 造作譲渡 |
- |
その他一時金 |
- |
| 維持費等 |
- |
保険等 |
要 |
| 使用部分面積 |
74.38m² |
坪数 |
22.49坪 |
| 築年月 |
1989年7月(築36年11ヶ月)
|
階建 / 階 |
地上10階地下1階建 / 5階 |
| 駐車場 |
無 |
バイク置き場 |
無 |
| 駐輪場 |
無 |
土地面積 |
- |
| 接道状況 |
-
|
用途地域 |
- |
| 間取り |
- |
建物構造 |
SRC |
| 建物名・部屋番号 |
|
| リフォーム履歴 |
- |
| リノベーション履歴 |
- |
| 特記事項 |
24時間利用可、土日・祝日利用可、OAフロア、飲食店不可、角部屋 |
| 備考 |
管理形態/管理員の勤務形態:-/-
天井高2450mm。
|
| エネルギー消費性能 |
- |
| 断熱性能 |
- |
| 目安光熱費 |
- |
| バス・トイレ |
専有部分にトイレあり |
| キッチン |
- |
| 設備・サービス |
- |
| その他 |
エレベーター |
| 契約期間 |
3年 |
条件等 |
定期借家 |
| 引渡可能時期 |
2026年5月上旬予定 |
現況 |
使用中 |
| 更新料 |
新賃料 1ヶ月 |
物件番号 |
6988598348 |
| 情報公開日 |
2025年12月1日 |
次回更新予定日 |
2026年5月18日 |
| ケータイ用バーコード |
- スマートフォンでこの物件を見る
- スマートフォンからもこの物件をご覧になれます。
|
※「-」と表示されている項目については、情報提供会社にご確認ください。
ここから簡単にお問い合わせをすることができます。
(SSLでの暗号化での送信を希望されるお客さまは
こちら
よりお問い合わせください)
お問い合わせを行う前に
「個人情報の取り扱いについて」を必ずお読みください。
「個人情報の取り扱いについて」に同意いただいた場合は「上記にご同意の上 確認画面へ進む」のボタンをクリックしてください。
個人情報の取り扱いについて
皆さまが送付された個人情報はアットホーム(株)のサーバを経由し、お問い合わせ先の不動産会社にメールまたはFAXにて転送されるためアットホーム(株)にも保管されます。アットホーム(株)で保管された個人情報の取り扱いについては、【こちら】をご覧ください。
また、本画面でご記入いただいた個人情報は、お問い合わせ先の不動産会社でも保管します。 お問い合わせ先の不動産会社が保管する個人情報の取り扱いについては、不動産会社に直接お問い合わせください。
東京都知事免許(4)第92936号 |
|---|
- 交通:
- JR山手線/池袋駅 徒歩5分
- 東京都豊島区東池袋1丁目23-8 東池袋ISKビル202号室
- TEL:
- 03-5985-4521
- FAX:
- 03-3980-2822
- 所属団体:
- (公社)全日本不動産協会会員(公社)首都圏不動産公正取引協議会加盟
取引態様:仲介  - 00104951
|
- スマートフォンで
この不動産会社を見る

|
- 提携サイト等より掲載されている物件情報につきましては、不動産会社詳細情報にリンクされていないものがあります。
- 物件に関するお問合せは、物件詳細ページの「情報提供会社」に表示されている不動産会社へ直接お願いいたします。
- 間取図は、現況を優先させていただきます。
- 映像は物件の一部を撮影したものです。物件の契約にあたっての最終判断はご自身の判断に基づいて行ってください。
- 仲介手数料について

アットホームは物件情報の適正化に努めております。
内容に誤りがある場合にはこちらへご連絡ください。