不動産 賃貸 マンション等の住宅情報:埼玉住まい情報


埼玉県鴻巣市南1丁目(吹上駅)の貸店舗:物件詳細

  • 物件詳細
  • 情報の見方
  • 印刷用画面
交通
所在地
駅徒歩 賃料
管理費等
敷金/保証金
礼金
使用部分面積
坪数/坪単価
物件種目
築年月

JR高崎線/吹上

埼玉県鴻巣市南1丁目

1分

49.5万円

なし / 3ヶ月

1ヶ月

236.70m²

71.60坪/0.6914万円

貸店舗・事務所

1990年7月(築35年6ヶ月)

おすすめコメント  スタッフ: 事務スタッフ

吹上駅徒歩1分の好立地!ロータリー沿いで視認性良好。広々236㎡のスケルトン区画で多様な業種に対応可能。集客性重視の店舗に最適です。

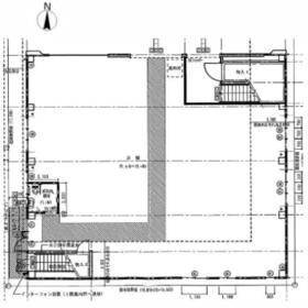
間取図

間取図

  • とりあえず保存
  • お問い合わせ
交通

JR高崎線 吹上駅 徒歩1分

所在地 埼玉県鴻巣市南1丁目
物件種目 貸店舗・事務所
賃料 49.5万円 管理費等
敷金 / 保証金 なし / 3ヶ月 礼金 1ヶ月
敷引 坪単価 0.6914万円
保証金償却 解約時1ヶ月 権利金
造作譲渡 その他一時金
維持費等 保険等 要 2年 25,000円
使用部分面積 236.70m² 坪数 71.60坪
築年月 1990年7月(築35年6ヶ月) 階建 / 階 2階建 / 1階
駐車場 バイク置き場
駐輪場 土地面積
接道状況 用途地域
間取り 建物構造 鉄骨造
アピールポイント 「開業・事業拡大を成功に導く、最適な店舗物件をご提案!」

当社は事業用物件に特化した不動産会社です。初めての開業や事業拡大をお考えの方に向け、豊富な経験を持つスタッフが理想の立地・物件選びから、スムーズな出店計画までをワンストップでサポートいたします。

各エリアの特性を把握した担当者が、出店・退店の市場動向や競合状況など、多角的なデータをもとに、お客様に最適な物件をご提案。内見のご希望やエリアのご相談も、お気軽にお問い合わせください。

お客様のビジネスを「みたす」物件選びを、全力でお手伝いします!
建物名・部屋番号  
リフォーム履歴
リノベーション履歴
特記事項 スケルトン、土曜日利用可、土日・祝日利用可、飲食店可、IT重説対応物件
備考
賃貸保証等:加入要(エポス必加入(初回総賃料100%/月次1%))
管理形態/管理員の勤務形態:-/-
IT重説対応物件
再契約可能予定
解約予告:6ヵ月前
業種相談可能
現況スケルトン
エネルギー消費性能
断熱性能
目安光熱費
バス・トイレ
キッチン
設備・サービス
その他
契約期間 5年 条件等 定期借家定期借家
引渡可能時期 即時 現況
更新料 新賃料 1ヶ月 物件番号 6988685267
情報公開日 2025年12月8日 次回更新予定日 2025年12月22日
ケータイ用バーコード

QRコード

スマートフォンでこの物件を見る
スマートフォンからもこの物件をご覧になれます。
※「-」と表示されている項目については、情報提供会社にご確認ください。

この物件の周辺情報

周辺施設 ニューデイズ吹上
距離 494m
周辺施設 鴻巣市役所吹上支所
距離 195m
周辺施設 ディスカウントドラッグコスモス吹上店
距離 309m
周辺施設 セブンイレブン鴻巣南1丁目店
距離 313m
周辺施設 埼玉りそな銀行吹上支店
距離 633m
周辺施設 吹上本町郵便局
距離 694m
周辺施設 エネオス吹上SS
距離 756m

クイックお問い合わせ

ここから簡単にお問い合わせをすることができます。
(SSLでの暗号化での送信を希望されるお客さまは こちら よりお問い合わせください)

お問い合わせ内容(必須)
物件のお問い合わせ理由(必須)
お名前・ご担当者様名(必須) 姓  名 
メールアドレス(必須)
※携帯電話のメールアドレスをご入力される方はこちらをご確認ください
電話番号(必須)
- -

※入力いただいた電話番号へSMSまたは音声でパスワードをご連絡します。

携帯電話の番号をご入力の方へ

携帯電話の番号をご入力の方へ
確認画面にて送信ボタンをクリックするとSMSが携帯電話に届きます。
そのSMSに記載のパスワード(認証番号)を入力し、お問い合わせを完了してください。
尚、SMSの送信者番号は 0005 202 760 となります。
これはアットホームの固定番号です。

備考欄 希望条件、物件案内希望日、質問などがございましたらご記入ください。
お問い合わせを行う前に「個人情報の取り扱いについて」を必ずお読みください。
「個人情報の取り扱いについて」に同意いただいた場合は「上記にご同意の上 確認画面へ進む」のボタンをクリックしてください。

個人情報の取り扱いについて

皆さまが送付された個人情報はアットホーム(株)のサーバを経由し、お問い合わせ先の不動産会社にメールまたはFAXにて転送されるためアットホーム(株)にも保管されます。アットホーム(株)で保管された個人情報の取り扱いについては、【こちら】をご覧ください。
また、本画面でご記入いただいた個人情報は、お問い合わせ先の不動産会社でも保管します。 お問い合わせ先の不動産会社が保管する個人情報の取り扱いについては、不動産会社に直接お問い合わせください。

情報提供会社

情報提供会社

みたす不動産 (株)ミタスプロパティ

埼玉県知事免許(1)第24396号

交通:
JR東北本線/土呂駅 徒歩8分
埼玉県さいたま市北区土呂町1丁目63-18 
TEL:
050-5810-2422
FAX:
048-714-2007
所属団体:
(公社)埼玉県宅地建物取引業協会会員
(公社)首都圏不動産公正取引協議会加盟

取引態様:仲介

  • 会社情報
  • 00271877
スマートフォンで
この不動産会社を見る
QRコード
  • とりあえず保存
  • お問い合わせ
  • 提携サイト等より掲載されている物件情報につきましては、不動産会社詳細情報にリンクされていないものがあります。
  • 物件に関するお問合せは、物件詳細ページの「情報提供会社」に表示されている不動産会社へ直接お願いいたします。
  • 間取図は、現況を優先させていただきます。
  • 映像は物件の一部を撮影したものです。物件の契約にあたっての最終判断はご自身の判断に基づいて行ってください。
  • 仲介手数料について仲介手数料

アットホームは物件情報の適正化に努めております。 内容に誤りがある場合にはこちらへご連絡ください。

【埼玉住まい情報】では、日本全国の物件から賃貸マンションや賃貸アパート・賃貸一戸建て等の賃貸住宅情報、新築マンション・分譲マンションや中古マンション等の売買マンション情報、新築一戸建てや中古一戸建てなどの戸建住宅、 土地など、総合的な不動産住宅情報検索サービスを提供致します。
【埼玉住まい情報】から、選りすぐりの不動産物件を探してみましょう。

【免責事項】
このコーナーの運営はアットホーム株式会社(https://www.athome.co.jp/)が行っています。
このコーナーに掲載している物件情報は、「アットホーム不動産情報ネットワーク」に加盟する不動産会社等(情報提供元)から提供されています。信頼性の高い情報提供が行えるよう、最大限の努力をしておりますが、その内容を保証するものではありません。 利用者のみなさまと各情報提供元との取引に起因する損害および情報が掲載されたことに起因する損害等については、株式会社イーシティ埼玉、およびアットホームは一切責任を負いません。
各物件情報の内容や画像等はすべて現況を優先させていただきます。
お取引等(お取引の準備、資金調達等を含みます)の際には、内容や契約条件等について、各情報提供元より十分な説明を受け、ご自身でご確認の上、判断してください。
このコーナーへの物件情報のご掲載、その他不動産業務ソリューション等についての不動産会社様のお問合せはこちらからお願いいたします。

物件画像: