東京都文京区本郷3丁目(本郷三丁目駅)の貸店舗:物件詳細
交通 所在地 |
駅徒歩 |
賃料 管理費等 |
敷金/保証金 礼金 |
使用部分面積 坪数/坪単価 |
物件種目 築年月 |
|
東京メトロ丸ノ内線/本郷三丁目
東京都文京区本郷3丁目
|
4分
|
28.6万円
16,500円
|
3ヶ月 / なし
1ヶ月
|
51.18m²
15.48坪/1.8474万円
|
貸店舗・事務所
1983年8月(築42年10ヶ月)
|
|
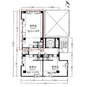
間取図
|
外観
|
その他の画像
|
| 交通 | 東京メトロ丸ノ内線 本郷三丁目駅 徒歩4分 |
|---|
| その他の交通 | 東京メトロ千代田線 湯島駅 徒歩10分 JR中央線 御茶ノ水駅 徒歩9分 |
| 所在地 |
東京都文京区本郷3丁目
|
| 物件種目 |
貸店舗・事務所 |
| 賃料 |
28.6万円 |
管理費等 |
16,500円 |
| 敷金 / 保証金 |
3ヶ月 / なし |
礼金 |
1ヶ月 |
| 敷引 |
- |
坪単価 |
1.8474万円 |
| 保証金償却 |
- |
権利金 |
- |
| 造作譲渡 |
- |
その他一時金 |
- |
| 維持費等 |
- |
保険等 |
- |
| 使用部分面積 |
51.18m² |
坪数 |
15.48坪 |
| 築年月 |
1983年8月(築42年10ヶ月)
|
階建 / 階 |
10階建 / 6階 |
| 駐車場 |
- |
バイク置き場 |
- |
| 駐輪場 |
- |
土地面積 |
- |
| 接道状況 |
-
|
用途地域 |
- |
| 間取り |
- |
建物構造 |
SRC |
| アピールポイント |
『本郷三丁目』駅徒歩4分 |
| 建物名・部屋番号 |
ドルミ本郷・東京ササキビル |
| リフォーム履歴 |
- |
| リノベーション履歴 |
- |
| 特記事項 |
土曜日利用可、土日・祝日利用可、角部屋、耐震構造(新耐震基準) |
| 備考 |
管理形態/管理員の勤務形態:-/-
|
| エネルギー消費性能 |
- |
| 断熱性能 |
- |
| 目安光熱費 |
- |
| バス・トイレ |
専有部分にトイレあり |
| キッチン |
- |
| 設備・サービス |
オートロック、エアコン、暖房、冷房、インターネット対応 |
| その他 |
エレベーター |
| 契約期間 |
2年 |
条件等 |
- |
| 引渡可能時期 |
相談 |
現況 |
空 |
| 仲介手数料 |
1.1ヶ月 |
|
|
| 更新料 |
- |
物件番号 |
6988688910 |
| 情報公開日 |
2025年12月8日 |
次回更新予定日 |
2026年5月16日 |
| ケータイ用バーコード |
- スマートフォンでこの物件を見る
- スマートフォンからもこの物件をご覧になれます。
|
※「-」と表示されている項目については、情報提供会社にご確認ください。
| 周辺施設 |
まいばすけっと本郷3丁目店 |
| 距離 |
172m |
| 周辺施設 |
マルエツプチ本郷二丁目店 |
| 距離 |
225m |
| 周辺施設 |
ファミリーマート文京本郷店 |
| 距離 |
164m |
| 周辺施設 |
ローソン文京本郷七丁目店 |
| 距離 |
216m |
| 周辺施設 |
バーガーキング本郷三丁目店 |
| 距離 |
323m |
| 周辺施設 |
ドトール珈琲店本郷三丁目店 |
| 距離 |
334m |
ここから簡単にお問い合わせをすることができます。
(SSLでの暗号化での送信を希望されるお客さまは
こちら
よりお問い合わせください)
お問い合わせを行う前に
「個人情報の取り扱いについて」を必ずお読みください。
「個人情報の取り扱いについて」に同意いただいた場合は「上記にご同意の上 確認画面へ進む」のボタンをクリックしてください。
個人情報の取り扱いについて
皆さまが送付された個人情報はアットホーム(株)のサーバを経由し、お問い合わせ先の不動産会社にメールまたはFAXにて転送されるためアットホーム(株)にも保管されます。アットホーム(株)で保管された個人情報の取り扱いについては、【こちら】をご覧ください。
また、本画面でご記入いただいた個人情報は、お問い合わせ先の不動産会社でも保管します。 お問い合わせ先の不動産会社が保管する個人情報の取り扱いについては、不動産会社に直接お問い合わせください。
国土交通大臣免許(1)第10868号 |
|---|
- 交通:
- JR山手線/新宿駅 徒歩3分
- 東京都新宿区西新宿7丁目4-4 武蔵ビル7F
- TEL:
- 03-6826-7602
- FAX:
- 03-5332-3035
- 所属団体:
- (公社)東京都宅地建物取引業協会会員(公社)首都圏不動産公正取引協議会加盟
取引態様:仲介  - 00018342
|
- スマートフォンで
この不動産会社を見る

|
- 提携サイト等より掲載されている物件情報につきましては、不動産会社詳細情報にリンクされていないものがあります。
- 物件に関するお問合せは、物件詳細ページの「情報提供会社」に表示されている不動産会社へ直接お願いいたします。
- 間取図は、現況を優先させていただきます。
- 映像は物件の一部を撮影したものです。物件の契約にあたっての最終判断はご自身の判断に基づいて行ってください。
- 仲介手数料について

アットホームは物件情報の適正化に努めております。
内容に誤りがある場合にはこちらへご連絡ください。