新潟県新潟市中央区米山4丁目(新潟駅)の貸店舗:物件詳細
交通 所在地 |
駅徒歩 |
賃料 管理費等 |
敷金/保証金 礼金 |
使用部分面積 坪数/坪単価 |
物件種目 築年月 |
|
上越新幹線/新潟
新潟県新潟市中央区米山4丁目
|
10分
|
18.018万円
22,000円
|
3ヶ月 / なし
1ヶ月
|
77.35m²
23.39坪/0.7701万円
|
貸店舗・事務所
1973年7月(築52年6ヶ月)
|
|
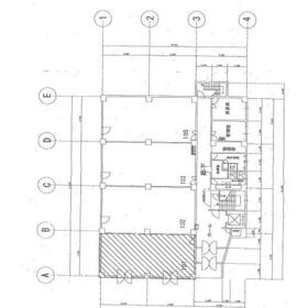
間取図
手前の斜線部分になります(笹出線側です)
|
外観
|
その他の画像
|
| 交通 | 上越新幹線 新潟駅 徒歩10分 |
|---|
| その他の交通 | JR白新線 新潟駅 徒歩9分 JR信越本線 新潟駅 徒歩9分 |
| 所在地 |
新潟県新潟市中央区米山4丁目
|
| 物件種目 |
貸店舗・事務所 |
| 賃料 |
18.018万円 |
管理費等 |
22,000円 |
| 敷金 / 保証金 |
3ヶ月 / なし |
礼金 |
1ヶ月 |
| 敷引 |
- |
坪単価 |
0.7701万円 |
| 保証金償却 |
- |
権利金 |
- |
| 造作譲渡 |
- |
その他一時金 |
- |
| 維持費等 |
- |
保険等 |
要 |
| 使用部分面積 |
77.35m² |
坪数 |
23.39坪 |
| 築年月 |
1973年7月(築52年6ヶ月)
|
階建 / 階 |
7階建 / 1階 |
| 駐車場 |
有 6,600円/月(空き2台) 駐車場は敷地内2台契約可能です |
バイク置き場 |
- |
| 駐輪場 |
- |
土地面積 |
- |
| 接道状況 |
-
|
用途地域 |
- |
| 間取り |
- |
建物構造 |
RC |
| アピールポイント |
現地待合せでの案内も可能になります。
ご不明点、ご相談事項等ありましたらリビングギャラリー事業テナント部025-250-7933
までお気軽にお問合せください。 |
| 建物名・部屋番号 |
紫竹綜合ビル 101 |
| リフォーム履歴 |
- |
| リノベーション履歴 |
- |
| 特記事項 |
土曜日利用可、土日・祝日利用可、飲食店可、駐車場2台分、都道府県道沿いに面する |
| 備考 |
賃貸保証等:利用可(初回保証委託料:月額賃料等総額の100%、年間保証委託料:月額賃料等総額の10%(最低保証委託料20,000円)が必要になります。)
管理形態/管理員の勤務形態:-/-
図面・写真と現状が異なる場合は現状を優先させていただきます。
内装工事費用は借主様負担でお願いします。
現状は2区画に分けて使用してますが、もちろん1区画にしても大丈夫です。
現テナントの居抜き状態でのお引渡しも相談可能です。
居抜き状態であればお引渡し日を早める相談も可能です。
テナントに給排水を引き込む場合は共益費が上がります。
町内会費は年6000円掛かります。
店舗の場合は事前に業態をご相談ください。
|
| エネルギー消費性能 |
- |
| 断熱性能 |
- |
| 目安光熱費 |
- |
| バス・トイレ |
共用部分に男女別トイレあり |
| キッチン |
- |
| 設備・サービス |
看板取付スペースあり、空調機あり、排煙設備あり
個別空調、エアコン2台以上、動力あり、ビルトインエアコン、インターネット対応、光ファイバー |
| その他 |
- |
| 契約期間 |
3年 |
条件等 |
- |
| 引渡可能時期 |
2026年3月下旬予定 |
現況 |
使用中 |
| 仲介手数料 |
1ヶ月 |
適格請求書発行 |
可
|
| 更新料 |
なし |
物件番号 |
6988708370 |
| 情報公開日 |
2025年12月10日 |
次回更新予定日 |
2025年12月24日 |
| ケータイ用バーコード |
- スマートフォンでこの物件を見る
- スマートフォンからもこの物件をご覧になれます。
|
※「-」と表示されている項目については、情報提供会社にご確認ください。
| 周辺施設 |
セブンイレブン新潟天神店 |
| 距離 |
306m |
ここから簡単にお問い合わせをすることができます。
(SSLでの暗号化での送信を希望されるお客さまは
こちら
よりお問い合わせください)
お問い合わせを行う前に
「個人情報の取り扱いについて」を必ずお読みください。
「個人情報の取り扱いについて」に同意いただいた場合は「上記にご同意の上 確認画面へ進む」のボタンをクリックしてください。
個人情報の取り扱いについて
皆さまが送付された個人情報はアットホーム(株)のサーバを経由し、お問い合わせ先の不動産会社にメールまたはFAXにて転送されるためアットホーム(株)にも保管されます。アットホーム(株)で保管された個人情報の取り扱いについては、【こちら】をご覧ください。
また、本画面でご記入いただいた個人情報は、お問い合わせ先の不動産会社でも保管します。 お問い合わせ先の不動産会社が保管する個人情報の取り扱いについては、不動産会社に直接お問い合わせください。
国土交通大臣免許(6)第5854号 |
|---|
- 交通:
- 上越新幹線/新潟駅 徒歩8分
- 新潟県新潟市中央区米山4丁目1-28 藤巻ビル1階
- TEL:
- 025-250-7933
- FAX:
- 025-242-1338
- 所属団体:
- (公社)新潟県宅地建物取引業協会会員北陸不動産公正取引協議会加盟
取引態様:仲介  - 00271749
|
- スマートフォンで
この不動産会社を見る

|
- 提携サイト等より掲載されている物件情報につきましては、不動産会社詳細情報にリンクされていないものがあります。
- 物件に関するお問合せは、物件詳細ページの「情報提供会社」に表示されている不動産会社へ直接お願いいたします。
- 間取図は、現況を優先させていただきます。
- 映像は物件の一部を撮影したものです。物件の契約にあたっての最終判断はご自身の判断に基づいて行ってください。
- 仲介手数料について

アットホームは物件情報の適正化に努めております。
内容に誤りがある場合にはこちらへご連絡ください。