東京都新宿区新宿3丁目(新宿駅)の貸店舗:物件詳細
交通 所在地 |
駅徒歩 |
賃料 管理費等 |
敷金/保証金 礼金 |
使用部分面積 坪数/坪単価 |
物件種目 築年月 |
|
JR山手線/新宿
東京都新宿区新宿3丁目
|
3分
|
78.23万円
58,115円
|
なし / 12ヶ月
1.1ヶ月
|
33.60m²
10.16坪/7.6969万円
|
貸店舗・事務所
2025年6月(新築)
|
|
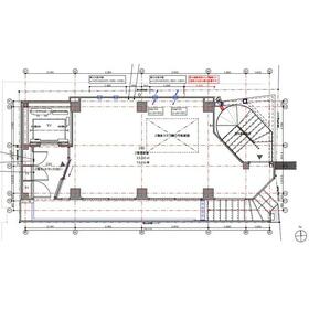
間取図
|
|
<
その他の画像
>
|
| 交通 | JR山手線 新宿駅 徒歩3分 |
|---|
| その他の交通 | 東京メトロ副都心線 新宿三丁目駅 徒歩1分 東京メトロ丸ノ内線 新宿三丁目駅 徒歩1分 |
| 所在地 |
東京都新宿区新宿3丁目
|
| 物件種目 |
貸店舗・事務所 |
| 賃料 |
78.23万円 |
管理費等 |
58,115円 |
| 敷金 / 保証金 |
なし / 12ヶ月 |
礼金 |
1.1ヶ月 |
| 敷引 |
- |
坪単価 |
7.6969万円 |
| 保証金償却 |
解約時20% |
権利金 |
- |
| 造作譲渡 |
- |
その他一時金 |
- |
| 維持費等 |
- |
保険等 |
要 |
| 使用部分面積 |
33.60m² |
坪数 |
10.16坪 |
| 築年月 |
2025年6月(新築)
|
階建 / 階 |
地上9階地下1階建 / 2階 |
| 駐車場 |
- |
バイク置き場 |
- |
| 駐輪場 |
- |
土地面積 |
- |
| 接道状況 |
-
|
用途地域 |
- |
| 間取り |
- |
建物構造 |
RC |
| アピールポイント |
■物件名:F.U.Assets(エフ.ユー.アセッツ)
■住所:新宿区新宿3丁目35-17
【重飲食・物販・サロン等相談】
■入口3箇所有
■新築
■ワンフロア・ワンテナント
●お隣はドン・キホーテ営業中、常に人通りの多い立地で集客が見込めます
●スケルトンでの引き渡しです
F.U.Assets(エフ.ユー.アセッツ)のお問い合わせは、
事業用不動産専門の株式会社エンジンテラスまで!
※お問い合わせの際は業種をご入力いただくとスムーズにご案内できます!
※現況と図面がに相違がある場合現況優先 |
| 建物名・部屋番号 |
F.U.Assets(エフ.ユー.アセッツ) 2F |
| リフォーム履歴 |
- |
| リノベーション履歴 |
- |
| 特記事項 |
スケルトン、24時間利用可、飲食店可、1フロア1テナント、24時間セキュリティー |
| 備考 |
賃貸保証等:加入要(フォーシーズ)
管理形態/管理員の勤務形態:-/-
・スケルトン渡し
・エレベーター(2Fから)
・重飲食相談(ダクト設置可)
・1F案内板、袖看板は共益費に含む※作成費用は借主負担)
・ガス使用可能
・再契約手数料:新賃料1.5ヶ月
・テナント構成:B1募集中、1F焼肉、2F募集中、3F焼肉、4Fシンガポール料理、5F募集中、6Fネイル、7F8F美容室、9F事務所
|
| エネルギー消費性能 |
- |
| 断熱性能 |
- |
| 目安光熱費 |
- |
| バス・トイレ |
- |
| キッチン |
- |
| 設備・サービス |
防犯カメラ |
| その他 |
エレベーター |
| 契約期間 |
5年 |
条件等 |
定期借家 |
| 引渡可能時期 |
即時 |
現況 |
空 |
| 仲介手数料 |
1ヶ月 |
|
|
| 更新料 |
- |
物件番号 |
6988787434 |
| 情報公開日 |
2025年12月16日 |
次回更新予定日 |
2025年12月30日 |
| ケータイ用バーコード |
- スマートフォンでこの物件を見る
- スマートフォンからもこの物件をご覧になれます。
|
※「-」と表示されている項目については、情報提供会社にご確認ください。
| 周辺施設 |
ムラサキスポーツ新宿南口店 |
| 距離 |
14m |
| 周辺施設 |
セブンイレブン新宿3丁目店 |
| 距離 |
16m |
| 周辺施設 |
ドコモショップ新宿南口店 |
| 距離 |
100m |
| 周辺施設 |
ファミリーマート新宿三丁目中央通り店 |
| 距離 |
77m |
ここから簡単にお問い合わせをすることができます。
(SSLでの暗号化での送信を希望されるお客さまは
こちら
よりお問い合わせください)
お問い合わせを行う前に
「個人情報の取り扱いについて」を必ずお読みください。
「個人情報の取り扱いについて」に同意いただいた場合は「上記にご同意の上 確認画面へ進む」のボタンをクリックしてください。
個人情報の取り扱いについて
皆さまが送付された個人情報はアットホーム(株)のサーバを経由し、お問い合わせ先の不動産会社にメールまたはFAXにて転送されるためアットホーム(株)にも保管されます。アットホーム(株)で保管された個人情報の取り扱いについては、【こちら】をご覧ください。
また、本画面でご記入いただいた個人情報は、お問い合わせ先の不動産会社でも保管します。 お問い合わせ先の不動産会社が保管する個人情報の取り扱いについては、不動産会社に直接お問い合わせください。
東京都知事免許(3)第94555号 |
|---|
- 交通:
- JR山手線/新宿駅 徒歩4分
- 東京都渋谷区代々木2丁目15-12 クランツ南新宿203
- TEL:
- 03-5302-1885
- FAX:
- 03-5302-1886
- 所属団体:
- (公社)全日本不動産協会会員(公社)首都圏不動産公正取引協議会加盟
取引態様:仲介  - 00107309
|
- スマートフォンで
この不動産会社を見る

|
- 提携サイト等より掲載されている物件情報につきましては、不動産会社詳細情報にリンクされていないものがあります。
- 物件に関するお問合せは、物件詳細ページの「情報提供会社」に表示されている不動産会社へ直接お願いいたします。
- 間取図は、現況を優先させていただきます。
- 映像は物件の一部を撮影したものです。物件の契約にあたっての最終判断はご自身の判断に基づいて行ってください。
- 仲介手数料について

アットホームは物件情報の適正化に努めております。
内容に誤りがある場合にはこちらへご連絡ください。