茨城県つくば市研究学園1丁目(研究学園駅)の貸店舗:物件詳細
交通 所在地 |
駅徒歩 |
賃料 管理費等 |
敷金/保証金 礼金 |
使用部分面積 坪数/坪単価 |
物件種目 築年月 |
|
つくばエクスプレス/研究学園
茨城県つくば市研究学園1丁目
|
5分
|
29.2万円
98,747円
|
10ヶ月 / なし
1ヶ月
|
54.86m²
16.59坪/1.7596万円
|
貸店舗
2026年7月(新築)
|
|
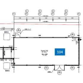
間取図
|
|
その他の画像
|
| 交通 | つくばエクスプレス 研究学園駅 徒歩5分 |
| 所在地 |
茨城県つくば市研究学園1丁目
|
| 物件種目 |
貸店舗 |
| 賃料 |
29.2万円 |
管理費等 |
98,747円 |
| 敷金 / 保証金 |
10ヶ月 / なし |
礼金 |
1ヶ月 |
| 敷引 |
- |
坪単価 |
1.7596万円 |
| 保証金償却 |
- |
権利金 |
- |
| 造作譲渡 |
- |
その他一時金 |
内装管理費:396,000円、現場協力金:352,000円 |
| 維持費等 |
- |
保険等 |
要 6年 借家人賠償 |
| 使用部分面積 |
54.86m² |
坪数 |
16.59坪 |
| 築年月 |
2026年7月(新築)
|
階建 / 階 |
1階建 / 1階 |
| 駐車場 |
- |
バイク置き場 |
- |
| 駐輪場 |
- |
土地面積 |
- |
| 接道状況 |
南
|
用途地域 |
準工業 |
| 間取り |
- |
建物構造 |
鉄骨造 |
| アピールポイント |
2026年7月OPEN予定の、TX研究学園駅高架下の飲食店専門テナントです。
駅徒歩5分!スケルトン渡しとなります。
ハンバーガー・日本そば・カフェは重複するため出店不可です。
駐車場がないため、近隣月極・コインパーキングを
利用いただく形となります。
定期借家契約6年・3年目に更新料が発生いたします。 |
| 建物名・部屋番号 |
|
| リフォーム履歴 |
- |
| リノベーション履歴 |
- |
| 特記事項 |
スケルトン、土日・祝日利用可、飲食店可 |
| 備考 |
賃貸保証等:加入要(保証会社 加入要となります)
管理形態/管理員の勤務形態:-/-
2026年7月OPEN予定の、TX研究学園駅高架下の飲食店専門テナントです。
駅徒歩5分!スケルトン渡しとなります。
ハンバーガー・日本そば・カフェは重複するため出店不可です。
駐車場がないため、近隣月極・コインパーキングを
利用いただく形となります。
定期借家契約6年・3年目に更新料が発生いたします。
|
| エネルギー消費性能 |
- |
| 断熱性能 |
- |
| 目安光熱費 |
- |
| バス・トイレ |
- |
| キッチン |
- |
| 設備・サービス |
- |
| その他 |
- |
| 契約期間 |
2031年6月30日まで |
条件等 |
定期借家 |
| 引渡可能時期 |
相談 |
現況 |
未完成 |
| 仲介手数料 |
1ヶ月 |
適格請求書発行 |
可
|
| 更新料 |
新賃料 1ヶ月 |
物件番号 |
6988797804 |
| 情報公開日 |
2025年12月16日 |
次回更新予定日 |
2025年12月30日 |
| ケータイ用バーコード |
- スマートフォンでこの物件を見る
- スマートフォンからもこの物件をご覧になれます。
|
※「-」と表示されている項目については、情報提供会社にご確認ください。
| 周辺施設 |
わだつみつなぐ保育園分園 |
| 距離 |
271m |
| 周辺施設 |
namco iiasつくば店 |
| 距離 |
952m |
ここから簡単にお問い合わせをすることができます。
(SSLでの暗号化での送信を希望されるお客さまは
こちら
よりお問い合わせください)
お問い合わせを行う前に
「個人情報の取り扱いについて」を必ずお読みください。
「個人情報の取り扱いについて」に同意いただいた場合は「上記にご同意の上 確認画面へ進む」のボタンをクリックしてください。
個人情報の取り扱いについて
皆さまが送付された個人情報はアットホーム(株)のサーバを経由し、お問い合わせ先の不動産会社にメールまたはFAXにて転送されるためアットホーム(株)にも保管されます。アットホーム(株)で保管された個人情報の取り扱いについては、【こちら】をご覧ください。
また、本画面でご記入いただいた個人情報は、お問い合わせ先の不動産会社でも保管します。 お問い合わせ先の不動産会社が保管する個人情報の取り扱いについては、不動産会社に直接お問い合わせください。
国土交通大臣免許(3)第8335号 |
|---|
- 交通:
- つくばエクスプレス/つくば駅 徒歩10分
- 茨城県つくば市東新井19-5
- TEL:
- 029-875-7355
- FAX:
- 029-875-7114
- 所属団体:
- (公社)茨城県宅地建物取引業協会会員(公社)首都圏不動産公正取引協議会加盟
取引態様:仲介  - 00267080
|
- スマートフォンで
この不動産会社を見る

|
- 提携サイト等より掲載されている物件情報につきましては、不動産会社詳細情報にリンクされていないものがあります。
- 物件に関するお問合せは、物件詳細ページの「情報提供会社」に表示されている不動産会社へ直接お願いいたします。
- 間取図は、現況を優先させていただきます。
- 映像は物件の一部を撮影したものです。物件の契約にあたっての最終判断はご自身の判断に基づいて行ってください。
- 仲介手数料について

アットホームは物件情報の適正化に努めております。
内容に誤りがある場合にはこちらへご連絡ください。