京都府京都市左京区一乗寺地蔵本町(茶山・京都芸術大学駅)の貸店舗:物件詳細
交通 所在地 |
駅徒歩 |
賃料 管理費等 |
敷金/保証金 礼金 |
使用部分面積 坪数/坪単価 |
物件種目 築年月 |
|
叡山電鉄叡山本線/茶山・京都芸術大学
京都府京都市左京区一乗寺地蔵本町
|
5分
|
26.4万円
-
|
なし / 3ヶ月
なし
|
90.00m²
27.22坪/0.9698万円
|
貸店舗・事務所
1988年12月(築37年3ヶ月)
|
|
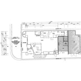
間取図
|
現況優先
|
その他の画像
|
| 交通 | 叡山電鉄叡山本線 茶山・京都芸術大学駅 徒歩5分 |
|---|
| その他の交通 | 叡山電鉄叡山本線 一乗寺駅 徒歩8分 叡山電鉄叡山本線 元田中駅 徒歩10分 |
| 所在地 |
京都府京都市左京区一乗寺地蔵本町
|
| 物件種目 |
貸店舗・事務所 |
| 賃料 |
26.4万円 |
管理費等 |
- |
| 敷金 / 保証金 |
なし / 3ヶ月 |
礼金 |
なし |
| 敷引 |
- |
坪単価 |
0.9698万円 |
| 保証金償却 |
- |
権利金 |
- |
| 造作譲渡 |
- |
その他一時金 |
- |
| 維持費等 |
- |
保険等 |
- |
| 使用部分面積 |
90.00m² |
坪数 |
27.22坪 |
| 築年月 |
1988年12月(築37年3ヶ月)
|
階建 / 階 |
5階建 / 1階 |
| 駐車場 |
- |
バイク置き場 |
- |
| 駐輪場 |
有 無料 |
土地面積 |
- |
| 接道状況 |
-
|
用途地域 |
- |
| 間取り |
- |
建物構造 |
RC |
| アピールポイント |
北大路通り1階店舗事務所です。駐輪スペースもございます。現在保育ルームでご利用中です。 |
| 建物名・部屋番号 |
|
| リフォーム履歴 |
- |
| リノベーション履歴 |
- |
| 特記事項 |
居抜き、土日・祝日利用可 |
| 備考 |
賃貸保証等:加入要(初回100%、年間更新保証料要)
管理形態/管理員の勤務形態:-/-
更新事務手数料:2万円税別、保証金返還率あり(満5年未満:4割、満5年以上満7年未満:5割、満7年以上満10年未満6割、満10年以上9割を返還)
|
| エネルギー消費性能 |
- |
| 断熱性能 |
- |
| 目安光熱費 |
- |
| バス・トイレ |
専有部分にトイレあり |
| キッチン |
- |
| 設備・サービス |
看板取付スペースあり |
| その他 |
- |
| 契約期間 |
2年 |
条件等 |
- |
| 引渡可能時期 |
2026年5月上旬予定 |
現況 |
使用中 |
| 更新料 |
- |
物件番号 |
6989128174 |
| 情報公開日 |
2026年1月18日 |
次回更新予定日 |
2026年2月17日 |
| ケータイ用バーコード |
- スマートフォンでこの物件を見る
- スマートフォンからもこの物件をご覧になれます。
|
※「-」と表示されている項目については、情報提供会社にご確認ください。
ここから簡単にお問い合わせをすることができます。
(SSLでの暗号化での送信を希望されるお客さまは
こちら
よりお問い合わせください)
お問い合わせを行う前に
「個人情報の取り扱いについて」を必ずお読みください。
「個人情報の取り扱いについて」に同意いただいた場合は「上記にご同意の上 確認画面へ進む」のボタンをクリックしてください。
個人情報の取り扱いについて
皆さまが送付された個人情報はアットホーム(株)のサーバを経由し、お問い合わせ先の不動産会社にメールまたはFAXにて転送されるためアットホーム(株)にも保管されます。アットホーム(株)で保管された個人情報の取り扱いについては、【こちら】をご覧ください。
また、本画面でご記入いただいた個人情報は、お問い合わせ先の不動産会社でも保管します。 お問い合わせ先の不動産会社が保管する個人情報の取り扱いについては、不動産会社に直接お問い合わせください。
京都府知事免許(3)第13623号 |
|---|
- 交通:
- 叡山電鉄叡山本線/茶山・京都芸術大学駅 徒歩3分
- 京都府京都市左京区田中上古川町8-4 FUJITA bldg 1F
- TEL:
- 075-706-5236
- FAX:
- 075-706-5237
- 所属団体:
- (公社)全日本不動産協会会員(公社)近畿地区不動産公正取引協議会加盟
取引態様:仲介  - 50027289
|
- スマートフォンで
この不動産会社を見る

|
- 提携サイト等より掲載されている物件情報につきましては、不動産会社詳細情報にリンクされていないものがあります。
- 物件に関するお問合せは、物件詳細ページの「情報提供会社」に表示されている不動産会社へ直接お願いいたします。
- 間取図は、現況を優先させていただきます。
- 映像は物件の一部を撮影したものです。物件の契約にあたっての最終判断はご自身の判断に基づいて行ってください。
- 仲介手数料について

アットホームは物件情報の適正化に努めております。
内容に誤りがある場合にはこちらへご連絡ください。