神奈川県藤沢市湘南台2丁目(湘南台駅)の貸店舗:物件詳細
交通 所在地 |
駅徒歩 |
賃料 管理費等 |
敷金/保証金 礼金 |
使用部分面積 坪数/坪単価 |
物件種目 築年月 |
|
小田急江ノ島線/湘南台
神奈川県藤沢市湘南台2丁目
|
4分
|
49.3982万円
-
|
なし / 6ヶ月
1ヶ月
|
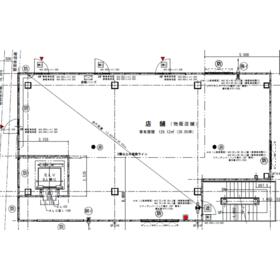
129.12m²
39.05坪/1.2648万円
|
貸店舗・事務所
2017年5月(築8年10ヶ月)
|
|
間取図
|
外観
|
その他の画像
|
| 交通 | 小田急江ノ島線 湘南台駅 徒歩4分 |
|---|
| その他の交通 | 相鉄いずみ野線 湘南台駅 徒歩5分 ブルーライン 湘南台駅 徒歩7分 |
| 所在地 |
神奈川県藤沢市湘南台2丁目
|
| 物件種目 |
貸店舗・事務所 |
| 賃料 |
49.3982万円 |
管理費等 |
- |
| 敷金 / 保証金 |
なし / 6ヶ月 |
礼金 |
1ヶ月 |
| 敷引 |
- |
坪単価 |
1.2648万円 |
| 保証金償却 |
- |
権利金 |
- |
| 造作譲渡 |
- |
その他一時金 |
- |
| 維持費等 |
- |
保険等 |
要 火災 |
| 使用部分面積 |
129.12m² |
坪数 |
39.05坪 |
| 築年月 |
2017年5月(築8年10ヶ月)
|
階建 / 階 |
4階建 / 3階 |
| 駐車場 |
無 |
バイク置き場 |
無 |
| 駐輪場 |
無 |
土地面積 |
299.53m²(実測) |
| 接道状況 |
北西 8.0m 公道 接面15.3m
・
南西 8.0m 公道 接面14.9m
・
二方道路
|
用途地域 |
商業地域 |
| 間取り |
- |
建物構造 |
鉄骨造 |
| 建物名・部屋番号 |
フィル・パーク湘南台Ⅲ 3階 |
| リフォーム履歴 |
- |
| リノベーション履歴 |
- |
| 特記事項 |
24時間利用可、土曜日利用可、土日・祝日利用可、1フロア1テナント、耐震構造(新耐震基準)、天井高2.5M以上 |
| 備考 |
賃貸保証等:加入要(初回保証委託料:税込賃料1ヶ月)
管理形態/管理員の勤務形態:-/-
主要採光面:北西向き
※契約期間は要相談
※条件のご相談は出店申込書を以て可能です。
※3月末までは居抜(事務所)のご相談可能です。
|
| エネルギー消費性能 |
- |
| 断熱性能 |
- |
| 目安光熱費 |
- |
| バス・トイレ |
- |
| キッチン |
- |
| 設備・サービス |
看板取付スペースあり、天井高3m、建物間口9.3m、換気口あり、排煙設備あり、排水設備あり 、水道メーター口径20mm、電気容量(電灯)15KVA、電気容量(動力)25KW
都市ガス、動力あり、火災警報器(報知機) |
| その他 |
エレベーター |
| 契約期間 |
5年 |
条件等 |
定期借家 |
| 引渡可能時期 |
2026年7月上旬予定 |
現況 |
居住中 |
| 仲介手数料 |
1ヶ月 |
適格請求書発行 |
可
|
| 更新料 |
- |
物件番号 |
6989196454 |
| 情報公開日 |
2026年1月26日 |
次回更新予定日 |
2026年2月9日 |
| ケータイ用バーコード |
- スマートフォンでこの物件を見る
- スマートフォンからもこの物件をご覧になれます。
|
※「-」と表示されている項目については、情報提供会社にご確認ください。
ここから簡単にお問い合わせをすることができます。
(SSLでの暗号化での送信を希望されるお客さまは
こちら
よりお問い合わせください)
お問い合わせを行う前に
「個人情報の取り扱いについて」を必ずお読みください。
「個人情報の取り扱いについて」に同意いただいた場合は「上記にご同意の上 確認画面へ進む」のボタンをクリックしてください。
個人情報の取り扱いについて
皆さまが送付された個人情報はアットホーム(株)のサーバを経由し、お問い合わせ先の不動産会社にメールまたはFAXにて転送されるためアットホーム(株)にも保管されます。アットホーム(株)で保管された個人情報の取り扱いについては、【こちら】をご覧ください。
また、本画面でご記入いただいた個人情報は、お問い合わせ先の不動産会社でも保管します。 お問い合わせ先の不動産会社が保管する個人情報の取り扱いについては、不動産会社に直接お問い合わせください。
国土交通大臣免許(1)第10802号 |
|---|
- 交通:
- 東京メトロ有楽町線/新富町駅 徒歩1分
- 東京都中央区築地3丁目1-12 フィル・パーク TOKYO GINZA Shintomi Lab.
- TEL:
- 03-6264-1100
- FAX:
- 03-6264-1130
- 所属団体:
- (公社)全日本不動産協会会員(公社)首都圏不動産公正取引協議会加盟
取引態様:仲介  - 00018790
|
- スマートフォンで
この不動産会社を見る

|
- 提携サイト等より掲載されている物件情報につきましては、不動産会社詳細情報にリンクされていないものがあります。
- 物件に関するお問合せは、物件詳細ページの「情報提供会社」に表示されている不動産会社へ直接お願いいたします。
- 間取図は、現況を優先させていただきます。
- 映像は物件の一部を撮影したものです。物件の契約にあたっての最終判断はご自身の判断に基づいて行ってください。
- 仲介手数料について

アットホームは物件情報の適正化に努めております。
内容に誤りがある場合にはこちらへご連絡ください。