岡山県岡山市南区新保(備前西市駅)の貸店舗:物件詳細
交通 所在地 |
駅徒歩 |
賃料 管理費等 |
敷金/保証金 礼金 |
使用部分面積 坪数/坪単価 |
物件種目 築年月 |
|
宇野線/備前西市
岡山県岡山市南区新保
|
10分
|
55万円
-
|
なし / 150万円
1ヶ月
|
169.87m²
51.38坪/1.0704万円
|
貸店舗(建物一括)
2004年5月(築22年1ヶ月)
|
|
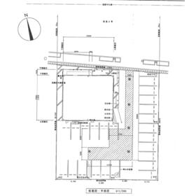
間取図
|
外観
|
<
その他の画像
>
|
| 交通 | 宇野線 備前西市駅 徒歩10分 |
| 所在地 |
岡山県岡山市南区新保
|
| 物件種目 |
貸店舗(建物一括) |
| 賃料 |
55万円 |
管理費等 |
- |
| 敷金 / 保証金 |
なし / 150万円 |
礼金 |
1ヶ月 |
| 敷引 |
- |
坪単価 |
1.0704万円 |
| 保証金償却 |
解約時30% |
権利金 |
- |
| 造作譲渡 |
- |
その他一時金 |
- |
| 維持費等 |
- |
保険等 |
要 火災 |
| 使用部分面積 |
169.87m² |
坪数 |
51.38坪 |
| 築年月 |
2004年5月(築22年1ヶ月)
|
階建 / 階 |
1階建 |
| 駐車場 |
有 無料(空き23台) |
バイク置き場 |
- |
| 駐輪場 |
- |
土地面積 |
798.00m²(公簿) |
| 接道状況 |
北 8.0m 公道 接面27.0m
|
用途地域 |
準工業 |
| 間取り |
- |
建物構造 |
鉄骨造 |
| アピールポイント |
2号線パイパス側道沿いの焼肉店の居抜き物件!駐車場23台(無料)! |
| 建物名・部屋番号 |
新保貸店舗 |
| リフォーム履歴 |
- |
| リノベーション履歴 |
- |
| 特記事項 |
居抜き、24時間利用可、土曜日利用可、土日・祝日利用可、飲食店可、駐車場3台分以上、国道沿いに面する |
| 備考 |
賃貸保証等:加入要(弊社指定保証会社利用)
管理形態/管理員の勤務形態:-/-
焼肉店の居抜き物件(2025年12月末日迄営業)
設備機器も残っているため使用可能な設備はご利用可能(残置物)。
不要な設備は貸主負担にて撤去致します。
駐車場代込み(23台)、水道代、光熱費実費、要鍵交換代(45,000円(税別))、業態都度相談
|
| エネルギー消費性能 |
- |
| 断熱性能 |
- |
| 目安光熱費 |
- |
| バス・トイレ |
トイレ |
| キッチン |
- |
| 設備・サービス |
看板取付スペースあり、換気口あり、排煙設備あり、グリストラップあり、水道メーター口径25mm |
| その他 |
- |
| 契約期間 |
10年 |
条件等 |
定期借家 |
| 引渡可能時期 |
即時 |
現況 |
空 |
| 仲介手数料 |
1ヶ月 |
適格請求書発行 |
可
|
| 更新料 |
新賃料 0.5ヶ月 |
物件番号 |
6989206956 |
| 情報公開日 |
2026年2月24日 |
次回更新予定日 |
2026年5月12日 |
| ケータイ用バーコード |
- スマートフォンでこの物件を見る
- スマートフォンからもこの物件をご覧になれます。
|
※「-」と表示されている項目については、情報提供会社にご確認ください。
ここから簡単にお問い合わせをすることができます。
(SSLでの暗号化での送信を希望されるお客さまは
こちら
よりお問い合わせください)
お問い合わせを行う前に
「個人情報の取り扱いについて」を必ずお読みください。
「個人情報の取り扱いについて」に同意いただいた場合は「上記にご同意の上 確認画面へ進む」のボタンをクリックしてください。
個人情報の取り扱いについて
皆さまが送付された個人情報はアットホーム(株)のサーバを経由し、お問い合わせ先の不動産会社にメールまたはFAXにて転送されるためアットホーム(株)にも保管されます。アットホーム(株)で保管された個人情報の取り扱いについては、【こちら】をご覧ください。
また、本画面でご記入いただいた個人情報は、お問い合わせ先の不動産会社でも保管します。 お問い合わせ先の不動産会社が保管する個人情報の取り扱いについては、不動産会社に直接お問い合わせください。
岡山県知事免許(2)第5761号 |
|---|
- 交通:
- JR山陽本線/岡山駅 徒歩1分
- 岡山県岡山市北区富町2丁目7-5
- TEL:
- 086-250-4501
- FAX:
- 086-201-4501
- 所属団体:
- (公社)岡山県宅地建物取引業協会会員中国地区不動産公正取引協議会加盟
取引態様:仲介  - 50103083
|
- スマートフォンで
この不動産会社を見る

|
- 提携サイト等より掲載されている物件情報につきましては、不動産会社詳細情報にリンクされていないものがあります。
- 物件に関するお問合せは、物件詳細ページの「情報提供会社」に表示されている不動産会社へ直接お願いいたします。
- 間取図は、現況を優先させていただきます。
- 映像は物件の一部を撮影したものです。物件の契約にあたっての最終判断はご自身の判断に基づいて行ってください。
- 仲介手数料について

アットホームは物件情報の適正化に努めております。
内容に誤りがある場合にはこちらへご連絡ください。