新潟県長岡市美沢3丁目(長岡駅)の貸店舗:物件詳細
交通 所在地 |
駅徒歩 |
賃料 管理費等 |
敷金/保証金 礼金 |
使用部分面積 坪数/坪単価 |
物件種目 築年月 |
|
JR信越本線/長岡
新潟県長岡市美沢3丁目
|
20分
|
55万円
-
|
110万円 / なし
1ヶ月
|
966.79m²
292.45坪/0.1881万円
|
貸店舗(建物一括)
1984年10月(築41年5ヶ月)
|
| 交通 | JR信越本線 長岡駅 徒歩20分 |
| 所在地 |
新潟県長岡市美沢3丁目
|
| 物件種目 |
貸店舗(建物一括) |
| 賃料 |
55万円 |
管理費等 |
- |
| 敷金 / 保証金 |
110万円 / なし |
礼金 |
1ヶ月 |
| 敷引 |
- |
坪単価 |
0.1881万円 |
| 保証金償却 |
- |
権利金 |
- |
| 造作譲渡 |
- |
その他一時金 |
- |
| 維持費等 |
- |
保険等 |
要 |
| 使用部分面積 |
966.79m² |
坪数 |
292.45坪 |
| 築年月 |
1984年10月(築41年5ヶ月)
|
階建 / 階 |
2階建 |
| 駐車場 |
有 無料(空き38台) |
バイク置き場 |
- |
| 駐輪場 |
- |
土地面積 |
- |
| 接道状況 |
-
|
用途地域 |
1種住居 |
| 間取り |
- |
建物構造 |
鉄骨造 |
| 建物名・部屋番号 |
|
| リフォーム履歴 |
- |
| リノベーション履歴 |
- |
| 特記事項 |
土曜日利用可、土日・祝日利用可、駐車場2台分、駐車場3台分以上、国道沿いに面する |
| 備考 |
賃貸保証等:利用可(詳細はお問い合わせください)
管理形態/管理員の勤務形態:-/-
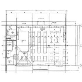
※面積詳細:1階713.06㎡/2階253.73㎡ ※業種によっては用途変更が必要になる場合があります(費用は借主負担) ※与信状況によりますが、保証会社に加入いただく場合があります
|
| エネルギー消費性能 |
- |
| 断熱性能 |
- |
| 目安光熱費 |
- |
| バス・トイレ |
- |
| キッチン |
- |
| 設備・サービス |
都市ガス |
| その他 |
- |
| 契約期間 |
5年 |
条件等 |
- |
| 引渡可能時期 |
相談 |
現況 |
空 |
| 更新料 |
- |
物件番号 |
6989239666 |
| 情報公開日 |
2026年1月27日 |
次回更新予定日 |
2026年2月10日 |
| ケータイ用バーコード |
- スマートフォンでこの物件を見る
- スマートフォンからもこの物件をご覧になれます。
|
※「-」と表示されている項目については、情報提供会社にご確認ください。
ここから簡単にお問い合わせをすることができます。
(SSLでの暗号化での送信を希望されるお客さまは
こちら
よりお問い合わせください)
お問い合わせを行う前に
「個人情報の取り扱いについて」を必ずお読みください。
「個人情報の取り扱いについて」に同意いただいた場合は「上記にご同意の上 確認画面へ進む」のボタンをクリックしてください。
個人情報の取り扱いについて
皆さまが送付された個人情報はアットホーム(株)のサーバを経由し、お問い合わせ先の不動産会社にメールまたはFAXにて転送されるためアットホーム(株)にも保管されます。アットホーム(株)で保管された個人情報の取り扱いについては、【こちら】をご覧ください。
また、本画面でご記入いただいた個人情報は、お問い合わせ先の不動産会社でも保管します。 お問い合わせ先の不動産会社が保管する個人情報の取り扱いについては、不動産会社に直接お問い合わせください。
新潟県知事免許(12)第2097号 |
|---|
- 交通:
- JR越後線/関屋駅 徒歩5分 【バス】 信濃町 停歩3分
- 新潟県新潟市中央区信濃町3-10
- TEL:
- 025-211-8670
- FAX:
- 025-201-8886
- 所属団体:
- (公社)新潟県宅地建物取引業協会会員(公財)日本賃貸住宅管理協会会員全国賃貸管理ビジネス協会会員(公社)首都圏不動産公正取引協議会加盟
取引態様:仲介  - 00278682
|
- スマートフォンで
この不動産会社を見る

|
- 提携サイト等より掲載されている物件情報につきましては、不動産会社詳細情報にリンクされていないものがあります。
- 物件に関するお問合せは、物件詳細ページの「情報提供会社」に表示されている不動産会社へ直接お願いいたします。
- 間取図は、現況を優先させていただきます。
- 映像は物件の一部を撮影したものです。物件の契約にあたっての最終判断はご自身の判断に基づいて行ってください。
- 仲介手数料について

アットホームは物件情報の適正化に努めております。
内容に誤りがある場合にはこちらへご連絡ください。