兵庫県神戸市東灘区本山南町1丁目(深江駅)の貸店舗:物件詳細
交通 所在地 |
駅徒歩 |
賃料 管理費等 |
敷金/保証金 礼金 |
使用部分面積 坪数/坪単価 |
物件種目 築年月 |
|
阪神本線/深江
兵庫県神戸市東灘区本山南町1丁目
|
4分
|
57.2万円
-
|
3ヶ月 / なし
3ヶ月
|
240.27m²
72.68坪/0.787万円
|
貸店舗・事務所
1973年3月(築53年1ヶ月)
|
|
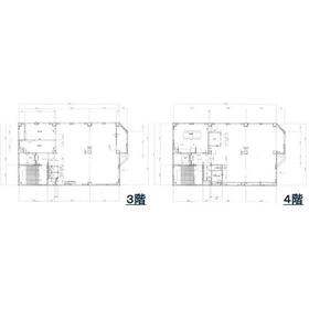
間取図
|
外観
視認性良好の角地に立地するビル
|
その他の画像
|
| 交通 | 阪神本線 深江駅 徒歩4分 |
|---|
| その他の交通 | JR東海道本線 甲南山手駅 徒歩15分 阪神本線 青木駅 徒歩15分 |
| 所在地 |
兵庫県神戸市東灘区本山南町1丁目
|
| 物件種目 |
貸店舗・事務所 |
| 賃料 |
57.2万円 |
管理費等 |
- |
| 敷金 / 保証金 |
3ヶ月 / なし |
礼金 |
3ヶ月 |
| 敷引 |
- |
坪単価 |
0.787万円 |
| 保証金償却 |
- |
権利金 |
- |
| 造作譲渡 |
- |
その他一時金 |
- |
| 維持費等 |
- |
保険等 |
要 |
| 使用部分面積 |
240.27m² |
坪数 |
72.68坪 |
| 築年月 |
1973年3月(築53年1ヶ月)
|
階建 / 階 |
5階建 / 3階~4階部分 |
| 駐車場 |
近有 22,000円/月 |
バイク置き場 |
- |
| 駐輪場 |
有 |
土地面積 |
- |
| 接道状況 |
-
|
用途地域 |
- |
| 間取り |
- |
建物構造 |
RC |
| アピールポイント |
◆3.4階2フロア(ワンフロアのみの相談も可能)
◆エレベータ、キッチン、トイレ有
◆周辺にはコンビニ、飲食店等の商業施設が充実 |
| 建物名・部屋番号 |
阪神ソース本社ビル |
| リフォーム履歴 |
- |
| リノベーション履歴 |
- |
| 特記事項 |
土曜日利用可、土日・祝日利用可、飲食店不可、IT重説対応物件 |
| 備考 |
管理形態/管理員の勤務形態:-/-
IT重説対応物件
|
| エネルギー消費性能 |
- |
| 断熱性能 |
- |
| 目安光熱費 |
- |
| バス・トイレ |
専有部分にトイレあり |
| キッチン |
- |
| 設備・サービス |
給湯、都市ガス、エアコン、暖房、冷房 |
| その他 |
エレベーター |
| 契約期間 |
2年 |
条件等 |
- |
| 引渡可能時期 |
2026年4月下旬予定 |
現況 |
居住中 |
| 更新料 |
- |
物件番号 |
6989243887 |
| 情報公開日 |
2026年1月27日 |
次回更新予定日 |
2026年4月7日 |
| ケータイ用バーコード |
- スマートフォンでこの物件を見る
- スマートフォンからもこの物件をご覧になれます。
|
※「-」と表示されている項目については、情報提供会社にご確認ください。
| 周辺施設 |
ファミリーマート陸前屋東灘店 |
| 距離 |
2m |
写真を見る |
| 周辺施設 |
ロイヤルホスト本山店 |
| 距離 |
457m |
写真を見る |
| 周辺施設 |
マクドナルド本山南店 |
| 距離 |
494m |
写真を見る |
| 周辺施設 |
業務スーパー本山店 |
| 距離 |
231m |
写真を見る |
| 周辺施設 |
神戸深江郵便局 |
| 距離 |
435m |
写真を見る |
ここから簡単にお問い合わせをすることができます。
(SSLでの暗号化での送信を希望されるお客さまは
こちら
よりお問い合わせください)
お問い合わせを行う前に
「個人情報の取り扱いについて」を必ずお読みください。
「個人情報の取り扱いについて」に同意いただいた場合は「上記にご同意の上 確認画面へ進む」のボタンをクリックしてください。
個人情報の取り扱いについて
皆さまが送付された個人情報はアットホーム(株)のサーバを経由し、お問い合わせ先の不動産会社にメールまたはFAXにて転送されるためアットホーム(株)にも保管されます。アットホーム(株)で保管された個人情報の取り扱いについては、【こちら】をご覧ください。
また、本画面でご記入いただいた個人情報は、お問い合わせ先の不動産会社でも保管します。 お問い合わせ先の不動産会社が保管する個人情報の取り扱いについては、不動産会社に直接お問い合わせください。
兵庫県知事免許(4)第11181号 |
|---|
- 交通:
- JR東海道本線/三ノ宮駅 徒歩18分
- 兵庫県神戸市中央区新港町8-2 新港貿易会館2-9
- TEL:
- 078-381-8108
- FAX:
- 078-381-8109
- 所属団体:
- (一社)兵庫県宅地建物取引業協会会員(公社)近畿地区不動産公正取引協議会加盟
取引態様:仲介  - 50019184
|
- スマートフォンで
この不動産会社を見る

|
- 提携サイト等より掲載されている物件情報につきましては、不動産会社詳細情報にリンクされていないものがあります。
- 物件に関するお問合せは、物件詳細ページの「情報提供会社」に表示されている不動産会社へ直接お願いいたします。
- 間取図は、現況を優先させていただきます。
- 映像は物件の一部を撮影したものです。物件の契約にあたっての最終判断はご自身の判断に基づいて行ってください。
- 仲介手数料について

アットホームは物件情報の適正化に努めております。
内容に誤りがある場合にはこちらへご連絡ください。