神奈川県鎌倉市大船2丁目(大船駅)の貸店舗:物件詳細
交通 所在地 |
駅徒歩 |
賃料 管理費等 |
敷金/保証金 礼金 |
使用部分面積 坪数/坪単価 |
物件種目 築年月 |
|
JR根岸線/大船
神奈川県鎌倉市大船2丁目
|
5分
|
82.5万円
33,000円
|
なし / 450万円
1ヶ月
|
182.00m²
55.05坪/1.4986万円
|
貸店舗・事務所
1984年8月(築41年10ヶ月)
|
|
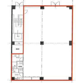
間取図
間口の広い路面店舗です。
|
外観
|
その他の画像
|
| 交通 | JR根岸線 大船駅 徒歩5分 |
| 所在地 |
神奈川県鎌倉市大船2丁目
|
| 物件種目 |
貸店舗・事務所 |
| 賃料 |
82.5万円 |
管理費等 |
33,000円 |
| 敷金 / 保証金 |
なし / 450万円 |
礼金 |
1ヶ月 |
| 敷引 |
- |
坪単価 |
1.4986万円 |
| 保証金償却 |
解約時10% |
権利金 |
- |
| 造作譲渡 |
- |
その他一時金 |
- |
| 維持費等 |
- |
保険等 |
要 |
| 使用部分面積 |
182.00m² |
坪数 |
55.05坪 |
| 築年月 |
1984年8月(築41年10ヶ月)
|
階建 / 階 |
4階建 / 1階 |
| 駐車場 |
- |
バイク置き場 |
- |
| 駐輪場 |
- |
土地面積 |
- |
| 接道状況 |
-
|
用途地域 |
2種住居 |
| 間取り |
- |
建物構造 |
RC |
| アピールポイント |
JR「大船」駅徒歩5分の路面店舗です。
クリニック、スクール系、サロン系、事務所などに適しています。軽飲食店もご相談ください。
内見をご希望の際は、最速で現地対応させて頂きます!
担当の携帯までお気軽にご一報ください。070-4810-7021後藤(365日対応中)
当社は横浜・鎌倉・湘南エリアを中心に、店舗物件を多数お取り扱いしている店舗専門の不動産会社です。
ご出店に向け、貸主との条件調整から契約〜内装工事〜開業まで誠心誠意サポート致します。
ご要望、ご質問など担当の携帯までお気軽にご一報ください。
070-4810-7021後藤(365日対応中) |
| 建物名・部屋番号 |
1階 |
| リフォーム履歴 |
- |
| リノベーション履歴 |
- |
| 特記事項 |
土日・祝日利用可、1フロア1テナント |
| 備考 |
賃貸保証等:加入要(USEN TRUST:初回保証委託料は月額費用の1ヶ月分、2年目以降は月額費用の10%)
管理形態/管理員の勤務形態:-/-
|
| エネルギー消費性能 |
- |
| 断熱性能 |
- |
| 目安光熱費 |
- |
| バス・トイレ |
専有部分にトイレあり |
| キッチン |
- |
| 設備・サービス |
空調機あり、排水設備あり
エアコン2台以上、都市ガス、動力あり |
| その他 |
- |
| 契約期間 |
10年 |
条件等 |
定期借家 |
| 引渡可能時期 |
即時 |
現況 |
空 |
| 仲介手数料 |
1ヶ月 |
|
|
| 更新料 |
- |
物件番号 |
6989333632 |
| 情報公開日 |
2026年2月3日 |
次回更新予定日 |
2026年5月22日 |
| ケータイ用バーコード |
- スマートフォンでこの物件を見る
- スマートフォンからもこの物件をご覧になれます。
|
※「-」と表示されている項目については、情報提供会社にご確認ください。
ここから簡単にお問い合わせをすることができます。
(SSLでの暗号化での送信を希望されるお客さまは
こちら
よりお問い合わせください)
お問い合わせを行う前に
「個人情報の取り扱いについて」を必ずお読みください。
「個人情報の取り扱いについて」に同意いただいた場合は「上記にご同意の上 確認画面へ進む」のボタンをクリックしてください。
個人情報の取り扱いについて
皆さまが送付された個人情報はアットホーム(株)のサーバを経由し、お問い合わせ先の不動産会社にメールまたはFAXにて転送されるためアットホーム(株)にも保管されます。アットホーム(株)で保管された個人情報の取り扱いについては、【こちら】をご覧ください。
また、本画面でご記入いただいた個人情報は、お問い合わせ先の不動産会社でも保管します。 お問い合わせ先の不動産会社が保管する個人情報の取り扱いについては、不動産会社に直接お問い合わせください。
神奈川県知事免許(1)第31982号 |
|---|
- 交通:
- 江ノ島電鉄線/鵠沼駅 徒歩1分
- 神奈川県藤沢市鵠沼藤が谷2丁目8-14
- TEL:
- 0466-53-9336
- FAX:
- 0466-53-9838
- 所属団体:
- (公社)全日本不動産協会会員(公社)首都圏不動産公正取引協議会加盟
取引態様:仲介  - 00275047
|
- スマートフォンで
この不動産会社を見る

|
- 提携サイト等より掲載されている物件情報につきましては、不動産会社詳細情報にリンクされていないものがあります。
- 物件に関するお問合せは、物件詳細ページの「情報提供会社」に表示されている不動産会社へ直接お願いいたします。
- 間取図は、現況を優先させていただきます。
- 映像は物件の一部を撮影したものです。物件の契約にあたっての最終判断はご自身の判断に基づいて行ってください。
- 仲介手数料について

アットホームは物件情報の適正化に努めております。
内容に誤りがある場合にはこちらへご連絡ください。