愛知県知多市にしの台4丁目(古見駅)の貸店舗:物件詳細
交通 所在地 |
駅徒歩 |
賃料 管理費等 |
敷金/保証金 礼金 |
使用部分面積 坪数/坪単価 |
物件種目 築年月 |
|
名鉄常滑線/古見
愛知県知多市にしの台4丁目
|
23分
|
19.25万円
なし
|
なし / 52.5万円
なし
|
99.10m²
29.97坪/0.6422万円
|
貸店舗
1991年10月(築34年6ヶ月)
|
|
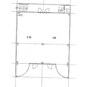
間取図
|
外観
|
<
その他の画像
>
|
| 交通 | 名鉄常滑線 古見駅 徒歩23分 |
|---|
| その他の交通 | 名鉄常滑線 朝倉駅 徒歩27分 |
| 所在地 |
愛知県知多市にしの台4丁目
|
| 物件種目 |
貸店舗 |
| 賃料 |
19.25万円 |
管理費等 |
なし |
| 敷金 / 保証金 |
なし / 52.5万円 |
礼金 |
なし |
| 敷引 |
- |
坪単価 |
0.6422万円 |
| 保証金償却 |
- |
権利金 |
- |
| 造作譲渡 |
- |
その他一時金 |
- |
| 維持費等 |
- |
保険等 |
- |
| 使用部分面積 |
99.10m² |
坪数 |
29.97坪 |
| 築年月 |
1991年10月(築34年6ヶ月)
|
階建 / 階 |
2階建 / 1階 |
| 駐車場 |
有 無料(空き4台) |
バイク置き場 |
- |
| 駐輪場 |
- |
土地面積 |
- |
| 接道状況 |
-
|
用途地域 |
- |
| 間取り |
- |
建物構造 |
鉄骨造 |
| アピールポイント |
テナント探しもニッショーへお任せください!
ニッショーは、愛知・岐阜・三重の東海3県に仲介専門の営業店舗を73店舗展開しています。
全店が直営店主体の営業体制であるため、どの店舗にご相談いただいても均一で
質の高いサービスをご提供できるのが強みです
多彩な事業用物件の取り扱い実績店舗やオフィス、大型ビル、倉庫、工場、借地まで
ニッショーは長年にわたり、多種多様な事業用賃貸物件を豊富に取り扱ってまいりました。
「希望の条件に合う物件が見つからない」とお悩みの方も、
地域に根差したネットワークを持つニッショーなら、最適な物件をご提案可能です
開業をトータルにサポート
物件探しだけでなく、事業を軌道に乗せるための周辺サポートも充実しています
業態に合わせた信頼できる内装業者のご紹介
事業用テナント保険のご案内
初めての開業で契約上の疑問へのアドバイスなど
賃貸物件の取り扱い50年以上の実績を誇る総合不動産業のニッショーが
お客様の事業開業におけるあらゆるお困りごとに全力でお応えします
テナント探しはお部屋探しと同様に、ぜひお近くのニッショーへご相談ください♪ |
| 建物名・部屋番号 |
1階 |
| リフォーム履歴 |
- |
| リノベーション履歴 |
- |
| 特記事項 |
居抜き、土日・祝日利用可、1フロア1テナント、駐車場3台分以上、角部屋、保証人不要 |
| 備考 |
賃貸保証等:加入要(全保連 初回時に総賃料1カ月 継続保証料17,500円/年)
管理形態/管理員の勤務形態:-/-
主要採光面:南向き
保証会社加入必要
|
| エネルギー消費性能 |
- |
| 断熱性能 |
- |
| 目安光熱費 |
- |
| バス・トイレ |
トイレ |
| キッチン |
- |
| 設備・サービス |
- |
| その他 |
- |
| 契約期間 |
2年 |
条件等 |
- |
| 引渡可能時期 |
即時 |
現況 |
空 |
| 仲介手数料 |
1ヶ月 |
|
|
| 更新料 |
なし |
物件番号 |
6989347469 |
| 情報公開日 |
2026年2月3日 |
次回更新予定日 |
2026年4月9日 |
| ケータイ用バーコード |
- スマートフォンでこの物件を見る
- スマートフォンからもこの物件をご覧になれます。
|
※「-」と表示されている項目については、情報提供会社にご確認ください。
ここから簡単にお問い合わせをすることができます。
(SSLでの暗号化での送信を希望されるお客さまは
こちら
よりお問い合わせください)
お問い合わせを行う前に
「個人情報の取り扱いについて」を必ずお読みください。
「個人情報の取り扱いについて」に同意いただいた場合は「上記にご同意の上 確認画面へ進む」のボタンをクリックしてください。
個人情報の取り扱いについて
皆さまが送付された個人情報はアットホーム(株)のサーバを経由し、お問い合わせ先の不動産会社にメールまたはFAXにて転送されるためアットホーム(株)にも保管されます。アットホーム(株)で保管された個人情報の取り扱いについては、【こちら】をご覧ください。
また、本画面でご記入いただいた個人情報は、お問い合わせ先の不動産会社でも保管します。 お問い合わせ先の不動産会社が保管する個人情報の取り扱いについては、不動産会社に直接お問い合わせください。
国土交通大臣免許(14)第2018号 |
|---|
- 交通:
- 名鉄常滑線/古見駅 徒歩13分
- 愛知県知多市新知東町1丁目1-7
- TEL:
- 0562-56-6635
- FAX:
- 0562-56-6671
取引態様:仲介  - 40401883
|
- スマートフォンで
この不動産会社を見る

|
- 提携サイト等より掲載されている物件情報につきましては、不動産会社詳細情報にリンクされていないものがあります。
- 物件に関するお問合せは、物件詳細ページの「情報提供会社」に表示されている不動産会社へ直接お願いいたします。
- 間取図は、現況を優先させていただきます。
- 映像は物件の一部を撮影したものです。物件の契約にあたっての最終判断はご自身の判断に基づいて行ってください。
- 仲介手数料について

アットホームは物件情報の適正化に努めております。
内容に誤りがある場合にはこちらへご連絡ください。