兵庫県尼崎市崇徳院2丁目(尼崎センタープール前駅)の貸店舗:物件詳細
交通 所在地 |
駅徒歩 |
賃料 管理費等 |
敷金/保証金 礼金 |
使用部分面積 坪数/坪単価 |
物件種目 築年月 |
|
阪神本線/尼崎センタープール前
兵庫県尼崎市崇徳院2丁目
|
10分
|
25万円
-
|
1ヶ月 / 1ヶ月
2ヶ月
|
161.70m²
48.91坪/0.5112万円
|
貸店舗(建物一括)
1968年5月(築57年11ヶ月)
|
|
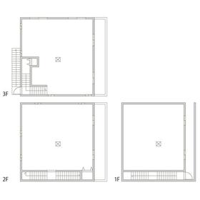
間取図
延床面積161.7平米1・2階を店舗、3階を住居など、用途に合わせた使い分けが可能です
|
外観
阪神電鉄本線「尼崎センタープール前」駅まで徒歩10分お買い物環境徒歩3分圏内で、大変生活しやすいエリアですよ
|
<
その他の画像
>
|
| 交通 | 阪神本線 尼崎センタープール前駅 徒歩10分 |
|---|
| その他の交通 | 阪神本線 出屋敷駅 徒歩16分 JR東海道本線 立花駅 徒歩23分 |
| 所在地 |
兵庫県尼崎市崇徳院2丁目
|
| 物件種目 |
貸店舗(建物一括) |
| 賃料 |
25万円 |
管理費等 |
- |
| 敷金 / 保証金 |
1ヶ月 / 1ヶ月 |
礼金 |
2ヶ月 |
| 敷引 |
- |
坪単価 |
0.5112万円 |
| 保証金償却 |
- |
権利金 |
- |
| 造作譲渡 |
- |
その他一時金 |
- |
| 維持費等 |
- |
保険等 |
- |
| 使用部分面積 |
161.70m² |
坪数 |
48.91坪 |
| 築年月 |
1968年5月(築57年11ヶ月)
|
階建 / 階 |
3階建 |
| 駐車場 |
無 |
バイク置き場 |
- |
| 駐輪場 |
- |
土地面積 |
- |
| 接道状況 |
-
|
用途地域 |
- |
| 間取り |
- |
建物構造 |
軽量鉄骨造 |
| アピールポイント |
~センチュリー21ニーズのおすすめポイント~
・業種やレイアウトに縛られず、ゼロから空間づくりができます。
・コンビニやスーパー、ドラッグストアが徒歩3分圏内
・小中学校徒歩6分圏内 |
| 建物名・部屋番号 |
|
| リフォーム履歴 |
- |
| リノベーション履歴 |
- |
| 特記事項 |
スケルトン |
| 備考 |
管理形態/管理員の勤務形態:-/-
|
| エネルギー消費性能 |
- |
| 断熱性能 |
- |
| 目安光熱費 |
- |
| バス・トイレ |
- |
| キッチン |
- |
| 設備・サービス |
収納スペース |
| その他 |
- |
| 契約期間 |
2年 |
条件等 |
- |
| 引渡可能時期 |
相談 |
現況 |
空 |
| 更新料 |
- |
物件番号 |
6989467946 |
| 情報公開日 |
2026年2月20日 |
次回更新予定日 |
2026年4月3日 |
| ケータイ用バーコード |
- スマートフォンでこの物件を見る
- スマートフォンからもこの物件をご覧になれます。
|
※「-」と表示されている項目については、情報提供会社にご確認ください。
| 周辺施設 |
尼崎市立成徳小学校 |
| 距離 |
400m |
写真を見る |
| 周辺施設 |
尼崎市立大庄中学校 |
| 距離 |
480m |
写真を見る |
| 周辺施設 |
ローソン尼崎大庄川田町店 |
| 距離 |
160m |
写真を見る |
| 周辺施設 |
ドラッグユタカ尼崎大庄川田店 |
| 距離 |
160m |
写真を見る |
| 周辺施設 |
スーパーマルハチ大庄店 |
| 距離 |
240m |
写真を見る |
| 周辺施設 |
明倫ファミリークリニック |
| 距離 |
880m |
写真を見る |
ここから簡単にお問い合わせをすることができます。
(SSLでの暗号化での送信を希望されるお客さまは
こちら
よりお問い合わせください)
お問い合わせを行う前に
「個人情報の取り扱いについて」を必ずお読みください。
「個人情報の取り扱いについて」に同意いただいた場合は「上記にご同意の上 確認画面へ進む」のボタンをクリックしてください。
個人情報の取り扱いについて
皆さまが送付された個人情報はアットホーム(株)のサーバを経由し、お問い合わせ先の不動産会社にメールまたはFAXにて転送されるためアットホーム(株)にも保管されます。アットホーム(株)で保管された個人情報の取り扱いについては、【こちら】をご覧ください。
また、本画面でご記入いただいた個人情報は、お問い合わせ先の不動産会社でも保管します。 お問い合わせ先の不動産会社が保管する個人情報の取り扱いについては、不動産会社に直接お問い合わせください。
大阪府知事免許(2)第60677号 |
|---|
- 交通:
- JR東海道本線/東淀川駅 徒歩1分
- 大阪府大阪市東淀川区西淡路1丁目18-8 サンロードⅡ新大阪1F
- TEL:
- 06-6320-1919
- 所属団体:
- (公社)全日本不動産協会会員(公社)近畿地区不動産公正取引協議会加盟
取引態様:仲介  - 50105101
|
- スマートフォンで
この不動産会社を見る

|
- 提携サイト等より掲載されている物件情報につきましては、不動産会社詳細情報にリンクされていないものがあります。
- 物件に関するお問合せは、物件詳細ページの「情報提供会社」に表示されている不動産会社へ直接お願いいたします。
- 間取図は、現況を優先させていただきます。
- 映像は物件の一部を撮影したものです。物件の契約にあたっての最終判断はご自身の判断に基づいて行ってください。
- 仲介手数料について

アットホームは物件情報の適正化に努めております。
内容に誤りがある場合にはこちらへご連絡ください。