不動産 賃貸 マンション等の住宅情報:埼玉住まい情報


東京都北区赤羽2丁目(赤羽駅)の貸店舗:物件詳細

  • 物件詳細
  • 情報の見方
  • 印刷用画面
交通
所在地
駅徒歩 賃料
管理費等
敷金/保証金
礼金
使用部分面積
坪数/坪単価
物件種目
築年月

JR京浜東北線/赤羽

東京都北区赤羽2丁目

5分

31.68万円

16,500円

なし / 10ヶ月

2ヶ月

58.18m²

17.59坪/1.8001万円

貸店舗

1974年3月(築52年1ヶ月)

おすすめコメント

★バー居抜き★蕎麦屋の出店履歴有!バー以外の業態も歓迎!東本通り沿い!専用階段で1階に看板出せます!

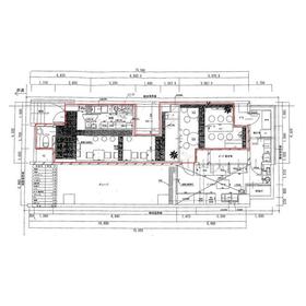
間取図

間取図

その他の画像
    • とりあえず保存
    • お問い合わせ
    交通

    JR京浜東北線 赤羽駅 徒歩5分

    その他の交通

    JR埼京線 赤羽駅 徒歩5分

    東京メトロ南北線 赤羽岩淵駅 徒歩3分

    所在地 東京都北区赤羽2丁目
    物件種目 貸店舗
    賃料 31.68万円 管理費等 16,500円
    敷金 / 保証金 なし / 10ヶ月 礼金 2ヶ月
    敷引 坪単価 1.8001万円
    保証金償却 解約時3ヶ月 権利金
    造作譲渡 150万円 その他一時金
    維持費等 保険等 不要
    使用部分面積 58.18m² 坪数 17.59坪
    築年月 1974年3月(築52年1ヶ月) 階建 / 階 地上7階地下1階建 / 地下1階
    駐車場 バイク置き場
    駐輪場 土地面積
    接道状況 用途地域
    間取り 建物構造 SRC
    アピールポイント 【インフラ】電灯:有    動力:有    ガス:6号メーター(最大10号メーター設置可)    水道:20mm
    【厨房排気】無
    【空調】有 / 業務用
    【グリスト】無
    【席数】カウンター7席 テーブル27席 
    【トイレ】有 /洋式
    【営業年数】約7年
    【不可業態】無し
    【営業時間制限】無し  
    【間口】約1.6m
    【天高】約2.1m
    【引渡状態】居抜き
    ※記載の店舗情報は正確性を保証するものではございません。

    定期借家契約:8年 (契約満了日:2035年2月28日)
    中途礼金:契約開始日から2年毎に賃料の1.5ヶ月分

    造作譲渡手数料:売却金額×10%+10万円(別途消費税)

    指定火災保険:加入必須(三井住友海上火災保険)
    指定賃貸保証:加入必須(初回保証料100%、年間更新料10%)
    建物名・部屋番号 山陽ビル
    リフォーム履歴
    リノベーション履歴
    特記事項 居抜き、飲食店可
    備考
    賃貸保証等:加入要((指定保証会社有))
    管理形態/管理員の勤務形態:-/-
    ・中途礼金:契約開始日から2年毎に賃料の1.5ヶ月分
    ・造作譲渡手数料:売却金額×10%+10万円(別途消費税)
    ・指定火災保険:加入必須(三井住友海上火災保険)
    ・指定賃貸保証:加入必須(初回保証料100%、年間更新料10%) 
    エネルギー消費性能
    断熱性能
    目安光熱費
    バス・トイレ
    キッチン
    設備・サービス
    その他
    契約期間 2035年2月28日まで 条件等 定期借家定期借家
    引渡可能時期 相談 現況 使用中
    更新料 物件番号 6989681331
    情報公開日 2026年2月27日 次回更新予定日 2026年3月26日
    ケータイ用バーコード

    QRコード

    スマートフォンでこの物件を見る
    スマートフォンからもこの物件をご覧になれます。
    ※「-」と表示されている項目については、情報提供会社にご確認ください。

    この物件の周辺情報

    周辺施設 キッチンオリジン赤羽岩淵店
    距離 69m
    周辺施設 麺高はし
    距離 236m
    周辺施設 CoCo壱番屋赤羽LaLaガーデン店
    距離 254m
    周辺施設 リンガーハット赤羽店
    距離 253m
    周辺施設 バーガーキング赤羽東口店
    距離 254m

    クイックお問い合わせ

    ここから簡単にお問い合わせをすることができます。
    (SSLでの暗号化での送信を希望されるお客さまは こちら よりお問い合わせください)

    お問い合わせ内容(必須)
    物件のお問い合わせ理由(必須)
    お名前・ご担当者様名(必須) 姓  名 
    メールアドレス(必須)
    ※携帯電話のメールアドレスをご入力される方はこちらをご確認ください
    電話番号(必須)
    - -

    ※入力いただいた電話番号へSMSまたは音声でパスワードをご連絡します。

    携帯電話の番号をご入力の方へ

    携帯電話の番号をご入力の方へ
    確認画面にて送信ボタンをクリックするとSMSが携帯電話に届きます。
    そのSMSに記載のパスワード(認証番号)を入力し、お問い合わせを完了してください。
    尚、SMSの送信者番号は 0005 202 760 となります。
    これはアットホームの固定番号です。

    備考欄 希望条件、物件案内希望日、質問などがございましたらご記入ください。
    お問い合わせを行う前に「個人情報の取り扱いについて」を必ずお読みください。
    「個人情報の取り扱いについて」に同意いただいた場合は「上記にご同意の上 確認画面へ進む」のボタンをクリックしてください。

    個人情報の取り扱いについて

    皆さまが送付された個人情報はアットホーム(株)のサーバを経由し、お問い合わせ先の不動産会社にメールまたはFAXにて転送されるためアットホーム(株)にも保管されます。アットホーム(株)で保管された個人情報の取り扱いについては、【こちら】をご覧ください。
    また、本画面でご記入いただいた個人情報は、お問い合わせ先の不動産会社でも保管します。 お問い合わせ先の不動産会社が保管する個人情報の取り扱いについては、不動産会社に直接お問い合わせください。

    情報提供会社

    情報提供会社

    レスタンダード(株)

    東京都知事免許(3)第92957号

    交通:
    JR山手線/渋谷駅 徒歩5分
    東京都渋谷区桜丘町4-23 渋谷桜丘ビル5階
    TEL:
    03-5468-3550
    FAX:
    03-5468-3553
    所属団体:
    (公社)東京都宅地建物取引業協会会員
    (公社)首都圏不動産公正取引協議会加盟

    取引態様:代理

    • 会社情報
    • 00105020
    スマートフォンで
    この不動産会社を見る
    QRコード
    • とりあえず保存
    • お問い合わせ
    • 提携サイト等より掲載されている物件情報につきましては、不動産会社詳細情報にリンクされていないものがあります。
    • 物件に関するお問合せは、物件詳細ページの「情報提供会社」に表示されている不動産会社へ直接お願いいたします。
    • 間取図は、現況を優先させていただきます。
    • 映像は物件の一部を撮影したものです。物件の契約にあたっての最終判断はご自身の判断に基づいて行ってください。
    • 仲介手数料について仲介手数料

    アットホームは物件情報の適正化に努めております。 内容に誤りがある場合にはこちらへご連絡ください。

    【埼玉住まい情報】では、日本全国の物件から賃貸マンションや賃貸アパート・賃貸一戸建て等の賃貸住宅情報、新築マンション・分譲マンションや中古マンション等の売買マンション情報、新築一戸建てや中古一戸建てなどの戸建住宅、 土地など、総合的な不動産住宅情報検索サービスを提供致します。
    【埼玉住まい情報】から、選りすぐりの不動産物件を探してみましょう。

    【免責事項】
    このコーナーの運営はアットホーム株式会社(https://www.athome.co.jp/)が行っています。
    このコーナーに掲載している物件情報は、「アットホーム不動産情報ネットワーク」に加盟する不動産会社等(情報提供元)から提供されています。信頼性の高い情報提供が行えるよう、最大限の努力をしておりますが、その内容を保証するものではありません。 利用者のみなさまと各情報提供元との取引に起因する損害および情報が掲載されたことに起因する損害等については、株式会社イーシティ埼玉、およびアットホームは一切責任を負いません。
    各物件情報の内容や画像等はすべて現況を優先させていただきます。
    お取引等(お取引の準備、資金調達等を含みます)の際には、内容や契約条件等について、各情報提供元より十分な説明を受け、ご自身でご確認の上、判断してください。
    このコーナーへの物件情報のご掲載、その他不動産業務ソリューション等についての不動産会社様のお問合せはこちらからお願いいたします。

    物件画像: