兵庫県神戸市東灘区田中町2丁目(摂津本山駅)の貸店舗:物件詳細
交通 所在地 |
駅徒歩 |
賃料 管理費等 |
敷金/保証金 礼金 |
使用部分面積 坪数/坪単価 |
物件種目 築年月 |
|
JR東海道本線/摂津本山
兵庫県神戸市東灘区田中町2丁目
|
8分
|
11.605万円
15,950円
|
なし / なし
26.4万円
|
59.94m²
18.13坪/0.6401万円
|
貸店舗・事務所
1988年5月(築37年11ヶ月)
|
|
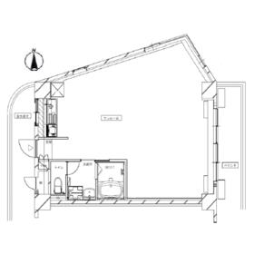
間取図
貸店舗・事務所・SOHO(住居兼・事務所)相談可能♪
|
外観
国道2号線に面しております
|
<
その他の画像
>
|
| 交通 | JR東海道本線 摂津本山駅 徒歩8分 |
|---|
| その他の交通 | 阪急神戸線 岡本駅 徒歩13分 阪神本線 青木駅 徒歩15分 |
| 所在地 |
兵庫県神戸市東灘区田中町2丁目
|
| 物件種目 |
貸店舗・事務所 |
| 賃料 |
11.605万円 |
管理費等 |
15,950円 |
| 敷金 / 保証金 |
なし / なし |
礼金 |
26.4万円 |
| 敷引 |
- |
坪単価 |
0.6401万円 |
| 保証金償却 |
- |
権利金 |
- |
| 造作譲渡 |
- |
その他一時金 |
- |
| 維持費等 |
- |
保険等 |
要 火災 |
| 使用部分面積 |
59.94m² |
坪数 |
18.13坪 |
| 築年月 |
1988年5月(築37年11ヶ月)
|
階建 / 階 |
10階建 / 4階 |
| 駐車場 |
空無 |
バイク置き場 |
- |
| 駐輪場 |
有 |
土地面積 |
- |
| 接道状況 |
-
|
用途地域 |
近隣商業 |
| 間取り |
ワンルーム |
建物構造 |
RC |
| アピールポイント |
★貸店舗・事務所★ネイル・おうちエステ・小規模サロンにおすすすめSOHO(住居兼事務所)使用も相談可能★業種はお気軽にご相談ください★
※本物件所在地の用途地域(近隣商業地域)による用途制限の範囲内にてご検討願います。
※許認可や消防等による物件への制限等が発生する業種については、あらかじめ関係各所へご確認の上ご検討願います。
※本物件に対するご質問やご要望、その他の取り決め事項等は、都度事前に管理会社への確認が必要となります。まずはお気軽にご相談ください。
※本件賃貸募集ポータルサイトに記載の内容は、管理会社発表の内容に基づく参考資料となります。参考資料と現況が相違する場合、現況を優先いたします。
※記載の賃料・共益費・敷金・礼金等には消費税10%分が含まれております。 |
| 建物名・部屋番号 |
ステラ田中町 403 |
| リフォーム履歴 |
- |
| リノベーション履歴 |
- |
| 特記事項 |
土曜日利用可、土日・祝日利用可、国道沿いに面する |
| 備考 |
賃貸保証等:加入要(貸主指定 初回保証料・更新料は管理会社への要確認事項となります)
管理形態/管理員の勤務形態:-/-
主要採光面:東向き
★貸店舗・事務所★ネイル・おうちエステ・小規模サロンにおすすすめSOHO(住居兼事務所)使用も相談可能★業種はお気軽にご相談ください★
※本物件所在地の用途地域(近隣商業地域)による用途制限の範囲内にてご検討願います。
※許認可や消防等による物件への制限等が発生する業種については、あらかじめ関係各所へご確認の上ご検討願います。
※本物件に対するご質問やご要望、その他の取り決め事項等は、都度事前に管理会社への確認が必要となります。まずはお気軽にご相談ください。
※本件賃貸募集ポータルサイトに記載の内容は、管理会社発表の内容に基づく参考資料となります。参考資料と現況が相違する場合、現況を優先いたします。
※記載の賃料・共益費・敷金・礼金等には消費税10%分が含まれております。
|
| エネルギー消費性能 |
- |
| 断熱性能 |
- |
| 目安光熱費 |
- |
| バス・トイレ |
バス・トイレ別、シャワー、専有部分にトイレあり |
| キッチン |
- |
| 設備・サービス |
収納スペース、室内洗濯機置場、洗濯機置場、給湯、インターネット対応 |
| その他 |
エレベーター |
| 契約期間 |
5年 |
条件等 |
- |
| 引渡可能時期 |
相談 |
現況 |
空 |
| 仲介手数料 |
1ヶ月 |
|
|
| 更新料 |
- |
物件番号 |
6989722708 |
| 情報公開日 |
2026年3月2日 |
次回更新予定日 |
2026年3月30日 |
| ケータイ用バーコード |
- スマートフォンでこの物件を見る
- スマートフォンからもこの物件をご覧になれます。
|
※「-」と表示されている項目については、情報提供会社にご確認ください。
| 周辺施設 |
食品館アプロ甲南店 |
| 距離 |
323m |
写真を見る |
| 周辺施設 |
ローソン神戸田中町二丁目店 |
| 距離 |
285m |
写真を見る |
| 周辺施設 |
セブンイレブン神戸本山駅南店 |
| 距離 |
322m |
写真を見る |
| 周辺施設 |
医療法人明倫会宮地病院 |
| 距離 |
655m |
写真を見る |
| 周辺施設 |
神戸甲南郵便局 |
| 距離 |
242m |
写真を見る |
| 周辺施設 |
神戸信用金庫東灘支店 |
| 距離 |
138m |
写真を見る |
| 周辺施設 |
三井住友銀行甲南支店 |
| 距離 |
216m |
写真を見る |
ここから簡単にお問い合わせをすることができます。
(SSLでの暗号化での送信を希望されるお客さまは
こちら
よりお問い合わせください)
お問い合わせを行う前に
「個人情報の取り扱いについて」を必ずお読みください。
「個人情報の取り扱いについて」に同意いただいた場合は「上記にご同意の上 確認画面へ進む」のボタンをクリックしてください。
個人情報の取り扱いについて
皆さまが送付された個人情報はアットホーム(株)のサーバを経由し、お問い合わせ先の不動産会社にメールまたはFAXにて転送されるためアットホーム(株)にも保管されます。アットホーム(株)で保管された個人情報の取り扱いについては、【こちら】をご覧ください。
また、本画面でご記入いただいた個人情報は、お問い合わせ先の不動産会社でも保管します。 お問い合わせ先の不動産会社が保管する個人情報の取り扱いについては、不動産会社に直接お問い合わせください。
兵庫県知事免許(2)第12210号 |
|---|
- 交通:
- 阪神本線/御影駅 徒歩1分
- 兵庫県神戸市東灘区御影本町4丁目7-15 駅前協栄ビル2階
- TEL:
- 078-821-1055
- FAX:
- 078-821-1066
- 所属団体:
- (公社)全日本不動産協会会員(公社)近畿地区不動産公正取引協議会加盟
取引態様:仲介  - 50105179
|
- スマートフォンで
この不動産会社を見る

|
- 提携サイト等より掲載されている物件情報につきましては、不動産会社詳細情報にリンクされていないものがあります。
- 物件に関するお問合せは、物件詳細ページの「情報提供会社」に表示されている不動産会社へ直接お願いいたします。
- 間取図は、現況を優先させていただきます。
- 映像は物件の一部を撮影したものです。物件の契約にあたっての最終判断はご自身の判断に基づいて行ってください。
- 仲介手数料について

アットホームは物件情報の適正化に努めております。
内容に誤りがある場合にはこちらへご連絡ください。