不動産 賃貸 マンション等の住宅情報:埼玉住まい情報


鹿児島県鹿児島市玉里団地3丁目の貸店舗:物件詳細

  • 物件詳細
  • 情報の見方
  • 印刷用画面
交通
所在地
駅徒歩 賃料
管理費等
敷金/保証金
礼金
使用部分面積
坪数/坪単価
物件種目
築年月

【バス】玉里3丁目 停歩1分

鹿児島県鹿児島市玉里団地3丁目


25万円

なし

3ヶ月 / なし

なし

123.49m²

37.35坪/0.6693万円

貸店舗

2003年1月(築23年3ヶ月)

おすすめコメント

定年退職後のビジネスに最適コンビニの経営をそのまま引き継げます立地は玉里団地のメインストリートです坂元小学校、坂元中学校も近いです近隣に大型集合住宅有り

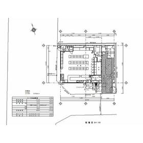
間取図

間取図

平面図。店舗面積37.35坪

外観

外観

メイン道路からの外観

その他の画像
  • 周辺環境
  • 周辺環境
  • 周辺環境
  • 周辺環境
  • 周辺環境
  • 周辺環境
    • とりあえず保存
    • お問い合わせ
    交通

    【バス】 玉里3丁目 停歩1分

    所在地 鹿児島県鹿児島市玉里団地3丁目
    物件種目 貸店舗
    賃料 25万円 管理費等 なし
    敷金 / 保証金 3ヶ月 / なし 礼金 なし
    敷引 坪単価 0.6693万円
    保証金償却 権利金
    造作譲渡 造作譲渡無償 その他一時金 コンビニ運営の保証金(返還あり):4,200,000円
    維持費等 保険等
    使用部分面積 123.49m² 坪数 37.35坪
    築年月 2003年1月(築23年3ヶ月) 階建 / 階 3階建 / 1階
    駐車場 バイク置き場
    駐輪場 土地面積 231.45m²(公簿)
    接道状況 西 24.0m 公道 接面10.5m ・ 南 6.0m 公道 接面13.0m ・ 二方道路 用途地域 商業地域
    間取り 建物構造 RC
    アピールポイント 定年退職後のビジネスに最適
    コンビニの経営をそのまま引き継げます
    立地は玉里団地のメインストリートです
    坂元小学校、坂元中学校も近いです
    近隣に大型集合住宅有り
    建物名・部屋番号 ファミリーマート玉里団地店後継者募集
    リフォーム履歴
    リノベーション履歴
    特記事項 駐車場2台分
    備考
    管理形態/管理員の勤務形態:-/-
    主要採光面:南西向き
    定年退職後のビジネスに最適
    コンビニの経営をそのまま引き継げます
    立地は玉里団地のメインストリートです
    坂元小学校、坂元中学校も近いです
    近隣に大型集合住宅有り
    エネルギー消費性能
    断熱性能
    目安光熱費
    バス・トイレ トイレ
    キッチン
    設備・サービス 天井高3m、空調機あり、換気口あり
    エアコン2台以上、防犯カメラ、火災警報器(報知機)、インターネット対応、光ファイバー
    その他
    契約期間 20年 条件等
    引渡可能時期 指定有り2026年4月1日 現況 使用中
    仲介手数料 50万円    
    更新料 物件番号 6989784371
    情報公開日 2026年3月6日 次回更新予定日 2026年4月3日
    ケータイ用バーコード

    QRコード

    スマートフォンでこの物件を見る
    スマートフォンからもこの物件をご覧になれます。
    ※「-」と表示されている項目については、情報提供会社にご確認ください。

    クイックお問い合わせ

    ここから簡単にお問い合わせをすることができます。
    (SSLでの暗号化での送信を希望されるお客さまは こちら よりお問い合わせください)

    お問い合わせ内容(必須)
    物件のお問い合わせ理由(必須)
    お名前・ご担当者様名(必須) 姓  名 
    メールアドレス(必須)
    ※携帯電話のメールアドレスをご入力される方はこちらをご確認ください
    電話番号(必須)
    - -

    ※入力いただいた電話番号へSMSまたは音声でパスワードをご連絡します。

    携帯電話の番号をご入力の方へ

    携帯電話の番号をご入力の方へ
    確認画面にて送信ボタンをクリックするとSMSが携帯電話に届きます。
    そのSMSに記載のパスワード(認証番号)を入力し、お問い合わせを完了してください。
    尚、SMSの送信者番号は 0005 202 760 となります。
    これはアットホームの固定番号です。

    備考欄 希望条件、物件案内希望日、質問などがございましたらご記入ください。
    お問い合わせを行う前に「個人情報の取り扱いについて」を必ずお読みください。
    「個人情報の取り扱いについて」に同意いただいた場合は「上記にご同意の上 確認画面へ進む」のボタンをクリックしてください。

    個人情報の取り扱いについて

    皆さまが送付された個人情報はアットホーム(株)のサーバを経由し、お問い合わせ先の不動産会社にメールまたはFAXにて転送されるためアットホーム(株)にも保管されます。アットホーム(株)で保管された個人情報の取り扱いについては、【こちら】をご覧ください。
    また、本画面でご記入いただいた個人情報は、お問い合わせ先の不動産会社でも保管します。 お問い合わせ先の不動産会社が保管する個人情報の取り扱いについては、不動産会社に直接お問い合わせください。

    情報提供会社

    情報提供会社

    リード建築設計(株)

    鹿児島県知事免許(2)第6235号

    交通:
    鹿児島市電谷山線/新屋敷駅 徒歩5分 【バス】5分 新屋敷 停歩2分
    鹿児島県鹿児島市新屋敷町4-27 ビッグバーンズマンション新屋敷501
    TEL:
    099-213-9393
    FAX:
    099-218-5858
    所属団体:
    (公社)鹿児島県宅地建物取引業協会会員
    不動産公正取引協議会加盟

    取引態様:仲介

    • 会社情報
    • 80504194
    スマートフォンで
    この不動産会社を見る
    QRコード
    • とりあえず保存
    • お問い合わせ
    • 提携サイト等より掲載されている物件情報につきましては、不動産会社詳細情報にリンクされていないものがあります。
    • 物件に関するお問合せは、物件詳細ページの「情報提供会社」に表示されている不動産会社へ直接お願いいたします。
    • 間取図は、現況を優先させていただきます。
    • 映像は物件の一部を撮影したものです。物件の契約にあたっての最終判断はご自身の判断に基づいて行ってください。
    • 仲介手数料について仲介手数料

    アットホームは物件情報の適正化に努めております。 内容に誤りがある場合にはこちらへご連絡ください。

    【埼玉住まい情報】では、日本全国の物件から賃貸マンションや賃貸アパート・賃貸一戸建て等の賃貸住宅情報、新築マンション・分譲マンションや中古マンション等の売買マンション情報、新築一戸建てや中古一戸建てなどの戸建住宅、 土地など、総合的な不動産住宅情報検索サービスを提供致します。
    【埼玉住まい情報】から、選りすぐりの不動産物件を探してみましょう。

    【免責事項】
    このコーナーの運営はアットホーム株式会社(https://www.athome.co.jp/)が行っています。
    このコーナーに掲載している物件情報は、「アットホーム不動産情報ネットワーク」に加盟する不動産会社等(情報提供元)から提供されています。信頼性の高い情報提供が行えるよう、最大限の努力をしておりますが、その内容を保証するものではありません。 利用者のみなさまと各情報提供元との取引に起因する損害および情報が掲載されたことに起因する損害等については、株式会社イーシティ埼玉、およびアットホームは一切責任を負いません。
    各物件情報の内容や画像等はすべて現況を優先させていただきます。
    お取引等(お取引の準備、資金調達等を含みます)の際には、内容や契約条件等について、各情報提供元より十分な説明を受け、ご自身でご確認の上、判断してください。
    このコーナーへの物件情報のご掲載、その他不動産業務ソリューション等についての不動産会社様のお問合せはこちらからお願いいたします。

    物件画像: