福岡県北九州市八幡東区桃園2丁目(八幡駅)の貸店舗:物件詳細
交通 所在地 |
駅徒歩 |
賃料 管理費等 |
敷金/保証金 礼金 |
使用部分面積 坪数/坪単価 |
物件種目 築年月 |
|
JR鹿児島本線/八幡
福岡県北九州市八幡東区桃園2丁目
|
17分
|
18.084万円
なし
|
なし / なし
なし
|
90.58m²
27.40坪/0.66万円
|
貸店舗
1995年11月(築30年7ヶ月)
|
| 交通 | JR鹿児島本線 八幡駅 徒歩17分 |
|---|
| その他の交通 | 【バス】 桃園 停歩1分 |
| 所在地 |
福岡県北九州市八幡東区桃園2丁目
|
| 物件種目 |
貸店舗 |
| 賃料 |
18.084万円 |
管理費等 |
なし |
| 敷金 / 保証金 |
なし / なし |
礼金 |
なし |
| 敷引 |
- |
坪単価 |
0.66万円 |
| 保証金償却 |
- |
権利金 |
- |
| 造作譲渡 |
- |
その他一時金 |
なし |
| 維持費等 |
- |
保険等 |
要 施設管理者賠償責任 |
| 使用部分面積 |
90.58m² |
坪数 |
27.40坪 |
| 築年月 |
1995年11月(築30年7ヶ月)
|
階建 / 階 |
6階建 / 1階 |
| 駐車場 |
有 無料 ビル1階に共用駐車場あり |
バイク置き場 |
有 無料 |
| 駐輪場 |
有 無料 |
土地面積 |
- |
| 接道状況 |
-
|
用途地域 |
- |
| 間取り |
- |
建物構造 |
鉄骨造 |
| 建物名・部屋番号 |
桃園複合ビル |
| リフォーム履歴 |
- |
| リノベーション履歴 |
- |
| 特記事項 |
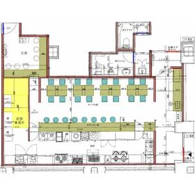
居抜き、24時間利用可、土曜日利用可、土日・祝日利用可、飲食店可、国道沿いに面する |
| 備考 |
賃貸保証等:加入要(貸主指定の保証会社あり)
管理形態/管理員の勤務形態:-/-
■定期借家契約。
■現状飲食店(うどん店)の居抜き状態でお貸しできます。
■備え付けの設備什器類やカウンター、テーブル等は無償で貸与いたします。
■その他の業種も改装することで検討可能です。
■飲食店に限らず、物販店や美容室などの異業種店舗、また事務所使用も大歓迎です!
|
| エネルギー消費性能 |
- |
| 断熱性能 |
- |
| 目安光熱費 |
- |
| バス・トイレ |
- |
| キッチン |
- |
| 設備・サービス |
- |
| その他 |
- |
| 契約期間 |
3年 |
条件等 |
定期借家 |
| 引渡可能時期 |
2026年10月上旬予定 |
現況 |
使用中 |
| 適格請求書発行 |
可
|
| 更新料 |
- |
物件番号 |
6989796426 |
| 情報公開日 |
2026年3月6日 |
次回更新予定日 |
2026年5月18日 |
| ケータイ用バーコード |
- スマートフォンでこの物件を見る
- スマートフォンからもこの物件をご覧になれます。
|
※「-」と表示されている項目については、情報提供会社にご確認ください。
ここから簡単にお問い合わせをすることができます。
(SSLでの暗号化での送信を希望されるお客さまは
こちら
よりお問い合わせください)
お問い合わせを行う前に
「個人情報の取り扱いについて」を必ずお読みください。
「個人情報の取り扱いについて」に同意いただいた場合は「上記にご同意の上 確認画面へ進む」のボタンをクリックしてください。
個人情報の取り扱いについて
皆さまが送付された個人情報はアットホーム(株)のサーバを経由し、お問い合わせ先の不動産会社にメールまたはFAXにて転送されるためアットホーム(株)にも保管されます。アットホーム(株)で保管された個人情報の取り扱いについては、【こちら】をご覧ください。
また、本画面でご記入いただいた個人情報は、お問い合わせ先の不動産会社でも保管します。 お問い合わせ先の不動産会社が保管する個人情報の取り扱いについては、不動産会社に直接お問い合わせください。
福岡県知事免許(3)第18050号 |
|---|
- 交通:
- JR鹿児島本線/小倉駅 徒歩7分
- 福岡県北九州市小倉北区堺町1丁目1-1 JTB小倉ビル1F
- TEL:
- 093-482-2125
- FAX:
- 093-482-2126
- 所属団体:
- (公社)福岡県宅地建物取引業協会会員(一社)九州不動産公正取引協議会加盟
取引態様:仲介  - 80503708
|
- スマートフォンで
この不動産会社を見る

|
- 提携サイト等より掲載されている物件情報につきましては、不動産会社詳細情報にリンクされていないものがあります。
- 物件に関するお問合せは、物件詳細ページの「情報提供会社」に表示されている不動産会社へ直接お願いいたします。
- 間取図は、現況を優先させていただきます。
- 映像は物件の一部を撮影したものです。物件の契約にあたっての最終判断はご自身の判断に基づいて行ってください。
- 仲介手数料について

アットホームは物件情報の適正化に努めております。
内容に誤りがある場合にはこちらへご連絡ください。