東京都千代田区神田佐久間町3丁目(秋葉原駅)の貸店舗:物件詳細
交通 所在地 |
駅徒歩 |
賃料 管理費等 |
敷金/保証金 礼金 |
使用部分面積 坪数/坪単価 |
物件種目 築年月 |
|
JR山手線/秋葉原
東京都千代田区神田佐久間町3丁目
|
3分
|
92.32万円
なし
|
6ヶ月 / なし
なし
|
94.05m²
28.44坪/3.245万円
|
貸店舗・事務所
2025年7月(新築)
|
|
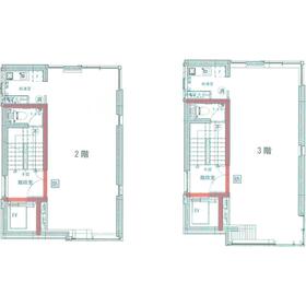
間取図
|
外観
|
<
その他の画像
>
|
| 交通 | JR山手線 秋葉原駅 徒歩3分 |
|---|
| その他の交通 | 東京メトロ日比谷線 秋葉原駅 徒歩2分 都営新宿線 岩本町駅 徒歩4分 |
| 所在地 |
東京都千代田区神田佐久間町3丁目
|
| 物件種目 |
貸店舗・事務所 |
| 賃料 |
92.32万円 |
管理費等 |
なし |
| 敷金 / 保証金 |
6ヶ月 / なし |
礼金 |
なし |
| 敷引 |
- |
坪単価 |
3.245万円 |
| 保証金償却 |
解約時2ヶ月 |
権利金 |
- |
| 造作譲渡 |
- |
その他一時金 |
- |
| 維持費等 |
- |
保険等 |
要 |
| 使用部分面積 |
94.05m² |
坪数 |
28.44坪 |
| 築年月 |
2025年7月(新築)
|
階建 / 階 |
5階建 / 2階~3階部分 |
| 駐車場 |
無 |
バイク置き場 |
無 |
| 駐輪場 |
無 |
土地面積 |
- |
| 接道状況 |
-
|
用途地域 |
- |
| 間取り |
- |
建物構造 |
RC |
| アピールポイント |
・2026年4月末迄の契約締結に限りフリーレント1ヶ月可能です!!・秋葉原駅近くのお洒落な新築デザイナーズ物件!!共用部に各階男女別トイレです!!セキュリティ完備!!各階天井が高く開放感があります!!前面道路が広いです!!・2階45.85㎡(13.87坪)と3階48.20㎡(14.58坪)で一括貸しでも分割貸しでもどちらでも可能です。・業種等ご相談くださいませ。 |
| 建物名・部屋番号 |
Sobe.Japan.BLD(ソベジャパンビル) 2階~3階 |
| リフォーム履歴 |
- |
| リノベーション履歴 |
- |
| 特記事項 |
24時間利用可、土日・祝日利用可、OAフロア、飲食店不可、1フロア1テナント、24時間セキュリティー、天井高2.5M以上 |
| 備考 |
賃貸保証等:加入要(保証料:総家賃の1ヶ月分)
管理形態/管理員の勤務形態:-/-
・2026年4月末迄の契約締結に限りフリーレント1ヶ月可能です!!・秋葉原駅近くのお洒落な新築デザイナーズ物件!!共用部に各階男女別トイレです!!セキュリティ完備!!各階天井が高く開放感があります!!前面道路が広いです!!・2階45.85㎡(13.87坪)と3階48.20㎡(14.58坪)で一括貸しでも分割貸しでもどちらでも可能です。・業種等ご相談くださいませ。
|
| エネルギー消費性能 |
- |
| 断熱性能 |
- |
| 目安光熱費 |
- |
| バス・トイレ |
共用部分に男女別トイレあり |
| キッチン |
- |
| 設備・サービス |
個別空調、エアコン2台以上、オートロック |
| その他 |
車寄せスペース、エレベーター |
| 契約期間 |
2年 |
条件等 |
- |
| 引渡可能時期 |
即時 |
現況 |
完成済 |
| 更新料 |
新賃料 1ヶ月 |
物件番号 |
6989821515 |
| 情報公開日 |
2026年3月8日 |
次回更新予定日 |
2026年4月2日 |
| ケータイ用バーコード |
- スマートフォンでこの物件を見る
- スマートフォンからもこの物件をご覧になれます。
|
※「-」と表示されている項目については、情報提供会社にご確認ください。
| 周辺施設 |
まいばすけっと神田佐久間町店 |
| 距離 |
181m |
| 周辺施設 |
まいばすけっと岩本町3丁目店 |
| 距離 |
538m |
| 周辺施設 |
ユニクロヨドバシAkiba店 |
| 距離 |
548m |
| 周辺施設 |
セブンイレブン秋葉原昭和通り店 |
| 距離 |
240m |
| 周辺施設 |
ファミリーマート秋葉原駅前店 |
| 距離 |
365m |
ここから簡単にお問い合わせをすることができます。
(SSLでの暗号化での送信を希望されるお客さまは
こちら
よりお問い合わせください)
お問い合わせを行う前に
「個人情報の取り扱いについて」を必ずお読みください。
「個人情報の取り扱いについて」に同意いただいた場合は「上記にご同意の上 確認画面へ進む」のボタンをクリックしてください。
個人情報の取り扱いについて
皆さまが送付された個人情報はアットホーム(株)のサーバを経由し、お問い合わせ先の不動産会社にメールまたはFAXにて転送されるためアットホーム(株)にも保管されます。アットホーム(株)で保管された個人情報の取り扱いについては、【こちら】をご覧ください。
また、本画面でご記入いただいた個人情報は、お問い合わせ先の不動産会社でも保管します。 お問い合わせ先の不動産会社が保管する個人情報の取り扱いについては、不動産会社に直接お問い合わせください。
東京都知事免許(2)第105816号 |
|---|
- 交通:
- 東京メトロ銀座線/銀座駅 徒歩1分
- 東京都中央区銀座5丁目9-5
- TEL:
- 03-6228-5300
- FAX:
- 03-6228-5301
- 所属団体:
- (公社)全日本不動産協会会員(公社)首都圏不動産公正取引協議会加盟
取引態様:仲介  - 00105075
|
- スマートフォンで
この不動産会社を見る

|
- 提携サイト等より掲載されている物件情報につきましては、不動産会社詳細情報にリンクされていないものがあります。
- 物件に関するお問合せは、物件詳細ページの「情報提供会社」に表示されている不動産会社へ直接お願いいたします。
- 間取図は、現況を優先させていただきます。
- 映像は物件の一部を撮影したものです。物件の契約にあたっての最終判断はご自身の判断に基づいて行ってください。
- 仲介手数料について

アットホームは物件情報の適正化に努めております。
内容に誤りがある場合にはこちらへご連絡ください。