愛知県小牧市大字小牧原新田(小牧原駅)の貸店舗:物件詳細
交通 所在地 |
駅徒歩 |
賃料 管理費等 |
敷金/保証金 礼金 |
使用部分面積 坪数/坪単価 |
物件種目 築年月 |
|
名鉄小牧線/小牧原
愛知県小牧市大字小牧原新田
|
17分
|
15.4万円
4,000円
|
なし / 3ヶ月
1ヶ月
|
79.09m²
23.92坪/0.6437万円
|
貸店舗
1988年1月(築38年5ヶ月)
|
|
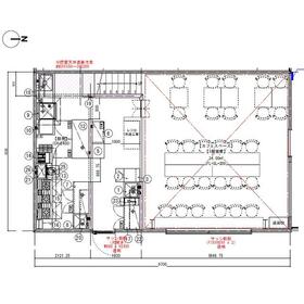
間取図
1階
|
外観
2階
|
その他の画像
|
| 交通 | 名鉄小牧線 小牧原駅 徒歩17分 |
| 所在地 |
愛知県小牧市大字小牧原新田
|
| 物件種目 |
貸店舗 |
| 賃料 |
15.4万円 |
管理費等 |
4,000円 |
| 敷金 / 保証金 |
なし / 3ヶ月 |
礼金 |
1ヶ月 |
| 敷引 |
- |
坪単価 |
0.6437万円 |
| 保証金償却 |
- |
権利金 |
- |
| 造作譲渡 |
- |
その他一時金 |
- |
| 維持費等 |
- |
保険等 |
要 借家人賠償付 |
| 使用部分面積 |
79.09m² |
坪数 |
23.92坪 |
| 築年月 |
1988年1月(築38年5ヶ月)
|
階建 / 階 |
1階建 / 1階 |
| 駐車場 |
有 無料 |
バイク置き場 |
- |
| 駐輪場 |
- |
土地面積 |
- |
| 接道状況 |
-
|
用途地域 |
1種住居 |
| 間取り |
- |
建物構造 |
鉄骨造 |
| アピールポイント |
居抜きです。そのままご利用いただけます。厨房設備以外に、テーブルや椅子なども造作譲渡に含まれます。吹抜で開放的な店内です。 |
| 建物名・部屋番号 |
|
| リフォーム履歴 |
■水回り:2025年5月 キッチン、給排水管、給湯器 ■内装:2025年5月 内装全面(床・壁・天井・建具) ■外装:2025年5月 外壁 ■その他:2025年5月 内装工事一式、シンク、製氷機、作業台、冷凍ショーケース、冷凍コールドテーブル、食器洗浄機、冷凍冷蔵庫、炊飯台、ガスフライヤー、ガスレンジ、ソイルドテーブル、吊戸棚、電子レンジ棚、卓上ソフトサーバー ※実施年月は最も古い履歴を表示 |
| リノベーション履歴 |
- |
| 特記事項 |
居抜き、飲食店可 |
| 備考 |
賃貸保証等:加入要(賃料の50%もしくは100%。更新料賃料1か月相当)
管理形態/管理員の勤務形態:-/-
営業中につき、内覧をご希望の方は、ご連絡ください。
空調設備のみリーズ契約です。
トイレは共用です。
水道料金は賃料に含まれます(※使用量による。)
◆造作譲渡の権利費用は別途必要です。価格は応相談。
|
| エネルギー消費性能 |
- |
| 断熱性能 |
- |
| 目安光熱費 |
- |
| バス・トイレ |
- |
| キッチン |
- |
| 設備・サービス |
看板取付スペースあり、空調機あり、換気口あり、排煙設備あり、厨房防水あり、排水設備あり
エアコン2台以上 |
| その他 |
- |
| 契約期間 |
3年 |
条件等 |
- |
| 引渡可能時期 |
相談 |
現況 |
使用中 |
| 仲介手数料 |
1ヶ月 |
|
|
| 更新料 |
- |
物件番号 |
6989888596 |
| 情報公開日 |
2026年3月16日 |
次回更新予定日 |
2026年5月16日 |
| ケータイ用バーコード |
- スマートフォンでこの物件を見る
- スマートフォンからもこの物件をご覧になれます。
|
※「-」と表示されている項目については、情報提供会社にご確認ください。
| 周辺施設 |
ミニストップ小牧原新田店 |
| 距離 |
173m |
ここから簡単にお問い合わせをすることができます。
(SSLでの暗号化での送信を希望されるお客さまは
こちら
よりお問い合わせください)
お問い合わせを行う前に
「個人情報の取り扱いについて」を必ずお読みください。
「個人情報の取り扱いについて」に同意いただいた場合は「上記にご同意の上 確認画面へ進む」のボタンをクリックしてください。
個人情報の取り扱いについて
皆さまが送付された個人情報はアットホーム(株)のサーバを経由し、お問い合わせ先の不動産会社にメールまたはFAXにて転送されるためアットホーム(株)にも保管されます。アットホーム(株)で保管された個人情報の取り扱いについては、【こちら】をご覧ください。
また、本画面でご記入いただいた個人情報は、お問い合わせ先の不動産会社でも保管します。 お問い合わせ先の不動産会社が保管する個人情報の取り扱いについては、不動産会社に直接お問い合わせください。
愛知県知事免許(1)第26252号 |
|---|
- 交通:
- 名鉄小牧線/小牧口駅 徒歩13分
- 愛知県小牧市常普請2丁目74 2F
- TEL:
- 0568-39-5438
- FAX:
- 0568-48-0252
- 所属団体:
- (公社)愛知県宅地建物取引業協会会員東海不動産公正取引協議会加盟
取引態様:仲介  - 40412794
|
- スマートフォンで
この不動産会社を見る

|
- 提携サイト等より掲載されている物件情報につきましては、不動産会社詳細情報にリンクされていないものがあります。
- 物件に関するお問合せは、物件詳細ページの「情報提供会社」に表示されている不動産会社へ直接お願いいたします。
- 間取図は、現況を優先させていただきます。
- 映像は物件の一部を撮影したものです。物件の契約にあたっての最終判断はご自身の判断に基づいて行ってください。
- 仲介手数料について

アットホームは物件情報の適正化に努めております。
内容に誤りがある場合にはこちらへご連絡ください。