埼玉県さいたま市浦和区常盤9丁目(北浦和駅)の貸店舗:物件詳細
交通 所在地 |
駅徒歩 |
賃料 管理費等 |
敷金/保証金 礼金 |
使用部分面積 坪数/坪単価 |
物件種目 築年月 |
|
JR京浜東北線/北浦和
埼玉県さいたま市浦和区常盤9丁目
|
5分
|
47.3万円
-
|
6ヶ月 / なし
1.1ヶ月
|
78.69m²
23.80坪/1.9871万円
|
貸店舗
2025年8月(築1年未満)
|
| 交通 | JR京浜東北線 北浦和駅 徒歩5分 |
| 所在地 |
埼玉県さいたま市浦和区常盤9丁目
|
| 物件種目 |
貸店舗 |
| 賃料 |
47.3万円 |
管理費等 |
- |
| 敷金 / 保証金 |
6ヶ月 / なし |
礼金 |
1.1ヶ月 |
| 敷引 |
22% |
坪単価 |
1.9871万円 |
| 保証金償却 |
- |
権利金 |
- |
| 造作譲渡 |
- |
その他一時金 |
- |
| 維持費等 |
- |
保険等 |
要 火災 |
| 使用部分面積 |
78.69m² |
坪数 |
23.80坪 |
| 築年月 |
2025年8月(築1年未満)
|
階建 / 階 |
3階建 / 1階 |
| 駐車場 |
無 |
バイク置き場 |
- |
| 駐輪場 |
- |
土地面積 |
- |
| 接道状況 |
-
|
用途地域 |
1種住居 |
| 間取り |
- |
建物構造 |
RC |
| 建物名・部屋番号 |
|
| リフォーム履歴 |
- |
| リノベーション履歴 |
- |
| 特記事項 |
土日・祝日利用可、飲食店可 |
| 備考 |
賃貸保証等:加入要(詳細は担当までお問い合わせください)
管理形態/管理員の勤務形態:-/-
★保証会社要加入
★火災保険要加入
※用途地域:第1種住居地域と商業地域に跨る
◆軽飲食相談可 (重飲食不可)
◆スケルトン渡し
◆電気(電灯・動力有り)
◆給排水、ガス有り
◆看板設置スペース有り
◆前面ガラス張り
◆ご内覧は事前予約調整後にお願い致します
物件の詳細は、担当までお問い合わせください。
担当:岩原(070-6989-4129)
|
| エネルギー消費性能 |
- |
| 断熱性能 |
- |
| 目安光熱費 |
- |
| バス・トイレ |
- |
| キッチン |
- |
| 設備・サービス |
看板取付スペースあり
都市ガス、動力あり |
| その他 |
- |
| 契約期間 |
5年 |
条件等 |
定期借家 |
| 引渡可能時期 |
即時 |
現況 |
空 |
| 更新料 |
- |
物件番号 |
6989907444 |
| 情報公開日 |
2026年3月13日 |
次回更新予定日 |
2026年3月27日 |
| ケータイ用バーコード |
- スマートフォンでこの物件を見る
- スマートフォンからもこの物件をご覧になれます。
|
※「-」と表示されている項目については、情報提供会社にご確認ください。
ここから簡単にお問い合わせをすることができます。
(SSLでの暗号化での送信を希望されるお客さまは
こちら
よりお問い合わせください)
お問い合わせを行う前に
「個人情報の取り扱いについて」を必ずお読みください。
「個人情報の取り扱いについて」に同意いただいた場合は「上記にご同意の上 確認画面へ進む」のボタンをクリックしてください。
個人情報の取り扱いについて
皆さまが送付された個人情報はアットホーム(株)のサーバを経由し、お問い合わせ先の不動産会社にメールまたはFAXにて転送されるためアットホーム(株)にも保管されます。アットホーム(株)で保管された個人情報の取り扱いについては、【こちら】をご覧ください。
また、本画面でご記入いただいた個人情報は、お問い合わせ先の不動産会社でも保管します。 お問い合わせ先の不動産会社が保管する個人情報の取り扱いについては、不動産会社に直接お問い合わせください。
国土交通大臣免許(3)第8239号 |
|---|
- 交通:
- 東京メトロ千代田線/大手町駅 徒歩1分
- 東京都千代田区丸の内1丁目8番1号 丸の内トラストタワーN館 19階
- TEL:
- 03-5860-3660
- FAX:
- 03-5860-3661
- 所属団体:
- (公社)東京都宅地建物取引業協会会員(公社)首都圏不動産公正取引協議会加盟
取引態様:仲介  - 00162272
|
- スマートフォンで
この不動産会社を見る

|
- 提携サイト等より掲載されている物件情報につきましては、不動産会社詳細情報にリンクされていないものがあります。
- 物件に関するお問合せは、物件詳細ページの「情報提供会社」に表示されている不動産会社へ直接お願いいたします。
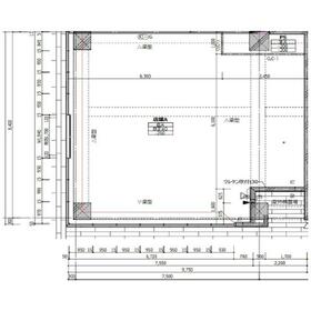
- 間取図は、現況を優先させていただきます。
- 映像は物件の一部を撮影したものです。物件の契約にあたっての最終判断はご自身の判断に基づいて行ってください。
- 仲介手数料について

アットホームは物件情報の適正化に努めております。
内容に誤りがある場合にはこちらへご連絡ください。