埼玉県さいたま市北区日進町3丁目(宮原駅)の貸店舗:物件詳細
交通 所在地 |
駅徒歩 |
賃料 管理費等 |
敷金/保証金 礼金 |
使用部分面積 坪数/坪単価 |
物件種目 築年月 |
|
JR高崎線/宮原
埼玉県さいたま市北区日進町3丁目
|
5分
|
64.1784万円
22,000円
|
なし / 300万円
1ヶ月
|
160.75m²
48.62坪/1.3199万円
|
貸店舗・事務所
2018年3月(築8年1ヶ月)
|
|
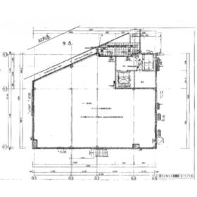
間取図
1階のスケルトン時の間取図
|
外観
|
<
その他の画像
>
|
| 交通 | JR高崎線 宮原駅 徒歩5分 |
|---|
| その他の交通 | JR川越線 日進駅 徒歩12分 |
| 所在地 |
埼玉県さいたま市北区日進町3丁目
|
| 物件種目 |
貸店舗・事務所 |
| 賃料 |
64.1784万円 |
管理費等 |
22,000円 |
| 敷金 / 保証金 |
なし / 300万円 |
礼金 |
1ヶ月 |
| 敷引 |
- |
坪単価 |
1.3199万円 |
| 保証金償却 |
- |
権利金 |
- |
| 造作譲渡 |
- |
その他一時金 |
- |
| 維持費等 |
- |
保険等 |
要 事業用火災 |
| 使用部分面積 |
160.75m² |
坪数 |
48.62坪 |
| 築年月 |
2018年3月(築8年1ヶ月)
|
階建 / 階 |
2階建 / 1階 |
| 駐車場 |
近有 7,700円/月(空き4台) 近隣(物件から徒歩約2分)に月極駐車場空きあり(砂利駐車場)。2026年3月時点、空き4台(1台月額7700円)です。最新の空き状況と駐車可能サイズ等は現地にてご確認下さい。 |
バイク置き場 |
無 |
| 駐輪場 |
有 無料 |
土地面積 |
- |
| 接道状況 |
-
|
用途地域 |
1種住居 |
| 間取り |
- |
建物構造 |
鉄骨造 |
| アピールポイント |
~㈱NextBoxへようこそ~
弊社は事業用物件(店舗・事務所・倉庫・工場等)の仲介専門店です。
最新のポータルサイトの掲載情報より日々新着情報を確認の上、
テナント物件をご紹介させて頂いております。
インターネット上に掲載されていない現地募集のみの物件情報も
取り扱っており、お客様にご紹介させて頂いております。
今回閲覧頂いておりますアットホーム掲載上のテナント情報
だけでなく、㈱NextBoxの自社ホームページやインスタグラム等の
SNSにて、最新の募集開始直後(入居中・退去予定)の物件を
情報公開しております。
テナントの事前資料請求、現地集合での内見予約など、
是非、弊社のテナント仲介サービスをご利用下さいませ。 |
| 建物名・部屋番号 |
|
| リフォーム履歴 |
- |
| リノベーション履歴 |
- |
| 特記事項 |
スケルトン、土曜日利用可、土日・祝日利用可、飲食店可、1フロア1テナント、角部屋、耐震構造(新耐震基準)、都道府県道沿いに面する |
| 備考 |
賃貸保証等:加入要(指定保証会社加入のこと、契約時初回保証料 月額総賃料の100%~、以降継続保証料(年間保証料など)あり。連帯保証人1名など。)
管理形態/管理員の勤務形態:-/-
・現況渡しです。
・内装はスケルトンです。
自火報あり。館銘板あり。
スタッフ専用駐輪スペースあり。
建物裏の来客用駐車場は満車です。
共用来客駐輪スペースあり。
・内装の造作工事は借主負担です。
・ガス器具等火器の使用は不可(建物:LPG)
・クリニック、スクール、ジム、軽飲食業(ガス使用不可)など
内容により出店可能です。(2階と同業種は不可※耳鼻科系)
・普通借2年、更新料1ヶ月、更新事務手数料要確認
・駐車場は近隣月極駐車場にてご紹介可能です(物件から徒歩2分程度)
|
| エネルギー消費性能 |
- |
| 断熱性能 |
- |
| 目安光熱費 |
- |
| バス・トイレ |
- |
| キッチン |
- |
| 設備・サービス |
シャッター雨戸、プロパンガス、動力あり、火災警報器(報知機) |
| その他 |
- |
| 契約期間 |
2年 |
条件等 |
- |
| 引渡可能時期 |
相談 |
現況 |
空 |
| 更新料 |
新賃料 1ヶ月 |
物件番号 |
6989921268 |
| 情報公開日 |
2026年3月14日 |
次回更新予定日 |
2026年4月11日 |
| ケータイ用バーコード |
- スマートフォンでこの物件を見る
- スマートフォンからもこの物件をご覧になれます。
|
※「-」と表示されている項目については、情報提供会社にご確認ください。
ここから簡単にお問い合わせをすることができます。
(SSLでの暗号化での送信を希望されるお客さまは
こちら
よりお問い合わせください)
お問い合わせを行う前に
「個人情報の取り扱いについて」を必ずお読みください。
「個人情報の取り扱いについて」に同意いただいた場合は「上記にご同意の上 確認画面へ進む」のボタンをクリックしてください。
個人情報の取り扱いについて
皆さまが送付された個人情報はアットホーム(株)のサーバを経由し、お問い合わせ先の不動産会社にメールまたはFAXにて転送されるためアットホーム(株)にも保管されます。アットホーム(株)で保管された個人情報の取り扱いについては、【こちら】をご覧ください。
また、本画面でご記入いただいた個人情報は、お問い合わせ先の不動産会社でも保管します。 お問い合わせ先の不動産会社が保管する個人情報の取り扱いについては、不動産会社に直接お問い合わせください。
埼玉県知事免許(1)第25855号 |
|---|
- 交通:
- JR東北本線/東大宮駅 徒歩7分
- 埼玉県さいたま市見沼区東大宮5丁目33-12 柏洋ビル3階西側事務所
- TEL:
- 048-796-8757
- FAX:
- 048-796-8758
- 所属団体:
- (公社)埼玉県宅地建物取引業協会会員(公社)首都圏不動産公正取引協議会加盟
取引態様:仲介  - 00282978
|
- スマートフォンで
この不動産会社を見る

|
- 提携サイト等より掲載されている物件情報につきましては、不動産会社詳細情報にリンクされていないものがあります。
- 物件に関するお問合せは、物件詳細ページの「情報提供会社」に表示されている不動産会社へ直接お願いいたします。
- 間取図は、現況を優先させていただきます。
- 映像は物件の一部を撮影したものです。物件の契約にあたっての最終判断はご自身の判断に基づいて行ってください。
- 仲介手数料について

アットホームは物件情報の適正化に努めております。
内容に誤りがある場合にはこちらへご連絡ください。