大阪府大阪市福島区福島1丁目(福島駅)の貸店舗:物件詳細
交通 所在地 |
駅徒歩 |
賃料 管理費等 |
敷金/保証金 礼金 |
使用部分面積 坪数/坪単価 |
物件種目 築年月 |
|
阪神本線/福島
大阪府大阪市福島区福島1丁目
|
3分
|
40.348万円
-
|
4ヶ月 / なし
2ヶ月
|
60.56m²
18.31坪/2.2025万円
|
貸店舗
2026年3月(新築)
|
|
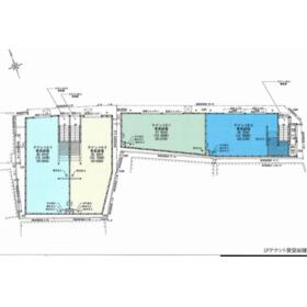
間取図
|
|
その他の画像
|
| 交通 | 阪神本線 福島駅 徒歩3分 |
|---|
| その他の交通 | JR東西線 新福島駅 徒歩4分 JR大阪環状線 福島駅 徒歩5分 |
| 所在地 |
大阪府大阪市福島区福島1丁目
|
| 物件種目 |
貸店舗 |
| 賃料 |
40.348万円 |
管理費等 |
- |
| 敷金 / 保証金 |
4ヶ月 / なし |
礼金 |
2ヶ月 |
| 敷引 |
- |
坪単価 |
2.2025万円 |
| 保証金償却 |
- |
権利金 |
- |
| 造作譲渡 |
- |
その他一時金 |
- |
| 維持費等 |
- |
保険等 |
- |
| 使用部分面積 |
60.56m² |
坪数 |
18.31坪 |
| 築年月 |
2026年3月(新築)
|
階建 / 階 |
2階建 / 1階 |
| 駐車場 |
- |
バイク置き場 |
- |
| 駐輪場 |
- |
土地面積 |
- |
| 接道状況 |
-
|
用途地域 |
- |
| 間取り |
- |
建物構造 |
木造 |
| アピールポイント |
当社はテナント専門仲介!店舗・事務所・倉庫・土地・駐車場など幅広く物件を取り扱っています。
大阪市旭区・城東区・都島区・鶴見区・守口市・門真市などを中心に!もちろん大阪府下の物件も多数扱っています。
重飲食・軽飲食・美容室・居抜き・スケルトン・ロードサイド・事業拡大による事務所移転・現在営業中で空予定、新築、スナックの物件などご紹介可能です!
お探しの場所、賃料な希望の条件を伝えください。
また要望があれば建築や改装のプロの内装相談まで当社ですべて可能です。
※司法書士、行政書士(見積もり無料)
※工務店、内装リフォーム(請負契約完了までは一切費用がかかりません。)
※火災保険(音響機器やレジや設備など幅広くご提案)
※オンライン重要事項説明(来店が必要なく、夜でも在宅で契約処理が完了できます。)
※空室でお困りの貸主様すぐに募集広告、看板設置など対応しておりますので、ご応募お待ちしております。 |
| 建物名・部屋番号 |
|
| リフォーム履歴 |
- |
| リノベーション履歴 |
- |
| 特記事項 |
スケルトン、土曜日利用可、土日・祝日利用可、飲食店可、IT重説対応物件 |
| 備考 |
賃貸保証等:加入要(詳細はお問い合わせください。)
管理形態/管理員の勤務形態:-/-
IT重説対応物件
|
| エネルギー消費性能 |
- |
| 断熱性能 |
- |
| 目安光熱費 |
- |
| バス・トイレ |
- |
| キッチン |
- |
| 設備・サービス |
- |
| その他 |
- |
| 契約期間 |
10年 |
条件等 |
定期借家 |
| 引渡可能時期 |
相談 |
現況 |
未完成 |
| 更新料 |
- |
物件番号 |
6990003964 |
| 情報公開日 |
2026年3月20日 |
次回更新予定日 |
2026年4月3日 |
| ケータイ用バーコード |
- スマートフォンでこの物件を見る
- スマートフォンからもこの物件をご覧になれます。
|
※「-」と表示されている項目については、情報提供会社にご確認ください。
ここから簡単にお問い合わせをすることができます。
(SSLでの暗号化での送信を希望されるお客さまは
こちら
よりお問い合わせください)
お問い合わせを行う前に
「個人情報の取り扱いについて」を必ずお読みください。
「個人情報の取り扱いについて」に同意いただいた場合は「上記にご同意の上 確認画面へ進む」のボタンをクリックしてください。
個人情報の取り扱いについて
皆さまが送付された個人情報はアットホーム(株)のサーバを経由し、お問い合わせ先の不動産会社にメールまたはFAXにて転送されるためアットホーム(株)にも保管されます。アットホーム(株)で保管された個人情報の取り扱いについては、【こちら】をご覧ください。
また、本画面でご記入いただいた個人情報は、お問い合わせ先の不動産会社でも保管します。 お問い合わせ先の不動産会社が保管する個人情報の取り扱いについては、不動産会社に直接お問い合わせください。
大阪府知事免許(2)第62478号 |
|---|
- 交通:
- 地下鉄谷町線/千林大宮駅 徒歩3分
- 大阪府大阪市旭区今市1丁目1-1
- TEL:
- 06-6167-6639
- FAX:
- 06-6167-6649
- 所属団体:
- (公社)全日本不動産協会会員(公社)近畿地区不動産公正取引協議会加盟
取引態様:仲介  - 50106328
|
- スマートフォンで
この不動産会社を見る

|
- 提携サイト等より掲載されている物件情報につきましては、不動産会社詳細情報にリンクされていないものがあります。
- 物件に関するお問合せは、物件詳細ページの「情報提供会社」に表示されている不動産会社へ直接お願いいたします。
- 間取図は、現況を優先させていただきます。
- 映像は物件の一部を撮影したものです。物件の契約にあたっての最終判断はご自身の判断に基づいて行ってください。
- 仲介手数料について

アットホームは物件情報の適正化に努めております。
内容に誤りがある場合にはこちらへご連絡ください。