岡山県岡山市北区辰巳(備前西市駅)の貸店舗:物件詳細
交通 所在地 |
駅徒歩 |
賃料 管理費等 |
敷金/保証金 礼金 |
使用部分面積 坪数/坪単価 |
物件種目 築年月 |
|
宇野線/備前西市
岡山県岡山市北区辰巳
|
16分
|
13.5883万円
22,231円
|
4ヶ月 / なし
1ヶ月
|
74.24m²
22.45坪/0.6051万円
|
貸店舗・事務所
1991年1月(築35年3ヶ月)
|
| 交通 | 宇野線 備前西市駅 徒歩16分 |
| 所在地 |
岡山県岡山市北区辰巳
|
| 物件種目 |
貸店舗・事務所 |
| 賃料 |
13.5883万円 |
管理費等 |
22,231円 |
| 敷金 / 保証金 |
4ヶ月 / なし |
礼金 |
1ヶ月 |
| 敷引 |
- |
坪単価 |
0.6051万円 |
| 保証金償却 |
- |
権利金 |
- |
| 造作譲渡 |
- |
その他一時金 |
- |
| 維持費等 |
冷暖房設備費用:24,706円/月 |
保険等 |
- |
| 使用部分面積 |
74.24m² |
坪数 |
22.45坪 |
| 築年月 |
1991年1月(築35年3ヶ月)
|
階建 / 階 |
2階建 / 1階 |
| 駐車場 |
有 16,500円/月(空き3台) 3台分の金額です |
バイク置き場 |
- |
| 駐輪場 |
- |
土地面積 |
- |
| 接道状況 |
-
|
用途地域 |
- |
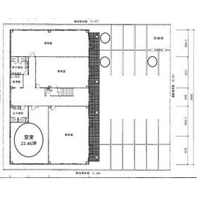
| 間取り |
- |
建物構造 |
鉄骨造 |
| アピールポイント |
中心エリアで便利がいいので士業の事務所にいかがでしょうか |
| 建物名・部屋番号 |
|
| リフォーム履歴 |
- |
| リノベーション履歴 |
- |
| 特記事項 |
飲食店不可、駐車場2台分、駐車場3台分以上 |
| 備考 |
管理形態/管理員の勤務形態:-/-
|
| エネルギー消費性能 |
- |
| 断熱性能 |
- |
| 目安光熱費 |
- |
| バス・トイレ |
専有部分にトイレあり |
| キッチン |
- |
| 設備・サービス |
- |
| その他 |
- |
| 契約期間 |
2年 |
条件等 |
- |
| 引渡可能時期 |
2026年5月下旬予定 |
現況 |
使用中 |
| 更新料 |
- |
物件番号 |
6990010906 |
| 情報公開日 |
2026年3月22日 |
次回更新予定日 |
2026年4月5日 |
| ケータイ用バーコード |
- スマートフォンでこの物件を見る
- スマートフォンからもこの物件をご覧になれます。
|
※「-」と表示されている項目については、情報提供会社にご確認ください。
| 周辺施設 |
エネオスセルフ遊遊ドームSS |
| 距離 |
53m |
| 周辺施設 |
おかやま信用金庫辰巳支店 |
| 距離 |
237m |
| 周辺施設 |
しゃぶしゃぶ温野菜岡山今店 |
| 距離 |
169m |
| 周辺施設 |
ファミリーマート岡山辰巳西店 |
| 距離 |
331m |
| 周辺施設 |
サンマルクカフェ岡山今店 |
| 距離 |
240m |
| 周辺施設 |
マツモトキヨシ岡山平田店 |
| 距離 |
365m |
ここから簡単にお問い合わせをすることができます。
(SSLでの暗号化での送信を希望されるお客さまは
こちら
よりお問い合わせください)
お問い合わせを行う前に
「個人情報の取り扱いについて」を必ずお読みください。
「個人情報の取り扱いについて」に同意いただいた場合は「上記にご同意の上 確認画面へ進む」のボタンをクリックしてください。
個人情報の取り扱いについて
皆さまが送付された個人情報はアットホーム(株)のサーバを経由し、お問い合わせ先の不動産会社にメールまたはFAXにて転送されるためアットホーム(株)にも保管されます。アットホーム(株)で保管された個人情報の取り扱いについては、【こちら】をご覧ください。
また、本画面でご記入いただいた個人情報は、お問い合わせ先の不動産会社でも保管します。 お問い合わせ先の不動産会社が保管する個人情報の取り扱いについては、不動産会社に直接お問い合わせください。
岡山県知事免許(2)第5806号 |
|---|
- 交通:
- JR山陽本線/北長瀬駅 徒歩16分
- 岡山県岡山市北区中仙道2丁目27-9
- TEL:
- 086-250-7380
- 所属団体:
- (公社)全日本不動産協会会員中国地区不動産公正取引協議会加盟
取引態様:仲介  - 50110369
|
- スマートフォンで
この不動産会社を見る

|
- 提携サイト等より掲載されている物件情報につきましては、不動産会社詳細情報にリンクされていないものがあります。
- 物件に関するお問合せは、物件詳細ページの「情報提供会社」に表示されている不動産会社へ直接お願いいたします。
- 間取図は、現況を優先させていただきます。
- 映像は物件の一部を撮影したものです。物件の契約にあたっての最終判断はご自身の判断に基づいて行ってください。
- 仲介手数料について

アットホームは物件情報の適正化に努めております。
内容に誤りがある場合にはこちらへご連絡ください。