大阪府大阪市西区新町2丁目(四ツ橋駅)の貸店舗:物件詳細
交通 所在地 |
駅徒歩 |
賃料 管理費等 |
敷金/保証金 礼金 |
使用部分面積 坪数/坪単価 |
物件種目 築年月 |
|
地下鉄四つ橋線/四ツ橋
大阪府大阪市西区新町2丁目
|
10分
|
27.5万円
なし
|
なし / 138万円
なし
|
57.77m²
17.47坪/1.5737万円
|
貸店舗
1983年9月(築42年7ヶ月)
|
|
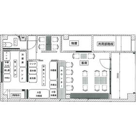
間取図
|
室内
|
その他の画像
|
| 交通 | 地下鉄四つ橋線 四ツ橋駅 徒歩10分 |
|---|
| その他の交通 | 地下鉄長堀鶴見緑地線 西大橋駅 徒歩5分 地下鉄長堀鶴見緑地線 西長堀駅 徒歩7分 |
| 所在地 |
大阪府大阪市西区新町2丁目
|
| 物件種目 |
貸店舗 |
| 賃料 |
27.5万円 |
管理費等 |
なし |
| 敷金 / 保証金 |
なし / 138万円 |
礼金 |
なし |
| 敷引 |
- |
坪単価 |
1.5737万円 |
| 保証金償却 |
解約時138万円 【解約】1年未満:80% 3年未満:70% 5年未満:60% 5年以上:50% |
権利金 |
- |
| 造作譲渡 |
- |
その他一時金 |
- |
| 維持費等 |
- |
保険等 |
要 |
| 使用部分面積 |
57.77m² |
坪数 |
17.47坪 |
| 築年月 |
1983年9月(築42年7ヶ月)
|
階建 / 階 |
5階建 / 1階~2階部分 |
| 駐車場 |
- |
バイク置き場 |
- |
| 駐輪場 |
- |
土地面積 |
- |
| 接道状況 |
-
|
用途地域 |
- |
| 間取り |
- |
建物構造 |
鉄骨造 |
| 建物名・部屋番号 |
阪田ビル 1階・2階物置 |
| リフォーム履歴 |
- |
| リノベーション履歴 |
- |
| 特記事項 |
居抜き、土日・祝日利用可、飲食店可、フリーレント、1フロア1テナント、IT重説対応物件 |
| 備考 |
賃貸保証等:加入要(H.I.F 初回保証料100%)
管理形態/管理員の勤務形態:-/-
フリーレント:2026年7月より賃料発生(契約開始日により相談可能)
IT重説対応物件
造作譲渡ありとなります。
譲渡金額につきましては要相談となります。
|
| エネルギー消費性能 |
- |
| 断熱性能 |
- |
| 目安光熱費 |
- |
| バス・トイレ |
トイレ |
| キッチン |
オープンキッチン |
| 設備・サービス |
看板取付スペースあり、シャッター付き、空調機あり、換気口あり、排煙設備あり、排水設備あり
エアコン2台以上、収納スペース、電動シャッター、都市ガス、エアコン、暖房、冷房 |
| その他 |
- |
| 契約期間 |
2年 |
条件等 |
- |
| 引渡可能時期 |
相談 |
現況 |
居住中 |
| 更新料 |
なし |
物件番号 |
6990016315 |
| 情報公開日 |
2026年3月22日 |
次回更新予定日 |
2026年4月5日 |
| ケータイ用バーコード |
- スマートフォンでこの物件を見る
- スマートフォンからもこの物件をご覧になれます。
|
※「-」と表示されている項目については、情報提供会社にご確認ください。
| 周辺施設 |
BIG BEANSウエスト本店 |
| 距離 |
323m |
| 周辺施設 |
セブンイレブン大阪新町2丁目店 |
| 距離 |
156m |
| 周辺施設 |
ファミリーマート新町二丁目店 |
| 距離 |
231m |
| 周辺施設 |
エネオスDr.Drive新町SS |
| 距離 |
209m |
ここから簡単にお問い合わせをすることができます。
(SSLでの暗号化での送信を希望されるお客さまは
こちら
よりお問い合わせください)
お問い合わせを行う前に
「個人情報の取り扱いについて」を必ずお読みください。
「個人情報の取り扱いについて」に同意いただいた場合は「上記にご同意の上 確認画面へ進む」のボタンをクリックしてください。
個人情報の取り扱いについて
皆さまが送付された個人情報はアットホーム(株)のサーバを経由し、お問い合わせ先の不動産会社にメールまたはFAXにて転送されるためアットホーム(株)にも保管されます。アットホーム(株)で保管された個人情報の取り扱いについては、【こちら】をご覧ください。
また、本画面でご記入いただいた個人情報は、お問い合わせ先の不動産会社でも保管します。 お問い合わせ先の不動産会社が保管する個人情報の取り扱いについては、不動産会社に直接お問い合わせください。
大阪府知事免許(1)第63726号 |
|---|
- 交通:
- 地下鉄長堀鶴見緑地線/長堀橋駅 徒歩1分
- 大阪府大阪市中央区南船場2丁目3-6 第一住建長堀橋駅前ビル802
- TEL:
- 06-4300-4446
- FAX:
- 06-4300-4456
- 所属団体:
- (一社)大阪府宅地建物取引業協会会員(公社)近畿地区不動産公正取引協議会加盟
取引態様:仲介  - 50108818
|
- スマートフォンで
この不動産会社を見る

|
- 提携サイト等より掲載されている物件情報につきましては、不動産会社詳細情報にリンクされていないものがあります。
- 物件に関するお問合せは、物件詳細ページの「情報提供会社」に表示されている不動産会社へ直接お願いいたします。
- 間取図は、現況を優先させていただきます。
- 映像は物件の一部を撮影したものです。物件の契約にあたっての最終判断はご自身の判断に基づいて行ってください。
- 仲介手数料について

アットホームは物件情報の適正化に努めております。
内容に誤りがある場合にはこちらへご連絡ください。