宮城県仙台市泉区加茂5丁目(泉中央駅)の貸店舗:物件詳細
交通 所在地 |
駅徒歩 |
賃料 管理費等 |
敷金/保証金 礼金 |
使用部分面積 坪数/坪単価 |
物件種目 築年月 |
|
仙台市南北線/泉中央 [バス利用可] バス 加茂五丁目北 停歩1分
宮城県仙台市泉区加茂5丁目
|
3000m
|
17万円
-
|
なし / なし
2ヶ月
|
79.49m²
24.04坪/0.707万円
|
貸店舗・事務所(一括)
2008年12月(築17年4ヶ月)
|
|
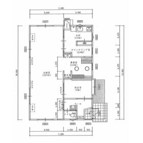
間取図
|
外観
|
その他の画像
|
| 交通 | 仙台市南北線 泉中央駅 徒歩3000m [バス利用可] バス 加茂五丁目北 停歩1分 |
| 所在地 |
宮城県仙台市泉区加茂5丁目
|
| 物件種目 |
貸店舗・事務所(一括) |
| 賃料 |
17万円 |
管理費等 |
- |
| 敷金 / 保証金 |
なし / なし |
礼金 |
2ヶ月 |
| 敷引 |
- |
坪単価 |
0.707万円 |
| 保証金償却 |
- |
権利金 |
- |
| 造作譲渡 |
- |
その他一時金 |
- |
| 維持費等 |
- |
保険等 |
- |
| 使用部分面積 |
79.49m² |
坪数 |
24.04坪 |
| 築年月 |
2008年12月(築17年4ヶ月)
|
階建 / 階 |
1階建 / 1階 |
| 駐車場 |
有 無料(空き6台) |
バイク置き場 |
- |
| 駐輪場 |
- |
土地面積 |
305.80m²(公簿) |
| 接道状況 |
南 公道
・
東 公道
・
二方道路
|
用途地域 |
1種低層 |
| 間取り |
- |
建物構造 |
木造 |
| 建物名・部屋番号 |
|
| リフォーム履歴 |
- |
| リノベーション履歴 |
- |
| 特記事項 |
駐車場3台分以上 |
| 備考 |
管理形態/管理員の勤務形態:-/-
|
| エネルギー消費性能 |
- |
| 断熱性能 |
- |
| 目安光熱費 |
- |
| バス・トイレ |
- |
| キッチン |
- |
| 設備・サービス |
エアコン2台以上、プロパンガス |
| その他 |
- |
| 契約期間 |
2年 |
条件等 |
- |
| 引渡可能時期 |
即時 |
現況 |
空 |
| 更新料 |
- |
物件番号 |
6990029742 |
| 情報公開日 |
2026年3月23日 |
次回更新予定日 |
2026年4月8日 |
| ケータイ用バーコード |
- スマートフォンでこの物件を見る
- スマートフォンからもこの物件をご覧になれます。
|
※「-」と表示されている項目については、情報提供会社にご確認ください。
ここから簡単にお問い合わせをすることができます。
(SSLでの暗号化での送信を希望されるお客さまは
こちら
よりお問い合わせください)
お問い合わせを行う前に
「個人情報の取り扱いについて」を必ずお読みください。
「個人情報の取り扱いについて」に同意いただいた場合は「上記にご同意の上 確認画面へ進む」のボタンをクリックしてください。
個人情報の取り扱いについて
皆さまが送付された個人情報はアットホーム(株)のサーバを経由し、お問い合わせ先の不動産会社にメールまたはFAXにて転送されるためアットホーム(株)にも保管されます。アットホーム(株)で保管された個人情報の取り扱いについては、【こちら】をご覧ください。
また、本画面でご記入いただいた個人情報は、お問い合わせ先の不動産会社でも保管します。 お問い合わせ先の不動産会社が保管する個人情報の取り扱いについては、不動産会社に直接お問い合わせください。
宮城県知事免許(3)第5797号 |
|---|
- 交通:
- 仙台市南北線/泉中央駅 【バス】20分 南中山小学校入口 停歩3分
- 宮城県仙台市泉区南中山4丁目3-16
- TEL:
- 022-725-5955
- FAX:
- 022-774-2355
- 所属団体:
- (公社)宮城県宅地建物取引業協会会員東北地区不動産公正取引協議会加盟
取引態様:仲介  - 20003058
|
- スマートフォンで
この不動産会社を見る

|
- 提携サイト等より掲載されている物件情報につきましては、不動産会社詳細情報にリンクされていないものがあります。
- 物件に関するお問合せは、物件詳細ページの「情報提供会社」に表示されている不動産会社へ直接お願いいたします。
- 間取図は、現況を優先させていただきます。
- 映像は物件の一部を撮影したものです。物件の契約にあたっての最終判断はご自身の判断に基づいて行ってください。
- 仲介手数料について

アットホームは物件情報の適正化に努めております。
内容に誤りがある場合にはこちらへご連絡ください。