東京都豊島区東池袋3丁目(池袋駅)の貸店舗:物件詳細
交通 所在地 |
駅徒歩 |
賃料 管理費等 |
敷金/保証金 礼金 |
使用部分面積 坪数/坪単価 |
物件種目 築年月 |
|
JR山手線/池袋
東京都豊島区東池袋3丁目
|
7分
|
27.72万円
39,600円
|
なし / 4ヶ月
1ヶ月
|
59.51m²
18.00坪/1.5399万円
|
貸店舗・事務所
1993年3月(築33年3ヶ月)
|
|
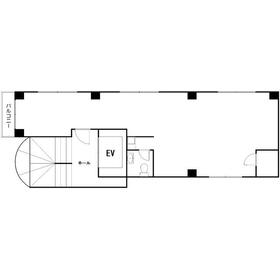
間取図
|
|
<
その他の画像
>
|
| 交通 | JR山手線 池袋駅 徒歩7分 |
|---|
| その他の交通 | 東京メトロ丸ノ内線 池袋駅 徒歩7分 東京メトロ有楽町線 池袋駅 徒歩7分 |
| 所在地 |
東京都豊島区東池袋3丁目
|
| 物件種目 |
貸店舗・事務所 |
| 賃料 |
27.72万円 |
管理費等 |
39,600円 |
| 敷金 / 保証金 |
なし / 4ヶ月 |
礼金 |
1ヶ月 |
| 敷引 |
- |
坪単価 |
1.5399万円 |
| 保証金償却 |
- |
権利金 |
- |
| 造作譲渡 |
- |
その他一時金 |
- |
| 維持費等 |
- |
保険等 |
要 2年 |
| 使用部分面積 |
59.51m² |
坪数 |
18.00坪 |
| 築年月 |
1993年3月(築33年3ヶ月)
|
階建 / 階 |
地上9階地下1階建 / 8階 |
| 駐車場 |
- |
バイク置き場 |
- |
| 駐輪場 |
- |
土地面積 |
- |
| 接道状況 |
-
|
用途地域 |
- |
| 間取り |
- |
建物構造 |
SRC |
| アピールポイント |
■物件名:ニットービル
■住所:東京都豊島区東池袋3丁目9-12
■春日通り沿い
■ワンフロア一室
■OAフロア完備
○山手線【池袋駅】徒歩7分、春日通り沿い、六つ又交差点至近の立地
○管理体制良好な建物
○オフィスの他にスクール、整体等のサービス店舗相談可(店舗利用時:賃料270,000円税別・償却1ヶ月、水廻り工事不可)
○OAフロア完備
○使い易いワンフロア独立タイプのオフィス
≪備考≫
・更新事務手数料:新賃料4分の1(税別)
・入居後2年未満の退去時:償却1ヶ月
・店舗利用時:賃料270,000円(税別)・償却1ヶ月
・水廻り工事不可
ニットービルのお問い合わせは、
事業用専門不動産の株式会社エンジンテラスまで!
※お問い合わせの際は業種をご入力いただくとスムーズにご案内できます! |
| 建物名・部屋番号 |
ニットービル 8F |
| リフォーム履歴 |
- |
| リノベーション履歴 |
- |
| 特記事項 |
24時間利用可、OAフロア、飲食店不可、1フロア1テナント、耐震構造(新耐震基準) |
| 備考 |
賃貸保証等:加入要(契約プランに基づく。)
管理形態/管理員の勤務形態:-/-
・更新事務手数料:新賃料4分の1(税別)
・入居後2年未満の退去時:償却1ヶ月
・店舗利用時:賃料270,000円(税別)・償却1ヶ月
・水廻り工事不可
|
| エネルギー消費性能 |
- |
| 断熱性能 |
- |
| 目安光熱費 |
- |
| バス・トイレ |
専有部分にトイレあり |
| キッチン |
- |
| 設備・サービス |
オートロック、エアコン、光ファイバー |
| その他 |
エレベーター |
| 契約期間 |
2年 |
条件等 |
- |
| 引渡可能時期 |
2026年5月上旬予定 |
現況 |
空 |
| 仲介手数料 |
1ヶ月 |
|
|
| 更新料 |
新賃料 1ヶ月 |
物件番号 |
6990049733 |
| 情報公開日 |
2026年3月31日 |
次回更新予定日 |
2026年5月28日 |
| ケータイ用バーコード |
- スマートフォンでこの物件を見る
- スマートフォンからもこの物件をご覧になれます。
|
※「-」と表示されている項目については、情報提供会社にご確認ください。
| 周辺施設 |
ユニクロ池袋サンシャイン60通り店 |
| 距離 |
476m |
写真を見る |
| 周辺施設 |
セブンイレブン東池袋3丁目南店 |
| 距離 |
119m |
写真を見る |
| 周辺施設 |
ローソン東池袋三丁目店 |
| 距離 |
153m |
写真を見る |
| 周辺施設 |
ファミリーマート東池袋三丁目店 |
| 距離 |
188m |
写真を見る |
| 周辺施設 |
ファミリーマート東池袋店 |
| 距離 |
278m |
写真を見る |
| 周辺施設 |
すき家東池袋店 |
| 距離 |
307m |
写真を見る |
| 周辺施設 |
なか卯豊島区役所前店 |
| 距離 |
248m |
写真を見る |
| 周辺施設 |
モスバーガー池袋東店 |
| 距離 |
282m |
写真を見る |
ここから簡単にお問い合わせをすることができます。
(SSLでの暗号化での送信を希望されるお客さまは
こちら
よりお問い合わせください)
お問い合わせを行う前に
「個人情報の取り扱いについて」を必ずお読みください。
「個人情報の取り扱いについて」に同意いただいた場合は「上記にご同意の上 確認画面へ進む」のボタンをクリックしてください。
個人情報の取り扱いについて
皆さまが送付された個人情報はアットホーム(株)のサーバを経由し、お問い合わせ先の不動産会社にメールまたはFAXにて転送されるためアットホーム(株)にも保管されます。アットホーム(株)で保管された個人情報の取り扱いについては、【こちら】をご覧ください。
また、本画面でご記入いただいた個人情報は、お問い合わせ先の不動産会社でも保管します。 お問い合わせ先の不動産会社が保管する個人情報の取り扱いについては、不動産会社に直接お問い合わせください。
東京都知事免許(3)第94555号 |
|---|
- 交通:
- JR山手線/池袋駅 徒歩5分
- 東京都豊島区東池袋1丁目44-10 タイガースビル702
- TEL:
- 03-5953-2622
- FAX:
- 03-5953-2621
- 所属団体:
- (公社)全日本不動産協会会員(公社)首都圏不動産公正取引協議会加盟
取引態様:仲介  - 00160967
|
- スマートフォンで
この不動産会社を見る

|
- 提携サイト等より掲載されている物件情報につきましては、不動産会社詳細情報にリンクされていないものがあります。
- 物件に関するお問合せは、物件詳細ページの「情報提供会社」に表示されている不動産会社へ直接お願いいたします。
- 間取図は、現況を優先させていただきます。
- 映像は物件の一部を撮影したものです。物件の契約にあたっての最終判断はご自身の判断に基づいて行ってください。
- 仲介手数料について

アットホームは物件情報の適正化に努めております。
内容に誤りがある場合にはこちらへご連絡ください。