東京都新宿区歌舞伎町1丁目(新宿駅)の貸店舗:物件詳細
交通 所在地 |
駅徒歩 |
賃料 管理費等 |
敷金/保証金 礼金 |
使用部分面積 坪数/坪単価 |
物件種目 築年月 |
|
東京メトロ丸ノ内線/新宿
東京都新宿区歌舞伎町1丁目
|
4分
|
118.8万円
88,000円
|
なし / 1,000万円
なし
|
84.12m²
25.44坪/4.6687万円
|
貸店舗
2021年12月(築4年5ヶ月)
|
|
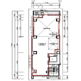
間取図
|
|
その他の画像
|
| 交通 | 東京メトロ丸ノ内線 新宿駅 徒歩4分 |
|---|
| その他の交通 | 都営大江戸線 新宿西口駅 徒歩4分 東京メトロ丸ノ内線 新宿三丁目駅 徒歩6分 |
| 所在地 |
東京都新宿区歌舞伎町1丁目
|
| 物件種目 |
貸店舗 |
| 賃料 |
118.8万円 |
管理費等 |
88,000円 |
| 敷金 / 保証金 |
なし / 1,000万円 |
礼金 |
なし |
| 敷引 |
- |
坪単価 |
4.6687万円 |
| 保証金償却 |
- |
権利金 |
- |
| 造作譲渡 |
- |
その他一時金 |
- |
| 維持費等 |
- |
保険等 |
- |
| 使用部分面積 |
84.12m² |
坪数 |
25.44坪 |
| 築年月 |
2021年12月(築4年5ヶ月)
|
階建 / 階 |
9階建 / 9階 |
| 駐車場 |
- |
バイク置き場 |
- |
| 駐輪場 |
- |
土地面積 |
- |
| 接道状況 |
-
|
用途地域 |
- |
| 間取り |
- |
建物構造 |
RC |
| アピールポイント |
入居中のテナント
9F募集区画
7F美容クリニック
6F美容クリニック
5Fネイルサロン
4F バー
3F シーシャバー
2F 中華料理
1F 調剤薬局
新宿サブナード9番出口が目の前。
雨の日も、ほぼ濡れないルートです。
新宿サブナード(SHINJUKU SUBNADE)は、
新宿駅東口から歌舞伎町・靖国通り周辺の地下に広がる約100店舗を擁する新宿最大級の地下ショッピング街です。
ファッション、雑貨、カフェ、レストランが集まり、地下道で各線新宿駅と直結する利便性の高いスポットです。 |
| 建物名・部屋番号 |
|
| リフォーム履歴 |
- |
| リノベーション履歴 |
- |
| 特記事項 |
24時間利用可、飲食店可、1フロア1テナント、角部屋、最上階、IT重説対応物件 |
| 備考 |
管理形態/管理員の勤務形態:-/-
IT重説対応物件
電灯25KVA、動力35KVA。
水道25mm、ガス50mm。
汚水100mm、雑排水100mmを3箇所あり。
ガス口径50A(10号メーター迄設置可)。
キャバクラ等NG、入居中テナントと同業種NG。
|
| エネルギー消費性能 |
- |
| 断熱性能 |
- |
| 目安光熱費 |
- |
| バス・トイレ |
- |
| キッチン |
- |
| 設備・サービス |
看板取付スペースあり、排煙設備あり、排水設備あり 、電気容量(電灯)25KVA、電気容量(動力)35KW
都市ガス、動力あり |
| その他 |
- |
| 契約期間 |
3年 |
条件等 |
- |
| 引渡可能時期 |
相談 |
現況 |
空 |
| 更新料 |
- |
物件番号 |
6990310866 |
| 情報公開日 |
2026年4月13日 |
次回更新予定日 |
2026年5月6日 |
| ケータイ用バーコード |
- スマートフォンでこの物件を見る
- スマートフォンからもこの物件をご覧になれます。
|
※「-」と表示されている項目については、情報提供会社にご確認ください。
ここから簡単にお問い合わせをすることができます。
(SSLでの暗号化での送信を希望されるお客さまは
こちら
よりお問い合わせください)
お問い合わせを行う前に
「個人情報の取り扱いについて」を必ずお読みください。
「個人情報の取り扱いについて」に同意いただいた場合は「上記にご同意の上 確認画面へ進む」のボタンをクリックしてください。
個人情報の取り扱いについて
皆さまが送付された個人情報はアットホーム(株)のサーバを経由し、お問い合わせ先の不動産会社にメールまたはFAXにて転送されるためアットホーム(株)にも保管されます。アットホーム(株)で保管された個人情報の取り扱いについては、【こちら】をご覧ください。
また、本画面でご記入いただいた個人情報は、お問い合わせ先の不動産会社でも保管します。 お問い合わせ先の不動産会社が保管する個人情報の取り扱いについては、不動産会社に直接お問い合わせください。
神奈川県知事免許(1)第32580号 |
|---|
- 交通:
- ブルーライン/吉野町駅 徒歩3分
- 神奈川県横浜市南区日枝町5丁目137-4
- TEL:
- 045-341-3337
- FAX:
- 045-341-3338
- 所属団体:
- (公社)神奈川県宅地建物取引業協会会員(公社)首都圏不動産公正取引協議会加盟
取引態様:仲介  - 00278575
|
- スマートフォンで
この不動産会社を見る

|
- 提携サイト等より掲載されている物件情報につきましては、不動産会社詳細情報にリンクされていないものがあります。
- 物件に関するお問合せは、物件詳細ページの「情報提供会社」に表示されている不動産会社へ直接お願いいたします。
- 間取図は、現況を優先させていただきます。
- 映像は物件の一部を撮影したものです。物件の契約にあたっての最終判断はご自身の判断に基づいて行ってください。
- 仲介手数料について

アットホームは物件情報の適正化に努めております。
内容に誤りがある場合にはこちらへご連絡ください。