東京都新宿区歌舞伎町1丁目(新宿駅)の貸店舗:物件詳細
交通 所在地 |
駅徒歩 |
賃料 管理費等 |
敷金/保証金 礼金 |
使用部分面積 坪数/坪単価 |
物件種目 築年月 |
|
東京メトロ丸ノ内線/新宿
東京都新宿区歌舞伎町1丁目
|
4分
|
118.8万円
88,000円
|
なし / 1,000万円
なし
|
84.12m²
25.44坪/4.6687万円
|
貸店舗
2021年12月(築4年5ヶ月)
|
|
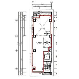
間取図
|
|
その他の画像
|
| 交通 | 東京メトロ丸ノ内線 新宿駅 徒歩4分 |
|---|
| その他の交通 | 都営大江戸線 新宿西口駅 徒歩4分 東京メトロ丸ノ内線 新宿三丁目駅 徒歩6分 |
| 所在地 |
東京都新宿区歌舞伎町1丁目
|
| 物件種目 |
貸店舗 |
| 賃料 |
118.8万円 |
管理費等 |
88,000円 |
| 敷金 / 保証金 |
なし / 1,000万円 |
礼金 |
なし |
| 敷引 |
- |
坪単価 |
4.6687万円 |
| 保証金償却 |
解約時20% |
権利金 |
- |
| 造作譲渡 |
- |
その他一時金 |
- |
| 維持費等 |
- |
保険等 |
要 |
| 使用部分面積 |
84.12m² |
坪数 |
25.44坪 |
| 築年月 |
2021年12月(築4年5ヶ月)
|
階建 / 階 |
9階建 / 9階 |
| 駐車場 |
- |
バイク置き場 |
- |
| 駐輪場 |
- |
土地面積 |
- |
| 接道状況 |
-
|
用途地域 |
- |
| 間取り |
- |
建物構造 |
RC |
| アピールポイント |
新宿エリアで自分だけの空間をお探しの方、お待たせしました!
歌舞伎町1丁目に位置する「第134東京ビル」のご紹介です。
この物件の目玉は、なんといっても「最上階×1フロア1テナント」という贅沢な造り
フロア全体を独り占めできるので、こだわりの内装でブランドの世界観を表現したり、落ち着いたプライベートオフィスを作ったりと、使い方はあなた次第です。
建物は2021年築と新しく、外観も室内も清潔感にあふれています。都市ガスなどの基本設備もしっかり整っています。
新宿駅から徒歩4分、新宿三丁目駅や新宿西口駅も利用できるマルチアクセスで、通勤や来客の利便性もバッチリです。
現在空室のため、即時の引き渡しが可能です!
新しいエネルギーに満ちた新宿の街で、この洗練された最上階の1室から、素敵なストーリーを始めてみませんか?
お問い合わせはお早めにどうぞ! |
| 建物名・部屋番号 |
第134東京ビル(Shinjuku ex Ⅱ) 9F |
| リフォーム履歴 |
- |
| リノベーション履歴 |
- |
| 特記事項 |
24時間利用可、土曜日利用可、土日・祝日利用可、飲食店可、1フロア1テナント、最上階、耐震構造(新耐震基準) |
| 備考 |
賃貸保証等:加入要(月額総賃料の100%)
管理形態/管理員の勤務形態:-/-
・重飲食可、キャバクラ等NG
|
| エネルギー消費性能 |
- |
| 断熱性能 |
- |
| 目安光熱費 |
- |
| バス・トイレ |
- |
| キッチン |
- |
| 設備・サービス |
排煙設備あり、排水設備あり 、水道メーター口径25mm、電気容量(電灯)25KVA、電気容量(動力)35KW
都市ガス、動力あり、火災警報器(報知機) |
| その他 |
エレベーター |
| 契約期間 |
3年 |
条件等 |
- |
| 引渡可能時期 |
即時 |
現況 |
空 |
| 仲介手数料 |
1ヶ月 |
|
|
| 更新料 |
新賃料 1.5ヶ月 |
物件番号 |
6990453227 |
| 情報公開日 |
2026年4月23日 |
次回更新予定日 |
2026年5月7日 |
| ケータイ用バーコード |
- スマートフォンでこの物件を見る
- スマートフォンからもこの物件をご覧になれます。
|
※「-」と表示されている項目については、情報提供会社にご確認ください。
| 周辺施設 |
銀だこハイボール横丁新宿歌舞伎町靖国通り店 |
| 距離 |
4m |
| 周辺施設 |
ファミリーマート歌舞伎町一丁目店 |
| 距離 |
1m |
| 周辺施設 |
コメダ珈琲店新宿靖国通り店 |
| 距離 |
26m |
| 周辺施設 |
ダイコクドラッグ歌舞伎町一丁目店 |
| 距離 |
27m |
| 周辺施設 |
ゆうちょ銀行本店新宿サブナード内出張所 |
| 距離 |
28m |
ここから簡単にお問い合わせをすることができます。
(SSLでの暗号化での送信を希望されるお客さまは
こちら
よりお問い合わせください)
お問い合わせを行う前に
「個人情報の取り扱いについて」を必ずお読みください。
「個人情報の取り扱いについて」に同意いただいた場合は「上記にご同意の上 確認画面へ進む」のボタンをクリックしてください。
個人情報の取り扱いについて
皆さまが送付された個人情報はアットホーム(株)のサーバを経由し、お問い合わせ先の不動産会社にメールまたはFAXにて転送されるためアットホーム(株)にも保管されます。アットホーム(株)で保管された個人情報の取り扱いについては、【こちら】をご覧ください。
また、本画面でご記入いただいた個人情報は、お問い合わせ先の不動産会社でも保管します。 お問い合わせ先の不動産会社が保管する個人情報の取り扱いについては、不動産会社に直接お問い合わせください。
東京都知事免許(1)第112576号 |
|---|
- 交通:
- JR山手線/恵比寿駅 徒歩5分
- 東京都渋谷区恵比寿西1丁目17-1
- TEL:
- 03-5457-2378
- 所属団体:
- (公社)東京都宅地建物取引業協会会員(公社)首都圏不動産公正取引協議会加盟
取引態様:仲介  - 00283136
|
- スマートフォンで
この不動産会社を見る

|
- 提携サイト等より掲載されている物件情報につきましては、不動産会社詳細情報にリンクされていないものがあります。
- 物件に関するお問合せは、物件詳細ページの「情報提供会社」に表示されている不動産会社へ直接お願いいたします。
- 間取図は、現況を優先させていただきます。
- 映像は物件の一部を撮影したものです。物件の契約にあたっての最終判断はご自身の判断に基づいて行ってください。
- 仲介手数料について

アットホームは物件情報の適正化に努めております。
内容に誤りがある場合にはこちらへご連絡ください。